Fnaim.fr
Menu

Réf. 1_FGVMA690002660

Achat Maison 5 pièces 175m² MARSEILLE 1er

465 000 Honoraires charge vendeur

4 chambres

Description du bien

Le Café de l'immo vous emmène découvir cette maison à deux pas de la place Jean Jaurès, là où Marseille vit, respire et se raconte.
À la croisée des quartiers Thiers, Notre-Dame-du-Mont et Le Camas, cette maison de ville en triplex attend celles et ceux qui ont envie de lui redonner une nouvelle histoire. Derrière sa façade discrète se cache un bien rare, aux volumes généreux, offrant de multiples possibilités, aussi bien pour une grande maison familiale que pour un projet d'investissement.
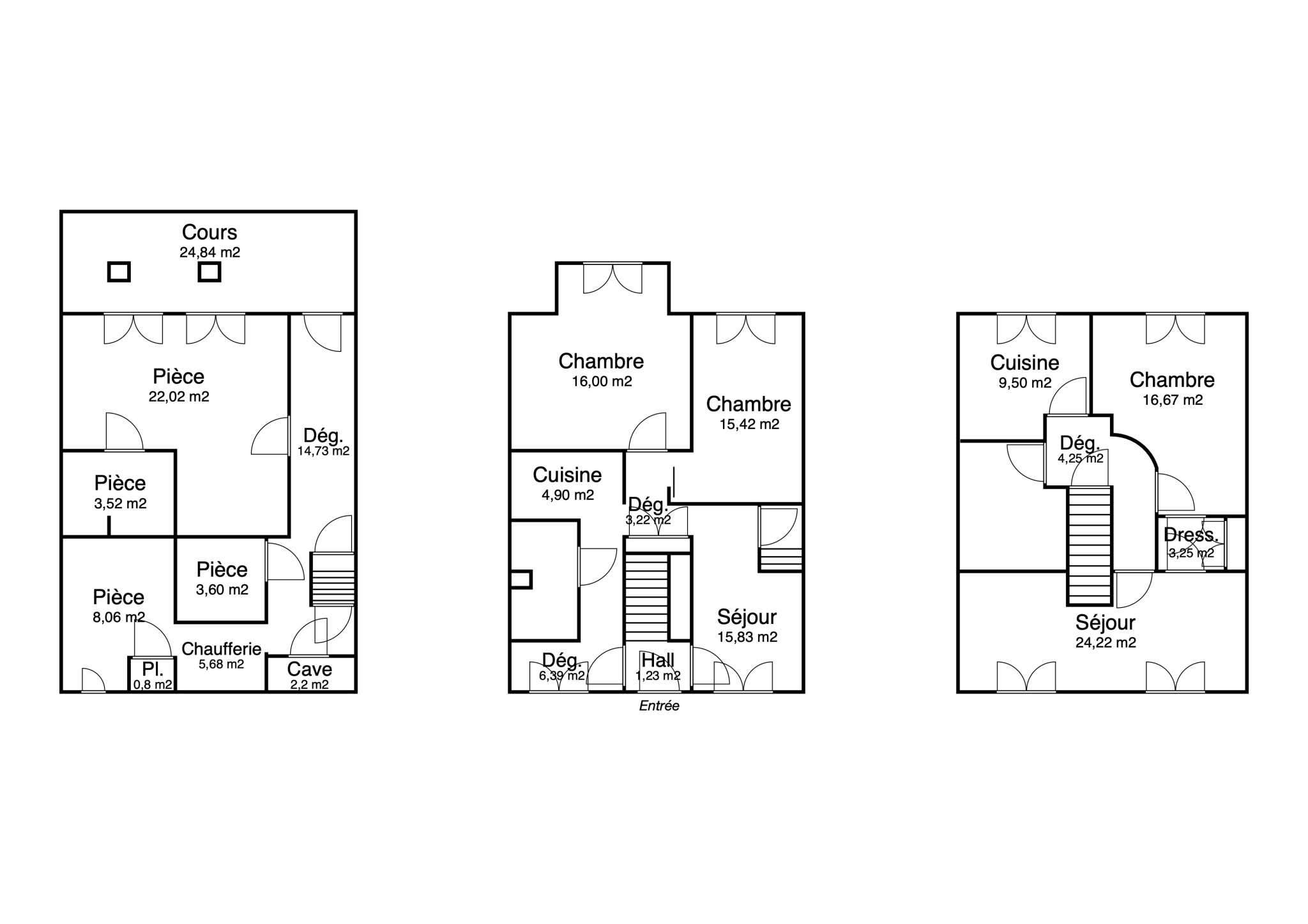
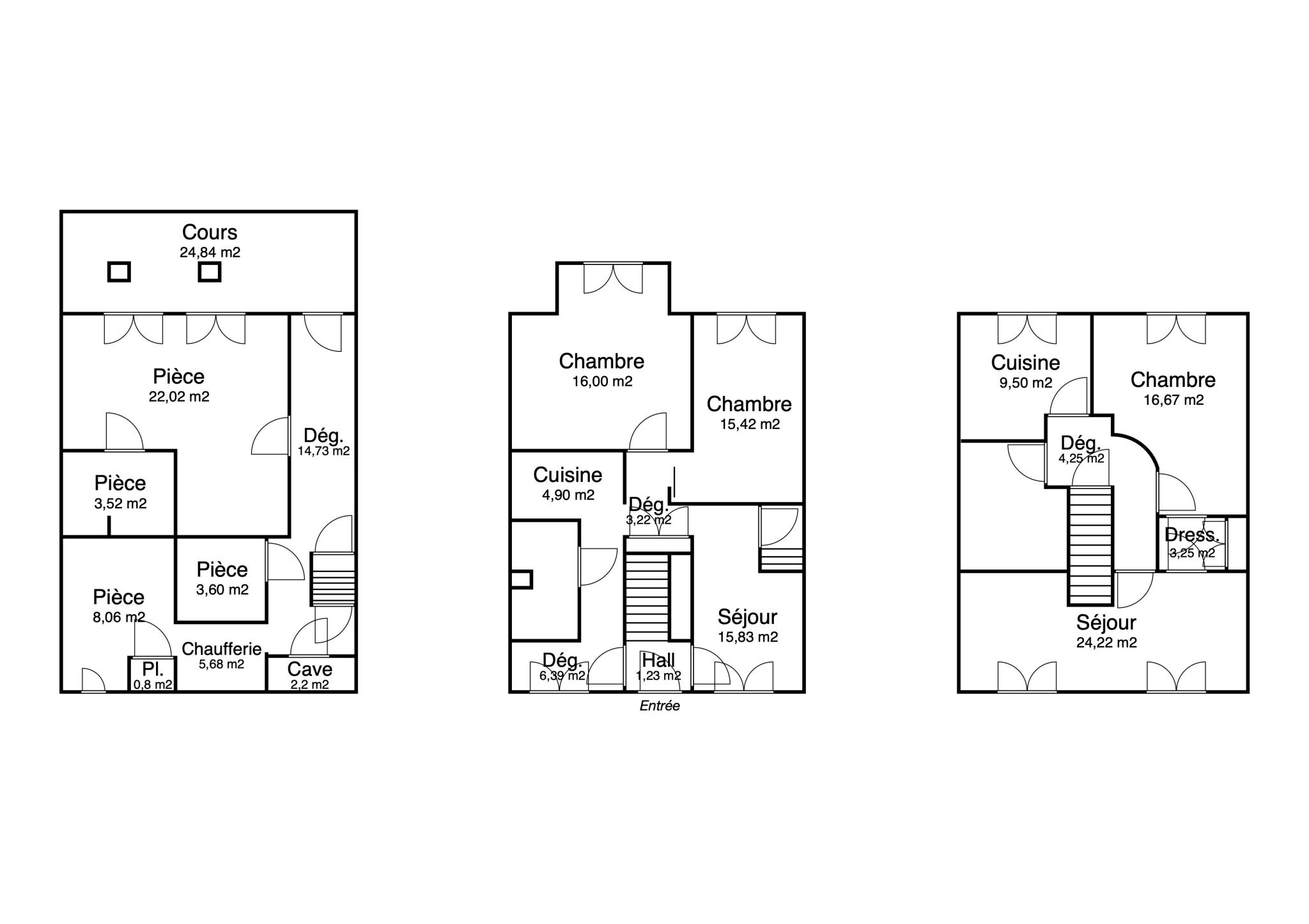
La maison est agencée sur 3 niveaux de la façon suivante:
130 m2 répartis entre le rez-de-chaussée et le 1er étage, puis la partie sous- plex dispose d'une surface habitable d'environ 45 m2 complétée par une surface d'espace cave et rangements.
Au rez-de-chaussée, vous trouverez : un salon, une cuisine, deux chambres, une salle d'eau.
Depuis ce niveau, un accès mène à un sous-plex au charme indéniable, où l'on découvre : un espace voûté accueillant caves et buanderie, une pièce de vie avec sa salle d'eau attenante, ouverte sur une cour-terrasse de 25 m2, au calme absolu, à l'abri de l'agitation marseillaise. Un petit luxe rare en coeur de ville.
À l'étage, les volumes s'expriment pleinement : une cuisine, une grande pièce de vie, facilement reconfigurable en deux chambres selon les besoins, une chambre supplémentaire, et une grande salle de bain.
Cette maison s'adresse à ceux qui aiment les biens avec du caractère, à ceux qui veulent laisser libre cours à leur imagination, repenser les espaces, moderniser, sublimer.
Un lieu à transformer, à façonner, à découvrir...

Taxe fonciére : 2 218 euros/ an
Cette annonce vous est proposée par FALAISE Guillaume - EI - NoRSAC: , Enregistré au Greffe du tribunal de commerce de MARSEILLE

Etat des risques et pollutions

Les informations sur les risques auxquels ce bien est exposé sont disponibles sur le site Géorisques : www.georisques.gouv.fr.

Caractéristiques du bien

Composition du bien

  • Type d'habitation : Maison
  • Nombre de chambres : 4
  • Nombre de salles de bain : 1
  • Cuisine : Type de cuisine Non communique

Aménagement du bien

  • Cave : Non
  • Garage / Parking : Non
    • Surface habitable : 175 m²

    Localisation du bien

    MARSEILLE 01 (13001) , BOUCHES-DU-RHONE (13) - PROVENCE-ALPES-COTE-D-AZUR

    Ce bien n'est pas géolocalisé, pour connaitre sa géolocalisation, merci de contacter l'agence.

    Consommation énergétique

    • F (372 kWh/m² an)
      F (74 kgCO2/m².an)
      Plus d'info
      372
      74
      74
    • DPE réalisé après le 1er juillet 2021.
    • Entre 5000 € TTC / an et 7000 € TTC / an
      01/01/2021
    • Logement à consommation énergétique excessive : classe F

    Nos professionnels vous accompagnent

    Contactez notre agence !

    100 Boulevard Vauban 13006 MARSEILLE 06

    Appeler l’agence Tél : 06 17 22 64 86

    * Champs obligatoires

    Nous vous informons de l’existence de la liste d’opposition au démarchage téléphonique « BLOCTEL » sur laquelle vous pouvez vous inscrire (https://www.bloctel.gouv.fr).

    En complétant le formulaire «CONTACTEZ NOTRE AGENCE », je reconnais expressément que je consens au traitement de mes données personnelles et que je dispose du droit de retirer mon consentement à tout moment en m'adressant à support@fnaim.fr.
    En savoir plus sur la gestion de vos données et droits : consulter nos mentions légales, « article 5/ Données à caractère personnel ».

    En envoyant ce message, vous acceptez les conditions d'utilisation du site. Plus d'infos