Fnaim.fr
Menu

Réf. VA4424-TISSOT2

Achat Appartement 3 pièces 66m² NIMES 30900

189 000 Honoraires charge vendeur

2 chambres Ascenseur Parking / Garage

Description du bien

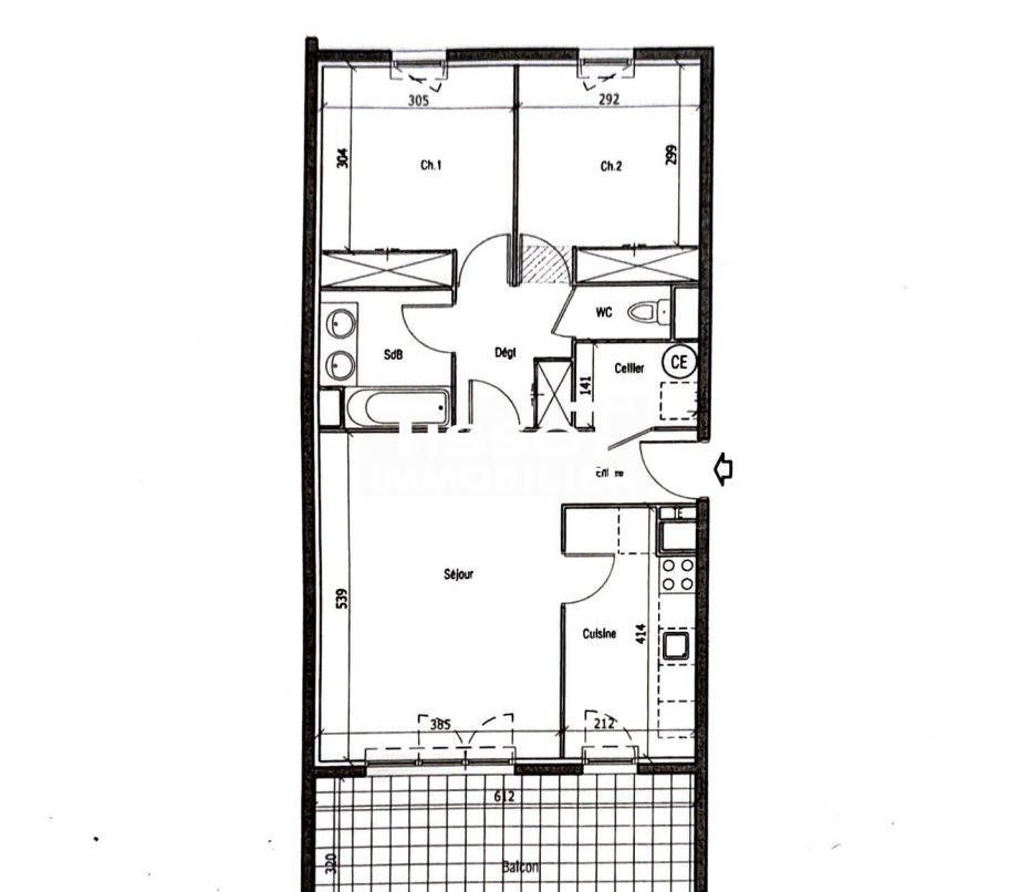
Résidence le Noveo , à vendre T3 avec terrasse et garage

Dans une résidence de 2010 sécurisée du secteur recherché des 7 collines à Nîmes, découvrez cet agréable appartement T3 de 66 m² libre de toute occupation.

Situé au 1er étage avec ascenseur, il se compose d'une pièce de vie lumineuse avec cuisine aménagée séparé par cloison abattable, ouvrant sur une vaste terrasse exposée Ouest de 20m², un cellier, de deux chambres avec placards intégrés, d'une salle de bains et de toilettes séparées.
Menuiseries pvc double vitrage, volets roulant manuels, chauffage et eau chaude électriques, climatisation réversible, nombreux rangements.
Un garage box fermé en sous sol complète le bien.

L'ensemble est en bon état général, au sein d'une copropriété bien entretenue et sans travaux à prévoir.
Charges de copropriété : 1 776 ?/an en 2024
Taxe foncière : 1 334 ?/an

Vous apprécierez son emplacement pratique, face aux 7 Collines, à proximité des commerces, transports, axes principaux, et du futur parc urbain Jacques Chirac de 14 hectares prévu en 2027 qui s'étendra du parc Georges Besse au triangle de la Gare Nimes centre.





Honoraires à la charge du vendeur. Dans une copropriété de 269 lots. Quote-part moyenne du budget prévisionnel 1 776 ?/an. Aucune procédure n'est en cours. Classe énergie C, Classe climat A Montant estimé des dépenses annuelles d'énergie pour un usage standard : entre 708.00 ? et 759.00 ? sur les années 2021, 2022 et 2023 (abonnements compris). Les informations sur les risques auxquels ce bien est exposé sont disponibles sur le site Géorisques : georisques.gouv.fr.

Carte pro. CPI 3002 2017 000 021 663
AC ADC 3002 2023 000 000 334

Etat des risques et pollutions

Les informations sur les risques auxquels ce bien est exposé sont disponibles sur le site Géorisques : www.georisques.gouv.fr.

Caractéristiques du bien

Composition du bien

  • Type d'habitation : Appartement
  • Cuisine : 19
  • Nombre de pièce(s) : 3
  • Nombre de chambre(s) : 2
  • Salles de bain : 1

Aménagement du bien

Extérieur

  • Terrasse : Non
  • Balcon : Non

Partie Commune

  • Ascenseur : Oui
  • Surface habitable : 66 m²
  • Parking : Oui

Informations sur la copropriété

  • Bien soumis au statut de la copropriété
  • Nombre de lots : 269
  • Quote part charges courantes : 1776 €/an
  • Procédure en cours : Non

Localisation du bien

NIMES (30900) , GARD (30) - OCCITANIE

Ce bien n'est pas géolocalisé, pour connaitre sa géolocalisation, merci de contacter l'agence.

Consommation énergétique

  • C (124 kWh/m² an)
    A (3 kgCO2/m².an)
    Plus d'info
    124
    3
    3
  • DPE réalisé après le 1er juillet 2021.
  • Entre 708 € TTC / an et 759 € TTC / an
    01/01/2021

Nos professionnels vous accompagnent

Contactez notre agence !

55 Allée de l'Argentine Immeuble L'Alphatis - BP 80036 30000 NIMES

Appeler l’agence Tél : 0466676766

* Champs obligatoires

Nous vous informons de l’existence de la liste d’opposition au démarchage téléphonique « BLOCTEL » sur laquelle vous pouvez vous inscrire (https://www.bloctel.gouv.fr).

En complétant le formulaire «CONTACTEZ NOTRE AGENCE », je reconnais expressément que je consens au traitement de mes données personnelles et que je dispose du droit de retirer mon consentement à tout moment en m'adressant à support@fnaim.fr.
En savoir plus sur la gestion de vos données et droits : consulter nos mentions légales, « article 5/ Données à caractère personnel ».

En envoyant ce message, vous acceptez les conditions d'utilisation du site. Plus d'infos