Fnaim.fr
Menu

Exclusivité
Réf. 18093

Achat Maison 7 pièces 103m² ST JEAN DE LOSNE 21170

183 000 Honoraires charge acquéreur inclus : 7.5% TTC (169220 € hors honoraires)

4 chambres Jardin Parking / Garage

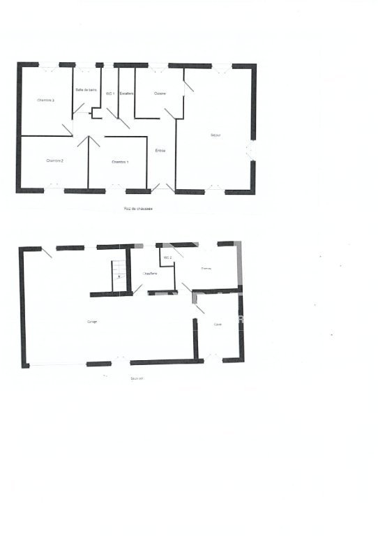
Description du bien

Maison familiale lumineuse sur sous-sol - 4 chambres, terrain 697 m²

Maison sur sous-sol idéal pour une famille en quête d'espace et de tranquillité. L'entrée s'ouvre sur un séjour baigné de lumière naturelle, offrant un cadre chaleureux pour les moments de vie quotidiens et les réceptions. La cuisine aménagée, attenante au séjour, facilite la circulation entre les pièces et permet une organisation pratique des repas.

Le logement comprend quatre chambres, dont une en sous-sol comprenant wc et lavabo.

Le sous-sol apporte un volume complémentaire appréciable : espace de rangement, atelier, cave, local technique.

Chauffage au gaz, fenêtres PVC, volets électriques, interphone.

Le terrain de 697 m² entoure la maison et offre des possibilités d'aménagement extérieur - jardin, terrasse ou espace de jeux - pour profiter du plein air en toute sérénité.

Pour visiter et découvrir le potentiel de cette maison, contactez Nathalie BAUDOT afin d'organiser une visite zéro646138538.
A visiter rapidement !

Les informations sur les risques auxquels ce bien est exposé sont disponibles sur le site Géorisques : www.georisques.gouv.fr

Etat des risques et pollutions

Les informations sur les risques auxquels ce bien est exposé sont disponibles sur le site Géorisques : www.georisques.gouv.fr.

Caractéristiques du bien

Composition du bien

  • Type d'habitation : Maison
  • Nombre de chambres : 4
  • Cuisine : Aménagée

Aménagement du bien

  • Cave : Non
  • Garage / Parking : Oui
    • Surface habitable : 103 m²
    • Parking : Oui

    Localisation du bien

    ST JEAN DE LOSNE (21170) , COTE-D'OR (21) - BOURGOGNE-FRANCHE-COMTÉ

    Consommation énergétique

    • F (330 kWh/m² an)
      F (73 kgCO2/m².an)
      Plus d'info
      330
      73
      73
    • DPE réalisé après le 1er juillet 2021.
    • Entre 2930 € TTC / an et 4010 € TTC / an
      01/01/2023

    Nos professionnels vous accompagnent

    Contactez notre agence !

    1 RUE GRANGE FRANGY 71100 CHALON SUR SAONE

    Appeler l’agence Tél : 03 80 77 92 25

    * Champs obligatoires

    Nous vous informons de l’existence de la liste d’opposition au démarchage téléphonique « BLOCTEL » sur laquelle vous pouvez vous inscrire (https://www.bloctel.gouv.fr).

    En complétant le formulaire «CONTACTEZ NOTRE AGENCE », je reconnais expressément que je consens au traitement de mes données personnelles et que je dispose du droit de retirer mon consentement à tout moment en m'adressant à support@fnaim.fr.
    En savoir plus sur la gestion de vos données et droits : consulter nos mentions légales, « article 5/ Données à caractère personnel ».

    En envoyant ce message, vous acceptez les conditions d'utilisation du site. Plus d'infos