Fnaim.fr
Menu

Réf. VA6326-BIENALAMER

Achat Appartement 3 pièces 67m² PORDIC 22590

279 500 Honoraires charge vendeur

2 chambres Ascenseur Parking / Garage

Description du bien

L'agence 'MON BIEN A LA MER', spécialiste de l'immobilier neuf sur les Côtes Bretonnes, sélectionne auprès des promoteurs les meilleures opérations aux mêmes prix, sans commission d'agence. Bénéficiez de notre expertise indépendante, et de nos services (aide aux plans, maquette, drone, visite virtuelles). Nous vous présentons ce bien :

Coeur de ville : nouvelle résidence de standing en construction à 100m de la Place du Général de Gaulle, :
Commerces et bus à pied, plage de BINIC 5 min en voiture, gare TGV ST BRIEUC 12 min en voiture.

Résidence RE2020 organisée en 4 petits îlots avec jardin intérieur, parking sous sol, sécurisée.
Chauffage par pompe à chaleur, parquet stratifié berry alloc, volets roulants électriques, douches à l'italienne, local vélo. Appartements entièrement finis et équipés (sauf cuisine).

Livraison 4è trimestre 2026, travaux en cours, visitable.
Ascenseur. Frais de notaire réduits.

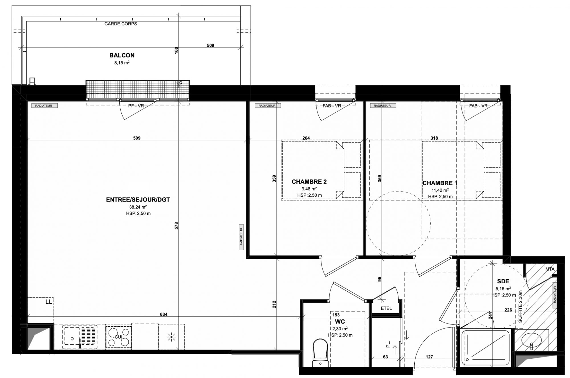
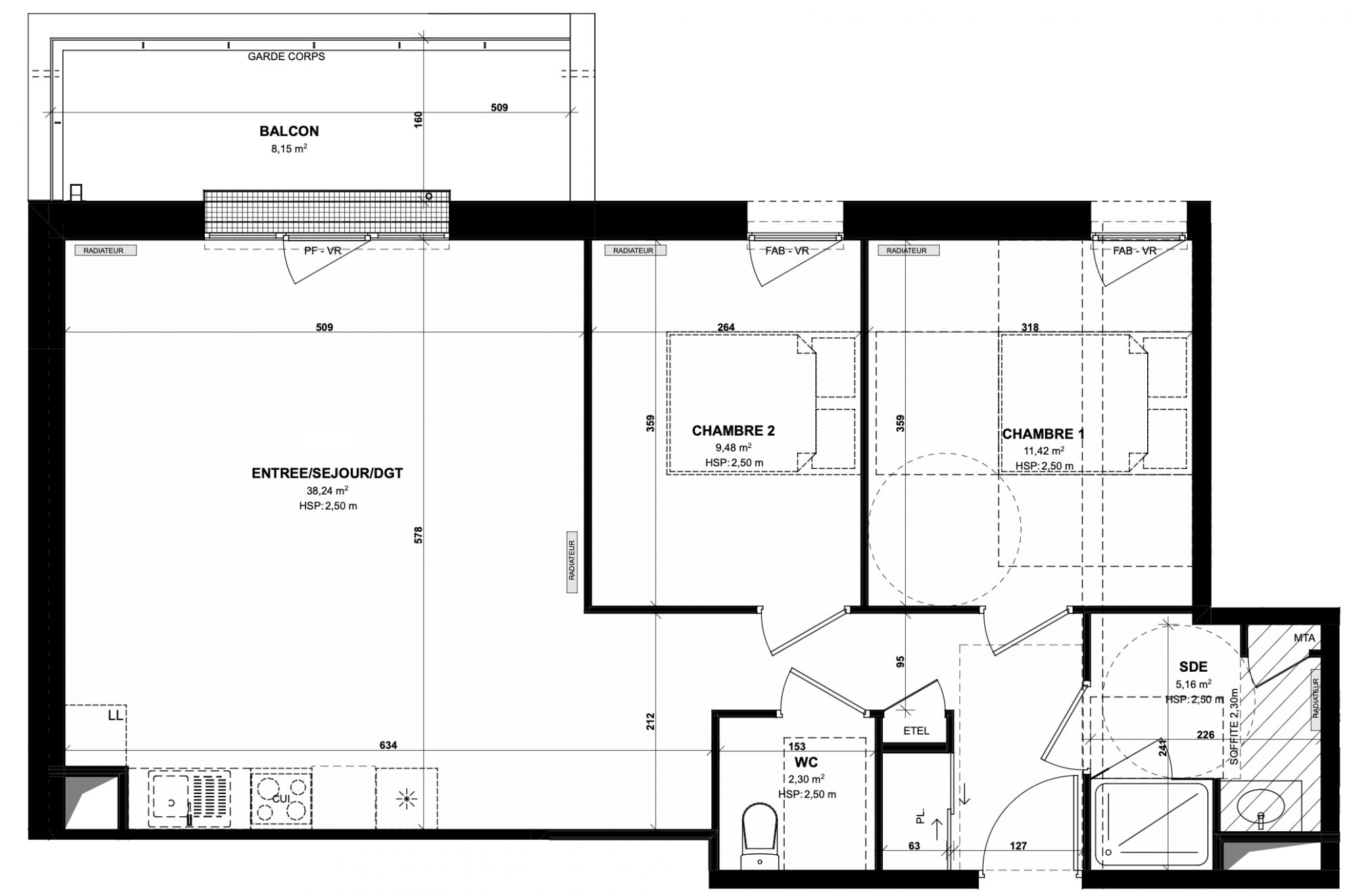
Spacieux T3 côté cour, belle vue sur l'Eglise de PORDIC, terrasse 8m2, comprenant :
- Grand Séjour 38m2,
- Deux chambres 11,42-9,48m2
- salle d'eau douche à l'italienne, wc séparés, placard
- parking sous sol inclus.

Nous Consulter.

Honoraires à la charge du vendeur. Non soumis au DPE. Les informations sur les risques auxquels ce bien est exposé sont disponibles sur le site Géorisques : georisques.gouv.fr.

Votre conseiller MON BIEN A LA MER : Gérant - .fr MON BIEN A LA MER
Carte T CPI 2201 2018 000 025 040
RCP ACM IARD B1 7025278

Etat des risques et pollutions

Les informations sur les risques auxquels ce bien est exposé sont disponibles sur le site Géorisques : www.georisques.gouv.fr.

Caractéristiques du bien

Composition du bien

  • Type d'habitation : Appartement
  • Cuisine : Type de cuisine Non communique
  • Nombre de pièce(s) : 3
  • Nombre de chambre(s) : 2

Aménagement du bien

Extérieur

  • Terrasse : Non
  • Balcon : Non

Partie Commune

  • Ascenseur : Oui
  • Surface habitable : 67 m²
  • Parking : Oui

Localisation du bien

PORDIC (22590) , COTES-D'ARMOR (22) - BRETAGNE

Ce bien n'est pas géolocalisé, pour connaitre sa géolocalisation, merci de contacter l'agence.

Consommation énergétique

DPE non soumis
mention indiquée sous la responsabilité de l’agence immobilière

Nos professionnels vous accompagnent

Contactez notre agence !

23 Rue des Villeneuves Le Bignon 22400 MORIEUX

Appeler l’agence Tél : 0787285150

* Champs obligatoires

Nous vous informons de l’existence de la liste d’opposition au démarchage téléphonique « BLOCTEL » sur laquelle vous pouvez vous inscrire (https://www.bloctel.gouv.fr).

En complétant le formulaire «CONTACTEZ NOTRE AGENCE », je reconnais expressément que je consens au traitement de mes données personnelles et que je dispose du droit de retirer mon consentement à tout moment en m'adressant à support@fnaim.fr.
En savoir plus sur la gestion de vos données et droits : consulter nos mentions légales, « article 5/ Données à caractère personnel ».

En envoyant ce message, vous acceptez les conditions d'utilisation du site. Plus d'infos