Fnaim.fr
Menu

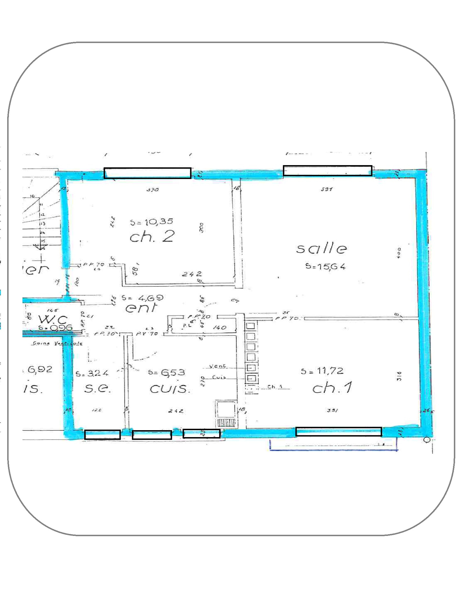
Achat Appartement 3 pièces 54m² CAEN 14000

149 900 Honoraires charge vendeur

2 chambres Balcon

Description du bien

Compromis de vente en cours.
Nuances Immobilières vous a proposé à la vente, un appartement T3 de 54m2, au pied de l'Abbaye aux Dames, à CAEN, dans une rue calme avec de jolies vues.
Il se composait d'une entrée avec placard, un séjour, 2 chambres dont une avec balconnet, une cuisine séparée, une salle de bains et un WC.
Une grande cave complète ce bien.
Ses atouts: son emplacement et ses vues, son parquet en chêne, ses radiateurs en fonte, ses fenêtres double vitrage, son chauffage individuel.
'Les informations sur les risques auxquels ce bien est exposé sont disponibles sur le site Géorisques : www.georisques.gouv.fr'

Etat des risques et pollutions

Les informations sur les risques auxquels ce bien est exposé sont disponibles sur le site Géorisques : www.georisques.gouv.fr.

Caractéristiques du bien

Composition du bien

  • Type d'habitation : Appartement
  • Cuisine : Type de cuisine Non communique
  • Nombre de pièce(s) : 3
  • Nombre de chambre(s) : 2
  • Salles de bain : 1

Aménagement du bien

Extérieur

  • Terrasse : Non
  • Balcon : Oui

Partie Commune

  • Ascenseur : Non
  • Surface habitable : 54 m²

Informations sur la copropriété

  • Bien soumis au statut de la copropriété
  • Nombre de lots : 6
  • Quote part charges courantes : 800 €/an
  • Procédure en cours : Non

Localisation du bien

CAEN (14000) , CALVADOS (14) - NORMANDIE

Ce bien n'est pas géolocalisé, pour connaitre sa géolocalisation, merci de contacter l'agence.

Consommation énergétique

  • E (283 kWh/m² an)
    E (61 kgCO2/m².an)
    Plus d'info
    283
    61
    61
  • DPE réalisé après le 1er juillet 2021.
  • Entre 1422 € TTC / an et 1924 € TTC / an
    01/01/2023

Nos professionnels vous accompagnent

Contactez notre agence !

10 rue de l'Oratoire 14000 CAEN

Appeler l’agence Tél : 0231084040

* Champs obligatoires

Nous vous informons de l’existence de la liste d’opposition au démarchage téléphonique « BLOCTEL » sur laquelle vous pouvez vous inscrire (https://www.bloctel.gouv.fr).

En complétant le formulaire «CONTACTEZ NOTRE AGENCE », je reconnais expressément que je consens au traitement de mes données personnelles et que je dispose du droit de retirer mon consentement à tout moment en m'adressant à support@fnaim.fr.
En savoir plus sur la gestion de vos données et droits : consulter nos mentions légales, « article 5/ Données à caractère personnel ».

En envoyant ce message, vous acceptez les conditions d'utilisation du site. Plus d'infos