Fnaim.fr
Menu

Visite virtuelle

Achat Maison 5 pièces 130m²

315 000 Honoraires charge vendeur

4 chambres Jardin

Description du bien


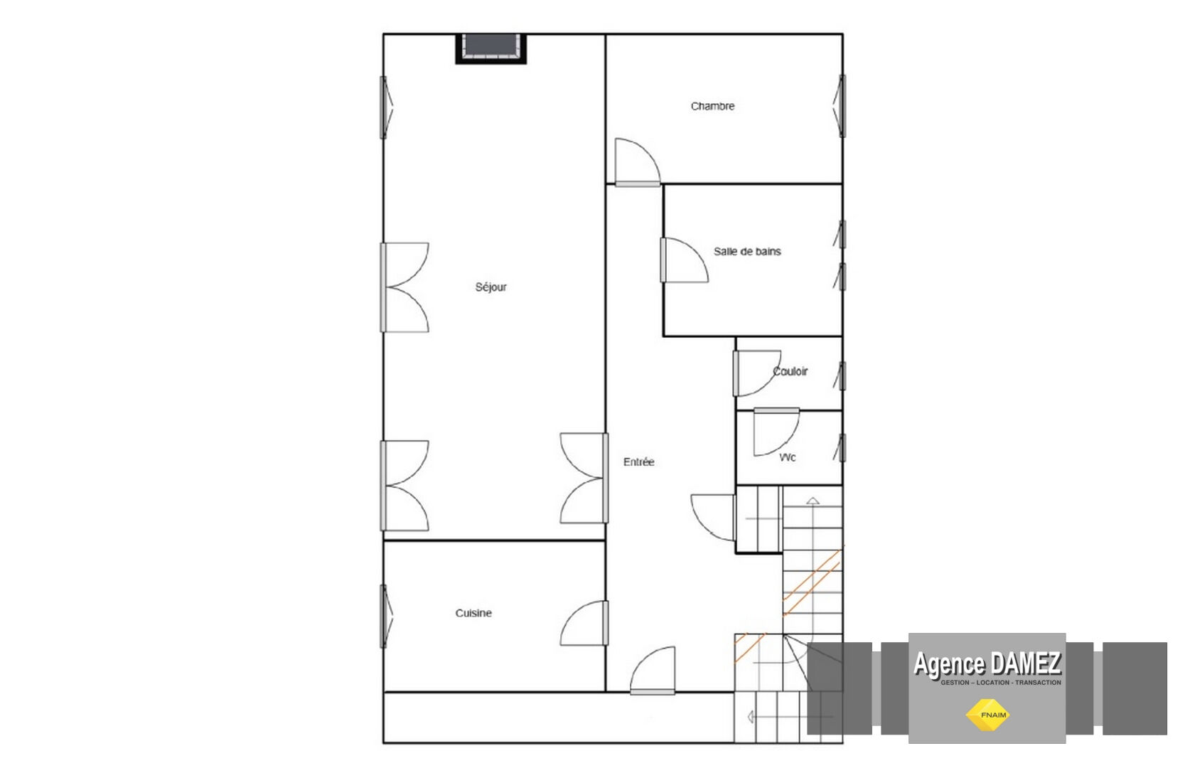
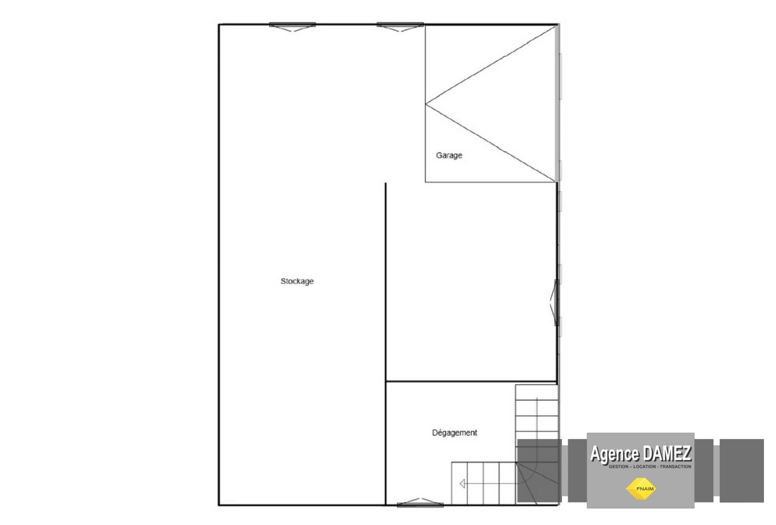
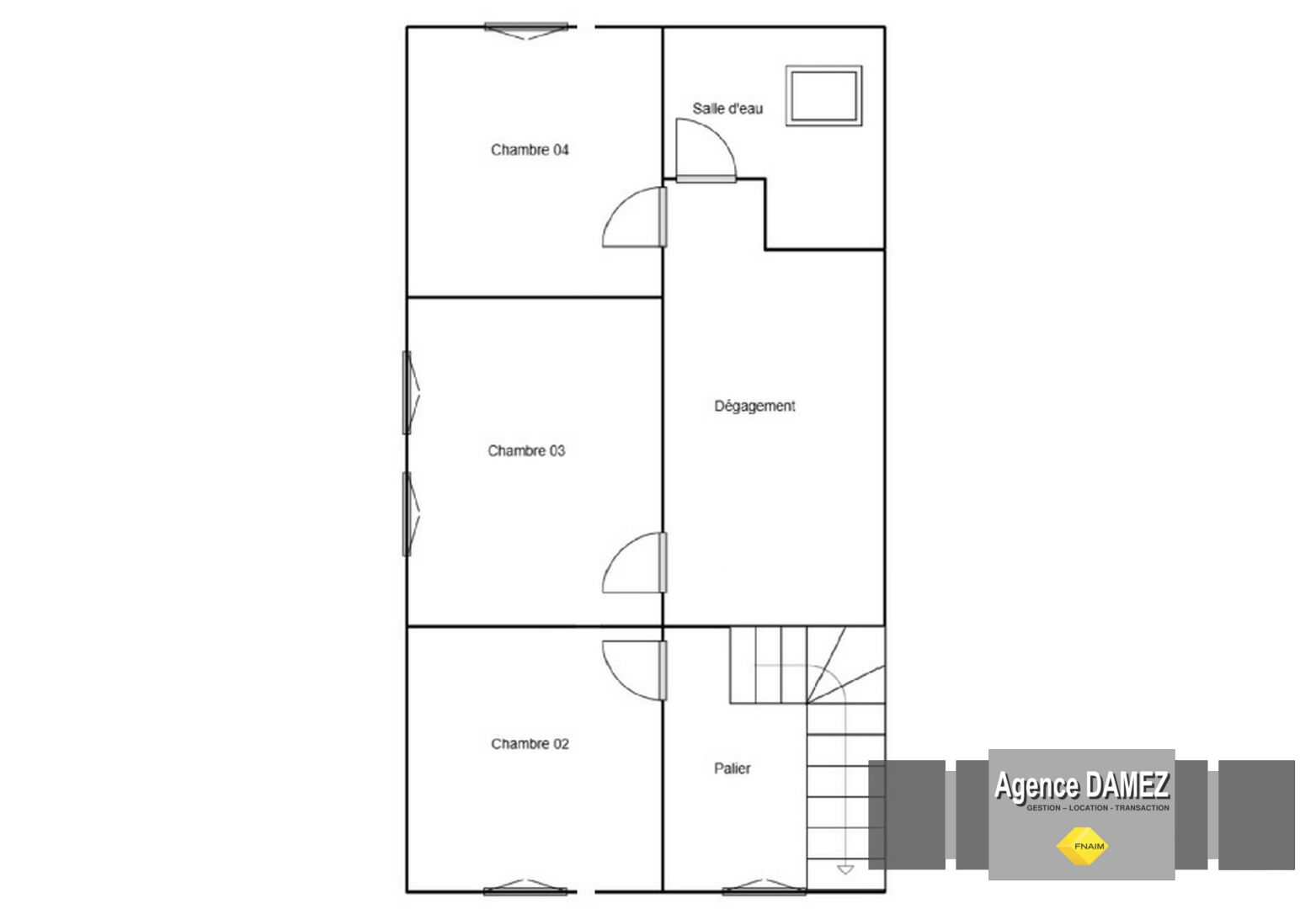
L'Agence DAMEZ Dourdan vous propose cette maison familiale traditionnelle pleine de charme. Idéale pour une vie de famille, cette propriété dispose d'un grand sous-sol et de 4 chambres spacieuses, dont un mode de vie de plain-pied. Vous serez séduit par le beau séjour lumineux avec cheminée, qui s'ouvre sur une belle terrasse ensoleillée. La maison comprend également deux salles de bains. Cette propriété offre un espace de vie généreux et fonctionnel. Située dans un environnement privilégié et protégé, elle vous assure tranquillité et nature. Une opportunité rare à saisir. Logement à consommation énergétique excessive classe G.

Etat des risques et pollutions

Les informations sur les risques auxquels ce bien est exposé sont disponibles sur le site Géorisques : www.georisques.gouv.fr.

Caractéristiques du bien

Composition du bien

  • Type d'habitation : Maison
  • Nombre de chambres : 4
  • Nombre de salles de bain : 1
  • Cuisine : Type de cuisine Non communique

Aménagement du bien

  • Cave : Non
  • Garage / Parking : Non
    • Surface habitable : 130 m²

    Localisation du bien

    Ce bien n'est pas géolocalisé, pour connaitre sa géolocalisation, merci de contacter l'agence.

    Consommation énergétique

    • G (323 kWh/m² an)
      G (101 kgCO2/m².an)
      Plus d'info
      323
      101
      101
    • DPE réalisé après le 1er juillet 2021.
    • Entre 5320 € TTC / an et 7240 € TTC / an
      Non communiqué

    Nos professionnels vous accompagnent

    Contactez notre agence !

    15 RUE DEBERTRAND 91410 DOURDAN

    Appeler l’agence Tél : 0164595163

    * Champs obligatoires

    Nous vous informons de l’existence de la liste d’opposition au démarchage téléphonique « BLOCTEL » sur laquelle vous pouvez vous inscrire (https://www.bloctel.gouv.fr).

    En complétant le formulaire «CONTACTEZ NOTRE AGENCE », je reconnais expressément que je consens au traitement de mes données personnelles et que je dispose du droit de retirer mon consentement à tout moment en m'adressant à support@fnaim.fr.
    En savoir plus sur la gestion de vos données et droits : consulter nos mentions légales, « article 5/ Données à caractère personnel ».

    En envoyant ce message, vous acceptez les conditions d'utilisation du site. Plus d'infos