Fnaim.fr
Menu

Réf. ABR0-LVI-4JW

Achat Appartement 3 pièces 61m² ROMAINVILLE 93230

320 000 Honoraires charge acquéreur inclus

2 chambres Balcon Ascenseur

Description du bien

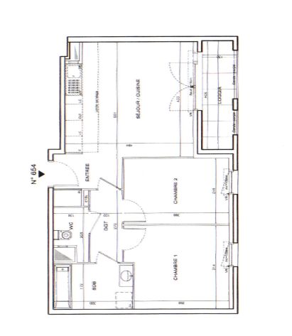
A proximité du métro Pantin - Raymond Queneau de la ligne 5, venez découvrir ce bel appartement 3 pièces de 56,4 m² loi Carrez (61,2 m² au sol), situé au sein d'un immeuble parfaitement entretenu et entièrement accessible PMR.

L'appartement se compose d'un séjour avec cuisine ouverte, prolongé par une agréable loggia sans vis-à-vis.
La partie nuit comprend deux chambres confortables, une salle de bains fonctionnelle, des WC séparés, ainsi que de nombreux espaces de rangement.

DPE C, avec chauffage collectif, ce bien combine esthétisme, confort et performance énergétique.

Idéal pour un couple ou une petite famille à la recherche d'un logement récent et fonctionnel.

Contacter votre conseiller Orpi pour intégrer les toutes premières sessions de visites.
Référence agence : 4625

Etat des risques et pollutions

Les informations sur les risques auxquels ce bien est exposé sont disponibles sur le site Géorisques : www.georisques.gouv.fr.

Caractéristiques du bien

Composition du bien

  • Type d'habitation : Appartement
  • Cuisine : Simple
  • Nombre de pièce(s) : 3
  • Nombre de chambre(s) : 2
  • Salles de bain : 1

Aménagement du bien

Extérieur

  • Terrasse : Non
  • Balcon : Oui

Partie Commune

  • Ascenseur : Oui
  • Surface habitable : 61 m²

Localisation du bien

ROMAINVILLE (93230) , SEINE-SAINT-DENIS (93) - ILE-DE-FRANCE

Ce bien n'est pas géolocalisé, pour connaitre sa géolocalisation, merci de contacter l'agence.

Consommation énergétique

  • C (64 kWh/m² an)
    C (11 kgCO2/m².an)
    Plus d'info
    64
    11
    11
  • DPE réalisé après le 1er juillet 2021.
  • Entre 290 € TTC / an et 450 € TTC / an
    Non communiqué

Nos professionnels vous accompagnent

Contactez notre agence !

33 BOULEVARD DE CHARONNE 75011 PARIS 11

Appeler l’agence Tél : 01 55 25 52 00

* Champs obligatoires

Nous vous informons de l’existence de la liste d’opposition au démarchage téléphonique « BLOCTEL » sur laquelle vous pouvez vous inscrire (https://www.bloctel.gouv.fr).

En complétant le formulaire «CONTACTEZ NOTRE AGENCE », je reconnais expressément que je consens au traitement de mes données personnelles et que je dispose du droit de retirer mon consentement à tout moment en m'adressant à support@fnaim.fr.
En savoir plus sur la gestion de vos données et droits : consulter nos mentions légales, « article 5/ Données à caractère personnel ».

En envoyant ce message, vous acceptez les conditions d'utilisation du site. Plus d'infos