Fnaim.fr
Menu

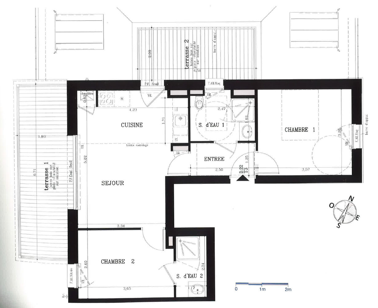
Achat Appartement 3 pièces 51m²

468 900 Honoraires charge acquéreur inclus : 4,2% TTC (449206 € hors honoraires)

2 chambres Balcon Ascenseur Parking / Garage

Description du bien


Idéalement situé dans le quartier très recherché de Saint-Énogat, au calme et à seulement quelques minutes des plages et des commerces, cet appartement lumineux offre un cadre de vie privilégié au sein d'une résidence de standing parfaitement entretenue.

Cet appartement se distingue par ses espaces extérieurs et son exposition idéale.
D'une surface confortable, il se compose d'une entrée, d'un salon séjour lumineux ouvrant sur une première terrasse de 12 m², exposée Sud-Ouest, parfaite pour profiter des soirées ensoleillées.

Il dispose également d'une chambre agréable, d'une salle d'eau, ainsi que d'une seconde terrasse de 9 m², offrant un véritable prolongement de l'espace de vie.
Le plan de cet appartement permet la création d'une seconde chambre avec salle d'eau tel qu'il était prévu sur le plan.
Le point d'eau est déjà existant avec la présence d'un lavabo.

Le garage fermé est un atout particulièrement recherché dans le secteur.

Une opportunité rare pour profiter pleinement de la douceur de vivre dinardaise, en résidence principale, secondaire ou en investissement de qualité.

Pour toute demande d'informations ou pour organiser une visite, contactez l'agence emeraude 48 rue Levavasseur, 35800 DINARD. Référence : 7682 - 02 99 46 11 01 - contact@agenceemeraude.fr.

Etat des risques et pollutions

Les informations sur les risques auxquels ce bien est exposé sont disponibles sur le site Géorisques : www.georisques.gouv.fr.

Caractéristiques du bien

Composition du bien

  • Type d'habitation : Appartement
  • Cuisine : Type de cuisine Non communique
  • Nombre de pièce(s) : 3
  • Nombre de chambre(s) : 2

Aménagement du bien

Extérieur

  • Terrasse : Non
  • Balcon : Oui

Partie Commune

  • Ascenseur : Oui
  • Surface habitable : 51 m²
  • Parking : Oui

Informations sur la copropriété

  • Bien soumis au statut de la copropriété
  • Nombre de lots : 93
  • Quote part charges courantes : 1297 €/an
  • Procédure en cours : Non

Localisation du bien

Ce bien n'est pas géolocalisé, pour connaitre sa géolocalisation, merci de contacter l'agence.

Consommation énergétique

  • C (108 kWh/m² an)
    C (20 kgCO2/m².an)
    Plus d'info
    108
    20
    20
  • DPE réalisé après le 1er juillet 2021.
  • Entre 610 € TTC / an et 870 € TTC / an
    Non communiqué

Nos professionnels vous accompagnent

Contactez notre agence !

48 RUE LEVAVASSEUR 35800 DINARD

Appeler l’agence Tél : 0299461101

* Champs obligatoires

Nous vous informons de l’existence de la liste d’opposition au démarchage téléphonique « BLOCTEL » sur laquelle vous pouvez vous inscrire (https://www.bloctel.gouv.fr).

En complétant le formulaire «CONTACTEZ NOTRE AGENCE », je reconnais expressément que je consens au traitement de mes données personnelles et que je dispose du droit de retirer mon consentement à tout moment en m'adressant à support@fnaim.fr.
En savoir plus sur la gestion de vos données et droits : consulter nos mentions légales, « article 5/ Données à caractère personnel ».

En envoyant ce message, vous acceptez les conditions d'utilisation du site. Plus d'infos