Fnaim.fr
Menu

Visite virtuelle
Réf. VA2056-BEEN14

Achat Appartement 3 pièces 37m² MERVILLE FRANCEVILLE PLAGE 14810

120 000 Honoraires charge acquéreur inclus : 4.4% TTC (114780 € hors honoraires)

2 chambres

Description du bien

[MELTYHOME ? MERVILLE-FRANCEVILLE-PLAGE]

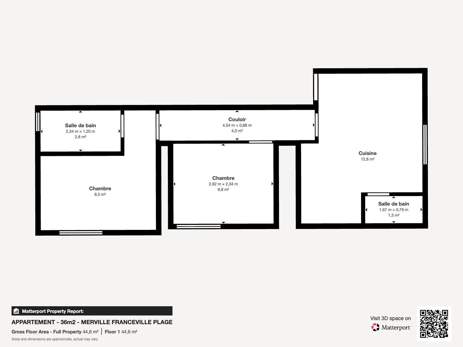
Appartement T3 (Divisible T1+T2) ? 36,71 m² Carrez !

Merville-Franceville-Plage - Côté Mer

Situé au coeur de la station balnéaire, cet appartement offre une opportunité rare pour de l'investissement locatif ou une résidence secondaire. Vous bénéficiez d'une localisation privilégiée, à deux pas de la mer.

L'appartement, issu de la réunion de deux lots distincts, est situé au 1er étage d'un bâtiment de 2 étages et est libre d'occupation.

L'espace se compose aujourd'hui d'un seul logement avec :
- Un séjour/cuisine.
- Deux chambres.
- Deux salles d'eau avec WC (idéal pour la re-séparation en deux lots).

Gros Potentiel & Atouts :
- Localisation Premium : 300m de la mer & 100m des commerces
- Travaux à Prévoir : Idéal pour personnaliser l'espace ou pour refaire entièrement l'aménagement.

Prix : 120 000 ? HAI (Honoraires d'agence inclus)
Honoraires à la charge de l'acquéreur : 5 000 ?, soit 115 000 ? net vendeur.

Non soumis au DPE
Nombre de lots : 16 dont 13 en habitation.
Charges prévisionnelles annuelles : 900 ?

Les informations sur les risques auxquels ce bien est exposé sont disponibles sur le site Géorisques : georisques.gouv.fr

Contactez-nous :

Maxence BOUET
Meltyhome
07 81 02 91 32
maxence.bouet@meltyhome.com

Honoraires inclus de 4.35% TTC à la charge de l'acquéreur. Prix hors honoraires 115 000 ?. Dans une copropriété de 16 lots. Aucune procédure n'est en cours. Non soumis au DPE. Les informations sur les risques auxquels ce bien est exposé sont disponibles sur le site Géorisques : georisques.gouv.fr.

Votre conseiller MELTYHOME : Maxence Bouet
Agent commercial (Entreprise individuelle)
RSAC 989295563

Etat des risques et pollutions

Les informations sur les risques auxquels ce bien est exposé sont disponibles sur le site Géorisques : www.georisques.gouv.fr.

Caractéristiques du bien

Composition du bien

  • Type d'habitation : Appartement
  • Cuisine : Type de cuisine Non communique
  • Nombre de pièce(s) : 3
  • Nombre de chambre(s) : 2

Aménagement du bien

Extérieur

  • Terrasse : Non
  • Balcon : Non

Partie Commune

  • Ascenseur : Non
  • Surface habitable : 37 m²

Informations sur la copropriété

  • Bien soumis au statut de la copropriété
  • Nombre de lots : 16
  • Procédure en cours : Non

Localisation du bien

MERVILLE FRANCEVILLE PLAGE (14810) , CALVADOS (14) - NORMANDIE

Ce bien n'est pas géolocalisé, pour connaitre sa géolocalisation, merci de contacter l'agence.

Consommation énergétique

DPE non soumis
mention indiquée sous la responsabilité de l’agence immobilière

Nos professionnels vous accompagnent

Contactez notre agence !

4 Rue Hubertine Auclert Bâtiment Lumière 14610 EPRON

Appeler l’agence Tél : 0781029132

* Champs obligatoires

Nous vous informons de l’existence de la liste d’opposition au démarchage téléphonique « BLOCTEL » sur laquelle vous pouvez vous inscrire (https://www.bloctel.gouv.fr).

En complétant le formulaire «CONTACTEZ NOTRE AGENCE », je reconnais expressément que je consens au traitement de mes données personnelles et que je dispose du droit de retirer mon consentement à tout moment en m'adressant à support@fnaim.fr.
En savoir plus sur la gestion de vos données et droits : consulter nos mentions légales, « article 5/ Données à caractère personnel ».

En envoyant ce message, vous acceptez les conditions d'utilisation du site. Plus d'infos