Fnaim.fr
Menu

Visite virtuelle
Réf. VA6169-BIENALAMER

Achat Appartement 4 pièces 89m² ST MALO 35400

515 000 Honoraires charge vendeur

3 chambres Balcon Ascenseur Parking / Garage

Description du bien

L'agence 'MON BIEN A LA MER', spécialiste de l'immobilier neuf sur les côtes Bretonnes, vous présente :

Résidence livrée, visitable, frais de notaire réduits.
Emplacement central : A pied : 8 min gare, 15 min plage des Bas Sablons/St Servan, 18 min Sillon, 16 min Marché de Rocabey, 5 min Centre Hospitalier.

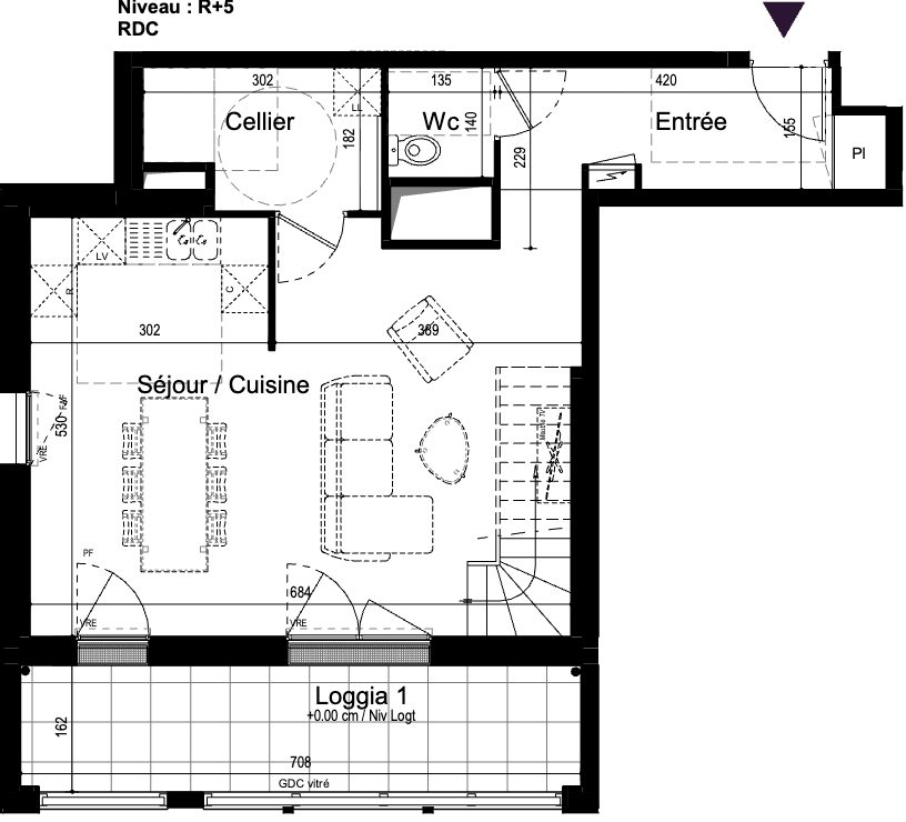
Beau T4 Duplex aux 5è et 6è (dernier) étage comprenant :

- Sur le premier niveau : séjour 33,73m2+entrée 6,92m2, placards, wc séparés, cellier 4,95m2, expo sud et ouest, terrasse 11,3m2

- Deuxième niveau : 3 chambres de 14,5-11-12,4m2 au sol, terrasse 8,02m2, balcon 2,62m2, salle de bains double vasque 6,08m2.

- Chauffage électrique, parking double sous sol inclus.

Nous Consulter

Honoraires à la charge du vendeur. Non soumis au DPE. Les informations sur les risques auxquels ce bien est exposé sont disponibles sur le site Géorisques : georisques.gouv.fr.

Votre conseiller MON BIEN A LA MER : Gérant - .fr MON BIEN A LA MER
Carte T CPI 2201 2018 000 025 040
RCP ACM IARD B1 7025278

Etat des risques et pollutions

Les informations sur les risques auxquels ce bien est exposé sont disponibles sur le site Géorisques : www.georisques.gouv.fr.

Caractéristiques du bien

Composition du bien

  • Type d'habitation : Appartement
  • Cuisine : Type de cuisine Non communique
  • Nombre de pièce(s) : 4
  • Nombre de chambre(s) : 3
  • Salles de bain : 1

Aménagement du bien

Extérieur

  • Terrasse : Non
  • Balcon : Oui

Partie Commune

  • Ascenseur : Oui
  • Surface habitable : 89 m²
  • Parking : Oui

Localisation du bien

ST MALO (35400) , ILLE-ET-VILAINE (35) - BRETAGNE

Ce bien n'est pas géolocalisé, pour connaitre sa géolocalisation, merci de contacter l'agence.

Consommation énergétique

DPE non soumis
mention indiquée sous la responsabilité de l’agence immobilière

Nos professionnels vous accompagnent

Contactez notre agence !

23 Rue des Villeneuves Le Bignon 22400 MORIEUX

Appeler l’agence Tél : 0787285150

* Champs obligatoires

Nous vous informons de l’existence de la liste d’opposition au démarchage téléphonique « BLOCTEL » sur laquelle vous pouvez vous inscrire (https://www.bloctel.gouv.fr).

En complétant le formulaire «CONTACTEZ NOTRE AGENCE », je reconnais expressément que je consens au traitement de mes données personnelles et que je dispose du droit de retirer mon consentement à tout moment en m'adressant à support@fnaim.fr.
En savoir plus sur la gestion de vos données et droits : consulter nos mentions légales, « article 5/ Données à caractère personnel ».

En envoyant ce message, vous acceptez les conditions d'utilisation du site. Plus d'infos