Fnaim.fr
Menu

Achat Maison 6 pièces 220m² LORIENT 56100

367 500 Honoraires charge acquéreur inclus

4 chambres

Description du bien

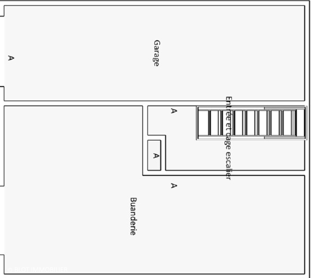
A VENDRE - BLOT IMMOBILIER LORIENT - IMMEUBLE A LORIENT

Grande maison proche gare se prêtant à une division par étage pour la création d'appartements.
Au rez-de-chaussée : deux garages et un espace à aménager, avec accès à un petit jardin.
Au 1er et 2? étage : deux appartements identiques composés d'un salon-séjour, de deux chambres, d'une cuisine, d'un WC et d'une salle d'eau.
Au 3? : espace brut sur dalle béton.
En sous-sol : des caves.
L'ensemble du bien demande une rénovation complète, mais la structure est saine.

Réf : 553PLV
CLASSE ENERGIE : E - CLASSE CLIMAT : E

Les informations sur les risques naturels, miniers, ou technologiques, auxquels ces biens sont exposés, sont disponibles sur le site : www.georisques.gouv.fr

Ce bien vous est présenté par l'agence BLOT IMMOBILIER LORIENT- 39, rue de la Villeneuve - 56100 LORIENT
Téléphone : 02 97 37 90 00

Au prix de : 367 500 euros FAI dont 5 % TTC d'honoraires à la charge de l'acquéreur
Prix net vendeur : 350 000 euros

Etat des risques et pollutions

Les informations sur les risques auxquels ce bien est exposé sont disponibles sur le site Géorisques : www.georisques.gouv.fr.

Caractéristiques du bien

Composition du bien

  • Type d'habitation : Maison
  • Nombre de chambres : 4
  • Cuisine : Type de cuisine Non communique

Aménagement du bien

  • Cave : Non
  • Garage / Parking : Non
    • Surface habitable : 220 m²

    Localisation du bien

    LORIENT (56100) , MORBIHAN (56) - BRETAGNE

    Ce bien n'est pas géolocalisé, pour connaitre sa géolocalisation, merci de contacter l'agence.

    Consommation énergétique

    • E (321 kWh/m² an)
      E (69 kgCO2/m².an)
      Plus d'info
      321
      69
      69
    • DPE réalisé après le 1er juillet 2021.
    • Entre 2720 € TTC / an et 3730 € TTC / an
      Non communiqué

    Nos professionnels vous accompagnent

    Contactez notre agence !

    39 rue de la Villeneuve 56100 LORIENT

    Appeler l’agence Tél : 06 89 24 49 24

    * Champs obligatoires

    Nous vous informons de l’existence de la liste d’opposition au démarchage téléphonique « BLOCTEL » sur laquelle vous pouvez vous inscrire (https://www.bloctel.gouv.fr).

    En complétant le formulaire «CONTACTEZ NOTRE AGENCE », je reconnais expressément que je consens au traitement de mes données personnelles et que je dispose du droit de retirer mon consentement à tout moment en m'adressant à support@fnaim.fr.
    En savoir plus sur la gestion de vos données et droits : consulter nos mentions légales, « article 5/ Données à caractère personnel ».

    En envoyant ce message, vous acceptez les conditions d'utilisation du site. Plus d'infos