Fnaim.fr
Menu

Acheter

Appartement 3 pièces 54m² FONTAINEBLEAU 77300 FONTAINEBLEAU
Exclusivité
Réf. 8MP2-2GO-7IC

Achat Appartement 3 pièces 54m² FONTAINEBLEAU 77300

275 000 Honoraires charge vendeur

2 chambres Ascenseur Parking / Garage

Description du bien

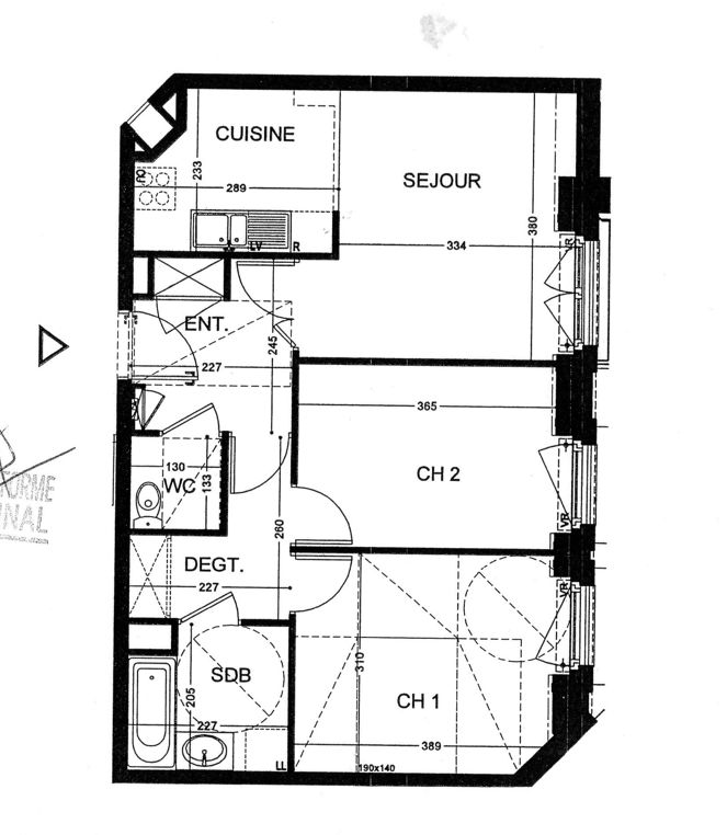
Situé dans une résidence de standing et sécurisée construite en 2018 et à 5 min à pied de la gare de SNCF de Fontainebleau, cet appartement de type F3 d'environ 54.38 m² en super état comprend :
Entrée avec placard, séjour avec cuisine semi ouverte aménagée, dégagement, deux chambres d'environ 9.68 m² et 11.42 m², salle de bains, WC indépendant.
Au sous-sol, une place de parking privative.
A visiter sans tarder !
Référence agence : 550

Etat des risques et pollutions

Les informations sur les risques auxquels ce bien est exposé sont disponibles sur le site Géorisques : www.georisques.gouv.fr.

Caractéristiques du bien

Composition du bien

  • Type d'habitation : Appartement
  • Cuisine : 337
  • Nombre de pièce(s) : 3
  • Nombre de chambre(s) : 2
  • Salles de bain : 1

Aménagement du bien

Extérieur

  • Terrasse : Non
  • Balcon : Non

Partie Commune

  • Ascenseur : Oui
  • Surface habitable : 54 m²
  • Parking : Oui

Informations sur la copropriété

  • Bien soumis au statut de la copropriété
  • Nombre de lots : 166
  • Quote part charges courantes : 1869 €/an
  • Procédure en cours : Non

Localisation du bien

FONTAINEBLEAU (77300) , SEINE-ET-MARNE (77) - ILE-DE-FRANCE

Consommation énergétique

  • C (103 kWh/m² an)
    C (19 kgCO2/m².an)
    Plus d'info
    103
    19
    19
  • DPE réalisé après le 1er juillet 2021.
  • Entre 460 € TTC / an et 670 € TTC / an
    Non communiqué

Nos professionnels vous accompagnent

Contactez notre agence !

16 RUE DE PARIS 77930 CHAILLY EN BIERE

Appeler l’agence Tél : 01 60 66 40 46

* Champs obligatoires

Nous vous informons de l’existence de la liste d’opposition au démarchage téléphonique « BLOCTEL » sur laquelle vous pouvez vous inscrire (https://www.bloctel.gouv.fr).

En complétant le formulaire «CONTACTEZ NOTRE AGENCE », je reconnais expressément que je consens au traitement de mes données personnelles et que je dispose du droit de retirer mon consentement à tout moment en m'adressant à support@fnaim.fr.
En savoir plus sur la gestion de vos données et droits : consulter nos mentions légales, « article 5/ Données à caractère personnel ».

En envoyant ce message, vous acceptez les conditions d'utilisation du site. Plus d'infos