Fnaim.fr
Menu

Acheter

Réf. getkey_8665

Achat Appartement 3 pièces 67m² PARIS 2ème

990 000 Honoraires charge vendeur

2 chambres

Description du bien

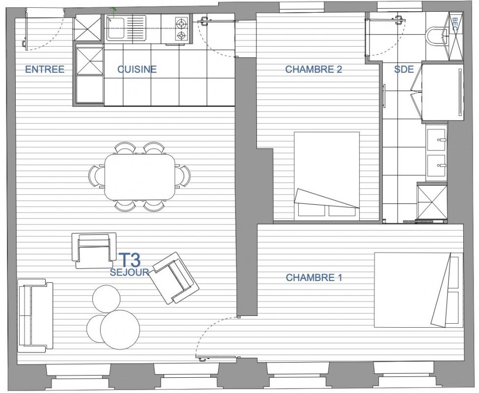
8 rue MANDAR - 67m2 - T3 2 Chambres 1 SDB

Découvrez un immeuble parisien de charme entièrement réhabilité, alliant le charme de l'ancien à des prestations contemporaines haut de gamme. Façades ravalées, parties communes, toiture, colonnes d'eau et électricité intégralement refaites à neuf...
Le tout au sein d'une copropriété élégante, sécurisée par digicode et interphone/ visiophone , desservi par un ascenseur, et bénéficiant des
multiples garanties/assurances promoteur : dommage-ouvrage, décennale et garantie des vices cachés.

Au 8 rue Mandar, nichée au calme d'une rue confidentielle entre Montorgueil et la Place des Victoires, dans l'un des quartiers les plus vivants et authentiques du centre parisien. À quelques pas des commerces de bouche, cafés en vogue, marché Saint-Eustache et des halles. Ce secteur mêle vie de quartier, dynamisme culturel et accessibilité immédiate (nombreuses lignes de métro, écoles, restaurants...).

Au 4e étage, un appartement de 67 m² refait à neuf Il se compose d'une vaste pièce de vie exposée plein sud avec cuisine ouverte, plan de travail en marbre, rangements sur-mesure , 2 chambres , 1 SDB et un plan parfaitement optimisé. Lumière traversante et volumes élégants.

Bien présenté par Agences de France par délégation.
Agences de France - SIREN : 899413603 - Titulaire de la carte T : 29012021000000009 non habilité à percevoir des fonds

Etat des risques et pollutions

Les informations sur les risques auxquels ce bien est exposé sont disponibles sur le site Géorisques : www.georisques.gouv.fr.

Caractéristiques du bien

Composition du bien

  • Type d'habitation : Appartement
  • Cuisine : 337
  • Nombre de pièce(s) : 3
  • Nombre de chambre(s) : 2
  • Salles de bain : 1

Aménagement du bien

Extérieur

  • Terrasse : Non
  • Balcon : Non

Partie Commune

  • Ascenseur : Non
  • Surface habitable : 67 m²

Localisation du bien

PARIS 02 (75002) , PARIS (75) - ILE-DE-FRANCE

Ce bien n'est pas géolocalisé, pour connaitre sa géolocalisation, merci de contacter l'agence.

Consommation énergétique

  • D (235 kWh/m² an)
    B (7 kgCO2/m².an)
    Plus d'info
    235
    7
    7
  • DPE réalisé après le 1er juillet 2021.
  • Entre 10 € TTC / an et 100 € TTC / an
    Non communiqué

Nos professionnels vous accompagnent

Contactez notre agence !

38 rue Jim Sevellec 29200 BREST

Appeler l’agence Tél : 06 69 70 70 00

* Champs obligatoires

Nous vous informons de l’existence de la liste d’opposition au démarchage téléphonique « BLOCTEL » sur laquelle vous pouvez vous inscrire (https://www.bloctel.gouv.fr).

En complétant le formulaire «CONTACTEZ NOTRE AGENCE », je reconnais expressément que je consens au traitement de mes données personnelles et que je dispose du droit de retirer mon consentement à tout moment en m'adressant à support@fnaim.fr.
En savoir plus sur la gestion de vos données et droits : consulter nos mentions légales, « article 5/ Données à caractère personnel ».

En envoyant ce message, vous acceptez les conditions d'utilisation du site. Plus d'infos