Fnaim.fr
Menu

Acheter

Exclusivité
Réf. 151

Achat Appartement 1 pièce 38m² ANGERS 49100

137 800 Honoraires charge acquéreur inclus : 6% TTC (130000 € hors honoraires)

Ascenseur Parking / Garage

Description du bien

NOUVEAU en EXCLUSIVITE chez Etoile Immobilière à Angers !
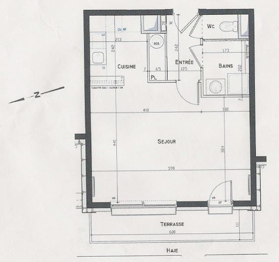
Cet appartement de 38.88m2 se compose d'une entrée avec placard de 4.30m2, un grand séjour/cuisine de 30m2 exposé Ouest, une salle de douche de 3.50m2 et un WC séparé de 1.20m2.
L'appartement donne sur une terrasse sans vis-à-vis de de 7m2 et un parking en sous-sol complète cet ensemble.
Ce bien se situe entre les quartiers de Nazareth et Hauts-de-Saint-Aubin, à proximité de l'avenue René Gasnier et de la place Bichon, un emplacement idéal pour cet investissement locatif donc avec les commerces, les transports et le commodités non loin.
Le bail est place est en date du 11/07/2024, moyennant un loyer charges comprises de 490EUR (464,66EUR hors charges).
Cet investissement est sécuritaire : bel emplacement, résidence récente et sécurisée avec peu de frais, parking privatif...
N'attendez plus pour venir découvrir cett appartement avec votre conseiller immobilier local Hugo BELIARD joignable au 06 34 30 57 05.
- Votre projet est sous une bonne ETOILE !
Les informations sur les risques auxquels ce bien est exposé sont disponibles sur le site Géorisques.
 
ACHAT - VENTE - GESTION - LOCATION - ESTIMATION - CONSEIL
Types de biens : Maisons, Appartements, Immeubles, Monopropriété et Copropriété, Ferme, Parking, Garage, Terrains...
Secteurs :
Angers : Centre, Lafayette, Eblé, Madeleine, Saint Léonard, Roseraie, Deux croix, Banchais, Montplaisir, Eventard, Saint Serge, Ney, Chalouère, Hauts de Saint Aubin, Doutre, Camus, Belle Beille, Saint Jacques, Nazareth, Lac de Maine.
Première Couronne : Beaucouzé, Bouchemaine, Saint Léger de Linières, Avrillé, Montreuil Juigné, Ecouflant, Saint sylvain d'Anjou, SaInt Barthélémy d'Anjou, Trélazé, Les Ponts de Cé,
Mais aussi : Briollay, Feneu, Soulaire-et-Bourg, Sceaux d'Anjou, Grez-Neuville, Le lion d'Angers, Champigé, Etriché, Tiercé, Seiches sur le Loir, Huillé, Lézigné, Baracé, Durtal, Les rairies, Montigné-les-Rairies, Jarzé, Bauné, Corné, Mazé-Milon, Beaufort-en-Anjou, Le Plessis-Grammoire, Loire Authion, Mûrs erigné, Sainte-Melaine-sur-Aubance, Brissac-Loire-Aubance, Les Garennes sur Loire, Saint-Martin-du-Fouilloux, Saint-Clément-de-la-Place, Saint-Lambert-la-Potherie.

Etat des risques et pollutions

Les informations sur les risques auxquels ce bien est exposé sont disponibles sur le site Géorisques : www.georisques.gouv.fr.

Caractéristiques du bien

Composition du bien

  • Type d'habitation : Appartement
  • Nombre de pièce(s) : 1

Aménagement du bien

Extérieur

  • Terrasse : Non
  • Balcon : Non

Partie Commune

  • Ascenseur : Oui
  • Surface habitable : 38 m²
  • Parking : Oui

Localisation du bien

ANGERS (49100) , MAINE-ET-LOIRE (49) - PAYS-DE-LA-LOIRE

Ce bien n'est pas géolocalisé, pour connaitre sa géolocalisation, merci de contacter l'agence.

Consommation énergétique

  • C (178 kWh/m² an)
    A (5 kgCO2/m².an)
    Plus d'info
    178
    5
    5
  • DPE réalisé après le 1er juillet 2021.
  • Entre 494 € TTC / an et 668 € TTC / an
    01/01/2021

Nos professionnels vous accompagnent

Contactez notre agence !

41 rue des Lices 49100 ANGERS

Appeler l’agence Tél : 0241399039

* Champs obligatoires

Nous vous informons de l’existence de la liste d’opposition au démarchage téléphonique « BLOCTEL » sur laquelle vous pouvez vous inscrire (https://www.bloctel.gouv.fr).

En complétant le formulaire «CONTACTEZ NOTRE AGENCE », je reconnais expressément que je consens au traitement de mes données personnelles et que je dispose du droit de retirer mon consentement à tout moment en m'adressant à support@fnaim.fr.
En savoir plus sur la gestion de vos données et droits : consulter nos mentions légales, « article 5/ Données à caractère personnel ».

En envoyant ce message, vous acceptez les conditions d'utilisation du site. Plus d'infos