Fnaim.fr
Menu

Exclusivité
Réf. V6724H

Achat Maison 3 pièces 80m² CHABRIS 36210

28 400 Honoraires charge vendeur

1 chambre

Description du bien

Exclusivité de votre agence.
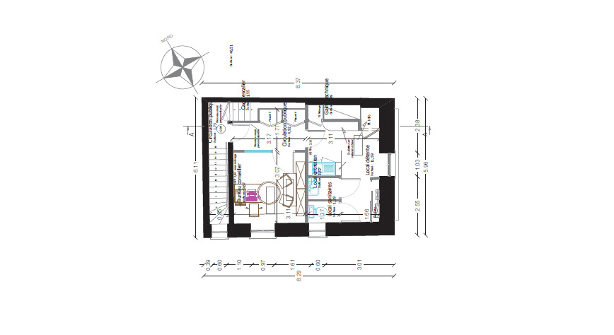
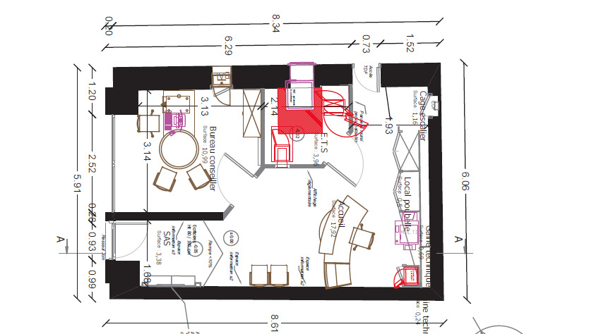
Un immeuble à usage commercial 15 pont (rue du) 36210 Chabris et comprenant :
Un rez-de-chaussée divisé en :
Hall d'entrée, espace accueil, 2 bureaux, une pièce à sécurité renforcée disposant d'un accès sur
l'extérieur, local informatique, pièce avec évier de cuisine et 2 water-closets
Le tout pour une superficie utile de 55 m2 environ d'après les documents en notre possession.
Grenier d'une superficie de 65 m2 au sol environ sur l'ensemble accessible par une porte située au premier étage de la façade sur rue.
Ensemble cadastré pour une contenance de 69 m2.
Chauffage par pompe à chaleur air/air.
La construction, mitoyenne des deux côtés. Toiture 2 pans avec couverture en tuiles mécaniques. Département de l'Indre. Communauté de communes de la Chabris - Pays de Bazelle. 14 km de Romorantin-Lanthenay, 57 km de Châteauroux et 87 km de Tours. Autoroute A85 à 30km au Nord de la commune. La gare de Chabris, desservie par des trains TER Centre-Val de Loire, permet de desservir la ligne Romorantin-Lanthenay et Valençay.En 2021, la commune comptait 2 764 habitants.

Les prix indiqués s'entendent honoraires d'agence inclus. Frais de notaire en sus.

Etat des risques et pollutions

Les informations sur les risques auxquels ce bien est exposé sont disponibles sur le site Géorisques : www.georisques.gouv.fr.

Caractéristiques du bien

Composition du bien

  • Type d'habitation : Maison
  • Nombre de chambres : 1
  • Cuisine : Type de cuisine Non communique

Aménagement du bien

  • Cave : Non
  • Garage / Parking : Non
    • Surface habitable : 80 m²

    Localisation du bien

    CHABRIS (36210) , INDRE (36) - CENTRE-VAL-DE-LOIRE

    Ce bien n'est pas géolocalisé, pour connaitre sa géolocalisation, merci de contacter l'agence.

    Consommation énergétique

    • B (92 kWh/m² an)
      A (2 kgCO2/m².an)
      Plus d'info
      92
      2
      2
    • DPE réalisé après le 1er juillet 2021.
    • Entre 470 € TTC / an et 650 € TTC / an
      01/01/2021

    Nos professionnels vous accompagnent

    Contactez notre agence !

    7 place des Victoires 37230 LUYNES

    Appeler l’agence Tél : 0247401010

    * Champs obligatoires

    Nous vous informons de l’existence de la liste d’opposition au démarchage téléphonique « BLOCTEL » sur laquelle vous pouvez vous inscrire (https://www.bloctel.gouv.fr).

    En complétant le formulaire «CONTACTEZ NOTRE AGENCE », je reconnais expressément que je consens au traitement de mes données personnelles et que je dispose du droit de retirer mon consentement à tout moment en m'adressant à support@fnaim.fr.
    En savoir plus sur la gestion de vos données et droits : consulter nos mentions légales, « article 5/ Données à caractère personnel ».

    En envoyant ce message, vous acceptez les conditions d'utilisation du site. Plus d'infos