Fnaim.fr
Menu

Acheter

Réf. 425894MOAU

Achat Maison 5 pièces 97m² SONGY 51240

116 000 Honoraires charge vendeur

3 chambres Parking / Garage

Description du bien

Aurore Moussy, Propriétés Privées, vous propose cette charmante maison de ville rénovée - 97 m² - 3 chambres - A 10 min de Vitry-le-François
Idéale pour un premier achat ou un investissement locatif, cette jolie maison de ville entièrement rénovée allie confort moderne et espaces bien agencés.
Localisation : Située à seulement 10 minutes de Vitry-le-François, dans un environnement calme et agréable.
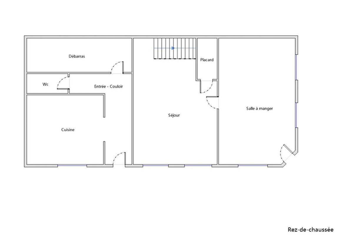
Agencement :
Au rez-de-chaussée :
-Une entrée accueillante
-Une cuisine indépendante, aménagée et équipée (9,5 m²)
-Un salon cosy de 15,65 m²
-Une grande salle à manger lumineuse de 25 m², parfaite pour recevoir
-Un WC indépendant
-Un cellier pratique pour le rangement
A l'étage :
-Trois chambres
-Une salle d'eau moderne
Atouts supplémentaires :
-Rénovation complète, aucun travaux à prévoir
-Idéal pour primo-accédants souhaitant poser leurs valises ou investisseurs recherchant un bien prêt à louer
N'attendez plus pour organiser une visite !
Chauffage électrique
DPE E GES B
Montant estimé des dépenses annuelles d'énergie pour un usage standard entre 2040 et 2800 euros indexées aux années 2021, 2022 et 2023

Pour visiter et vous accompagner dans votre projet, contactez Aurore MOUSSY, au 0670639839 ou, par courriel à a.moussy@proprietes-privees.com.
Prix de vente : 116.000 euros (honoraires à charge vendeur).

Pour visiter et vous accompagner dans votre projet, contactez Aurore MOUSSY, au 0670639839 ou, par courriel à a.moussy@proprietes-privees.com.
Selon l'article L.561.5 du Code Monétaire et Financier, pour l'organisation de la visite, la présentation d'une pièce d'identité vous sera demandée.
Cette présente annonce a été rédigée sous la responsabilité éditoriale de Aurore MOUSSY agissant sous le statut d'agent commercial immatriculé au RSAC CHALONS EN CHAMPAGNE 405 164 773 auprès de SAS PROPRIETES PRIVEES, au capital de 44 920 euros, ZAC LE CHÊNE FERRÉ - 44 ALLÉE DES CINQ CONTINENTS 44120 VERTOU; SIRET 487 624 777 00040, RCS Nantes. Carte Professionnelle Transactions sur immeubles et fonds de commerce (T) et Gestion immobilière (G) n° CPI 4401 2016 000 010 388 délivrée par la CCI Nantes - Saint Nazaire. Compte séquestre n°30932508467 BPA SAINT-SEBASTIEN-SUR-LOIRE (44230). Garantie GALIAN-SMABTP - 89 rue de la Boétie, 75008 Paris - n°28137 J pour 2 000 000 euros pour T et 120 000 euros pour G. Assurance responsabilité civile professionnelle par GALIAN-SMABTP n° de police 28137.J
Mandat réf : 425894 - Le professionnel garantit et sécurise votre projet immobilier.

Aurore MOUSSY (EI) Agent Commercial - Numéro RSAC : CHALONS EN CHAMPAGNE 405 164 773 - .
Les informations sur les risques auxquels ce bien est exposé sont disponibles sur le site Géorisques : www. georisques. gouv. fr

Etat des risques et pollutions

Les informations sur les risques auxquels ce bien est exposé sont disponibles sur le site Géorisques : www.georisques.gouv.fr.

Caractéristiques du bien

Composition du bien

  • Type d'habitation : Maison
  • Nombre de chambres : 3
  • Nombre de salles de bain : 1
  • Cuisine : Aménagée

Aménagement du bien

  • Cave : Non
  • Garage / Parking : Oui
    • Surface habitable : 97 m²
    • Parking : Oui

    Localisation du bien

    SONGY (51240) , MARNE (51) - GRAND-EST

    Ce bien n'est pas géolocalisé, pour connaitre sa géolocalisation, merci de contacter l'agence.

    Consommation énergétique

    • E (275 kWh/m² an)
      B (9 kgCO2/m².an)
      Plus d'info
      275
      9
      9
    • DPE réalisé après le 1er juillet 2021.
    • Entre 2040 € TTC / an et 2800 € TTC / an
      Non communiqué

    Nos professionnels vous accompagnent

    Contactez notre agence !

    44 Allée des Cinq Continents ZAC Le Chêne Ferré 44120 VERTOU

    Appeler l’agence Tél : 06 70 63 98 39

    * Champs obligatoires

    Nous vous informons de l’existence de la liste d’opposition au démarchage téléphonique « BLOCTEL » sur laquelle vous pouvez vous inscrire (https://www.bloctel.gouv.fr).

    En complétant le formulaire «CONTACTEZ NOTRE AGENCE », je reconnais expressément que je consens au traitement de mes données personnelles et que je dispose du droit de retirer mon consentement à tout moment en m'adressant à support@fnaim.fr.
    En savoir plus sur la gestion de vos données et droits : consulter nos mentions légales, « article 5/ Données à caractère personnel ».

    En envoyant ce message, vous acceptez les conditions d'utilisation du site. Plus d'infos