Fnaim.fr
Menu

Acheter

Exclusivité
Réf. VAP40002168

Achat Appartement 5 pièces 79m² MENTON 06500

310 000 Honoraires charge acquéreur inclus : 5.1% TTC (295013 € hors honoraires)

4 chambres Balcon Ascenseur Parking / Garage

Description du bien

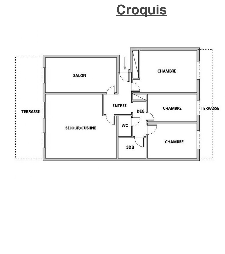
RARE SUR LE MARCHE, en exclusivité dans le quartier recherché du Borrigo.
Venez découvrir ce spacieux 5 pièces d'environ 80 m2 avec un parking privé et une cave.
En bon état général il offre une très belle luminosité grâce à sa double exposition est-ouest.
Il dispose de 4 chambres et une spacieuse terrasse de 23 m2 pour de bons moments en famille.
A proximité des écoles, commerces, ligne de bus et accès autoroute
Un parking extérieur privé et une cave complètent ce bien idéal pour une famille d'actifs
Très beau potentiel ! Tout est là pour vous plaire. Contactez nous pour une visite !!!

Etat des risques et pollutions

Les informations sur les risques auxquels ce bien est exposé sont disponibles sur le site Géorisques : www.georisques.gouv.fr.

Caractéristiques du bien

Composition du bien

  • Type d'habitation : Appartement
  • Cuisine : Américaine
  • Nombre de pièce(s) : 5
  • Nombre de chambre(s) : 4
  • Salles de bain : 1

Aménagement du bien

Extérieur

  • Terrasse : Non
  • Balcon : Oui

Partie Commune

  • Ascenseur : Oui
  • Surface habitable : 79 m²
  • Parking : Oui

Localisation du bien

MENTON (06500) , ALPES-MARITIMES (06) - PROVENCE-ALPES-COTE-D-AZUR

Ce bien n'est pas géolocalisé, pour connaitre sa géolocalisation, merci de contacter l'agence.

Consommation énergétique

  • C (160 kWh/m² an)
    D (34 kgCO2/m².an)
    Plus d'info
    160
    34
    34
  • DPE réalisé après le 1er juillet 2021.
  • Entre 1030 € TTC / an et 1430 € TTC / an
    01/01/2022

Nos professionnels vous accompagnent

Contactez notre agence !

3 RUE VICTOR HUGO 06190 ROQUEBRUNE CAP MARTIN

Appeler l’agence Tél : 0686614513

* Champs obligatoires

Nous vous informons de l’existence de la liste d’opposition au démarchage téléphonique « BLOCTEL » sur laquelle vous pouvez vous inscrire (https://www.bloctel.gouv.fr).

En complétant le formulaire «CONTACTEZ NOTRE AGENCE », je reconnais expressément que je consens au traitement de mes données personnelles et que je dispose du droit de retirer mon consentement à tout moment en m'adressant à support@fnaim.fr.
En savoir plus sur la gestion de vos données et droits : consulter nos mentions légales, « article 5/ Données à caractère personnel ».

En envoyant ce message, vous acceptez les conditions d'utilisation du site. Plus d'infos