Fnaim.fr
Menu

Acheter

Exclusivité
Réf. VF-CHA-31557

Achat Appartement 3 pièces 65m²

197 000 Honoraires charge vendeur

2 chambres Ascenseur

Description du bien


CHARTRES en plein COEUR DE VILLE avec PARKING ET CAVE, SQUARE HABITAT VOUS PROPOSE A LA VENTE ET EN EXCLUSIVITE,
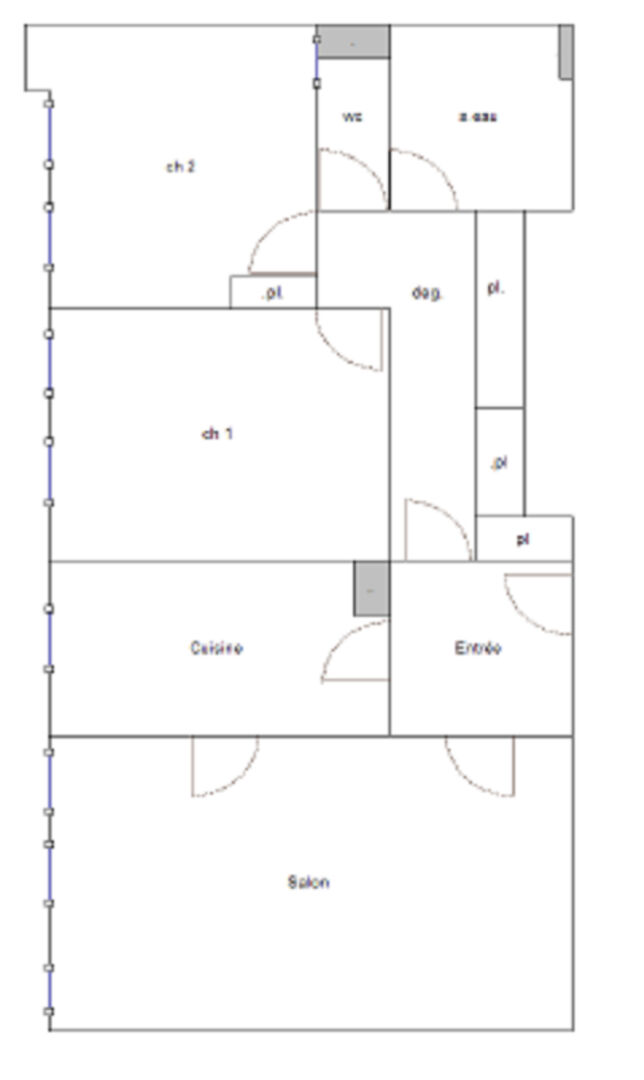
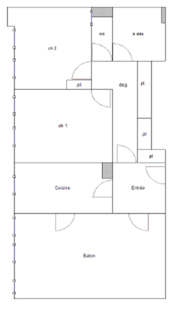
cet appartement T3 de 65m² situé au 3ème et dernier étage avec ascenseur et vue dégagée sans vis-à-vis, comprenant : entrée et placards, , un très beau séjour lumineux avec sa cuisine séparée, aménagée et équipée, couloir avec rangements, deux chambres, salle d'eau et WC. Une place de parking en sous-sol sécurisé et une cave individuelle en rez de chaussée complètent ce bien. Résidence de standing .
Bien complet rare en centre ville.
A VISITER SANS TARDER!

Etat des risques et pollutions

Les informations sur les risques auxquels ce bien est exposé sont disponibles sur le site Géorisques : www.georisques.gouv.fr.

Caractéristiques du bien

Composition du bien

  • Type d'habitation : Appartement
  • Nombre de pièce(s) : 3
  • Nombre de chambre(s) : 2

Aménagement du bien

Extérieur

  • Terrasse : Non
  • Balcon : Non

Partie Commune

  • Ascenseur : Oui
  • Surface habitable : 65 m²

Informations sur la copropriété

  • Bien soumis au statut de la copropriété
  • Nombre de lots : 83
  • Quote part charges courantes : 1720 €/an
  • Procédure en cours : Non

Localisation du bien

Ce bien n'est pas géolocalisé, pour connaitre sa géolocalisation, merci de contacter l'agence.

Consommation énergétique

  • E (252 kWh/m² an)
    B (8 kgCO2/m².an)
    Plus d'info
    252
    8
    8
  • DPE réalisé après le 1er juillet 2021.
  • Entre 1290 € TTC / an et 1790 € TTC / an
    Non communiqué

Nos professionnels vous accompagnent

Contactez notre agence !

25 RUE DE LA VOLAILLE 28000 CHARTRES

Appeler l’agence Tél : 0237213203

* Champs obligatoires

Nous vous informons de l’existence de la liste d’opposition au démarchage téléphonique « BLOCTEL » sur laquelle vous pouvez vous inscrire (https://www.bloctel.gouv.fr).

En complétant le formulaire «CONTACTEZ NOTRE AGENCE », je reconnais expressément que je consens au traitement de mes données personnelles et que je dispose du droit de retirer mon consentement à tout moment en m'adressant à support@fnaim.fr.
En savoir plus sur la gestion de vos données et droits : consulter nos mentions légales, « article 5/ Données à caractère personnel ».

En envoyant ce message, vous acceptez les conditions d'utilisation du site. Plus d'infos