Fnaim.fr
Menu

Acheter

Visite virtuelle
Réf. 421891FLCQ

Achat Immeuble 145m² AUBENAS 07200

64 990

Description du bien

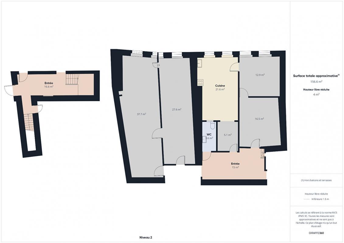
Aubenas(07200)Bien à rénover d 'environ 140M² +grandes dépendances au RDC d'environ 140 M² avec hauteur sous plafond de 3.30M +combles de 140m² environ de surface plancher.Le bien totalise une surface de plancher de 411M² .Fort potentiel pour investisseur pourrait convenir pour espace de stockage garage pour véhicules ou tout autres activités ,.Arret de bus à 2 minutes ,commodités à proximité .Prevoir branchement d eau et edf .Tout à l'égout .Biens non soumis au DPE .Prix 64990Honoraires charge vendeur .
Pour visiter et vous accompagner dans votre projet, contactez Franck LECLERCQ, au 0634993466 ou, par courriel à f.leclercq@proprietes-privees.com.
Selon l'article L.561.5 du Code Monétaire et Financier, pour l'organisation de la visite, la présentation d'une pièce d'identité vous sera demandée.
Cette présente annonce a été rédigée sous la responsabilité éditoriale de Franck LECLERCQ agissant sous le statut d'agent commercial immatriculé au RSAC 328198791 auprès de SAS PROPRIETES PRIVEES, au capital de 44 920 euros, ZAC LE CHÊNE FERRÉ - 44 ALLÉE DES CINQ CONTINENTS 44120 VERTOU; SIRET 487 624 777 00040, RCS Nantes. Carte Professionnelle Transactions sur immeubles et fonds de commerce (T) et Gestion immobilière (G) n°CPI 4401 2016 000 010 388 délivrée par la CCI Nantes - Saint Nazaire. Compte séquestre n°30932508467 BPA SAINT-SEBASTIEN-SUR-LOIRE (44230). Garantie GALIAN-SMABTP - 89 rue de la Boétie, 75008 Paris - n°28137 J pour 2 000 000 euros pour T et 120 000 euros pour G. Assurance responsabilité civile professionnelle par GALIAN-SMABTP n° de police 28137.J

Mandat réf :421891- Le professionnel garantit et sécurise votre projet immobilier.

Franck LECLERCQ (EI) Agent Commercial - Numéro RSAC : 328198791 - .
Les informations sur les risques auxquels ce bien est exposé sont disponibles sur le site Géorisques : www. georisques. gouv. fr

Etat des risques et pollutions

Les informations sur les risques auxquels ce bien est exposé sont disponibles sur le site Géorisques : www.georisques.gouv.fr.

Caractéristiques du bien

Composition du bien

  • Type d'habitation : Immeuble
  • Surface totale : 145 m²

Aménagement du bien

Partie Commune

  • Ascenseur : Non
  • Accès digicode : Non

Localisation du bien

AUBENAS (07200) , ARDECHE (07) - AUVERGNE-RHÔNE-ALPES

Ce bien n'est pas géolocalisé, pour connaitre sa géolocalisation, merci de contacter l'agence.

Consommation énergétique

DPE non soumis
mention indiquée sous la responsabilité de l’agence immobilière

Nos professionnels vous accompagnent

Contactez notre agence !

44 Allée des Cinq Continents ZAC Le Chêne Ferré 44120 VERTOU

Appeler l’agence Tél : 06 34 99 34 66

* Champs obligatoires

Nous vous informons de l’existence de la liste d’opposition au démarchage téléphonique « BLOCTEL » sur laquelle vous pouvez vous inscrire (https://www.bloctel.gouv.fr).

En complétant le formulaire «CONTACTEZ NOTRE AGENCE », je reconnais expressément que je consens au traitement de mes données personnelles et que je dispose du droit de retirer mon consentement à tout moment en m'adressant à support@fnaim.fr.
En savoir plus sur la gestion de vos données et droits : consulter nos mentions légales, « article 5/ Données à caractère personnel ».

En envoyant ce message, vous acceptez les conditions d'utilisation du site. Plus d'infos