Fnaim.fr
Menu

Achat Maison 5 pièces 118m² PLANCOET 22130

303 000 Honoraires charge acquéreur inclus : 4.5% TTC (289426 € hors honoraires)

4 chambres Jardin

Description du bien

AIS / LANCIEUX vous propose cette magnifique maison, neuve, sous garantie décennale dans un quartier calme et proche du centre de Plancoët. 
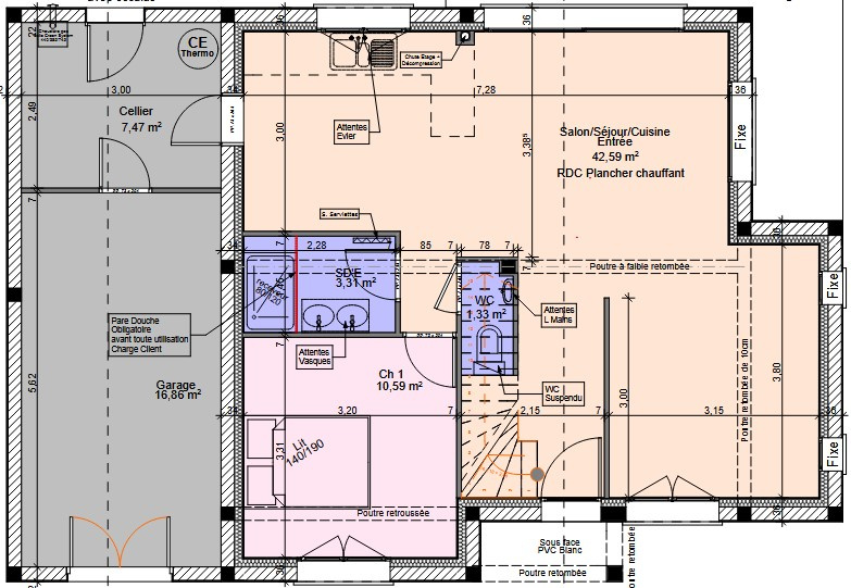
Cette construction de qualité offre en rez-de-chaussée, une entrée, WC, pièce de vie avec salon/séjour avec une belle baie vitré SUD permettant accès jardin, une cuisine aménagée et équipée de qualité, une chambre avec salle d'eau privative. Une buanderie et une pièce isolée d'environ 17m2 avec accès indépendant via une porte fenêtre. 
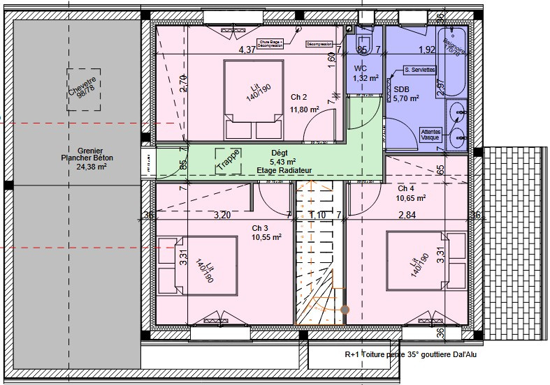
A l'étage, un dégagement dessert 3 chambres (sur parquet), salle d'eau, WC et une pièce au-dessus du garage permettant de faire une 5ème chambre. 
Le tout sur une parcelle d'environ 470m2. Personnalisez cette maison selon vos envies ! 
 

Etat des risques et pollutions

Les informations sur les risques auxquels ce bien est exposé sont disponibles sur le site Géorisques : www.georisques.gouv.fr.

Caractéristiques du bien

Composition du bien

  • Type d'habitation : Maison
  • Nombre de chambres : 4
  • Cuisine : Américaine

Aménagement du bien

  • Cave : Non
  • Garage / Parking : Non
    • Surface habitable : 118 m²

    Localisation du bien

    PLANCOET (22130) , COTES-D'ARMOR (22) - BRETAGNE

    Ce bien n'est pas géolocalisé, pour connaitre sa géolocalisation, merci de contacter l'agence.

    Consommation énergétique

    • B (80 kWh/m² an)
      B (10 kgCO2/m².an)
      Plus d'info
      80
      10
      10
    • DPE réalisé après le 1er juillet 2021.
    • Entre 710 € TTC / an et 1020 € TTC / an
      01/01/2023

    Nos professionnels vous accompagnent

    Contactez notre agence !

    11 rue du Colonel Pleven. 22650 BEAUSSAIS SUR MER

    Appeler l’agence Tél : 0769587113

    * Champs obligatoires

    Nous vous informons de l’existence de la liste d’opposition au démarchage téléphonique « BLOCTEL » sur laquelle vous pouvez vous inscrire (https://www.bloctel.gouv.fr).

    En complétant le formulaire «CONTACTEZ NOTRE AGENCE », je reconnais expressément que je consens au traitement de mes données personnelles et que je dispose du droit de retirer mon consentement à tout moment en m'adressant à support@fnaim.fr.
    En savoir plus sur la gestion de vos données et droits : consulter nos mentions légales, « article 5/ Données à caractère personnel ».

    En envoyant ce message, vous acceptez les conditions d'utilisation du site. Plus d'infos