Fnaim.fr
Menu

Réf. 90_13621

Achat Maison 3 pièces 69m² PUY L EVEQUE 46700

137 000 Honoraires charge vendeur

2 chambres Jardin Parking / Garage

Description du bien

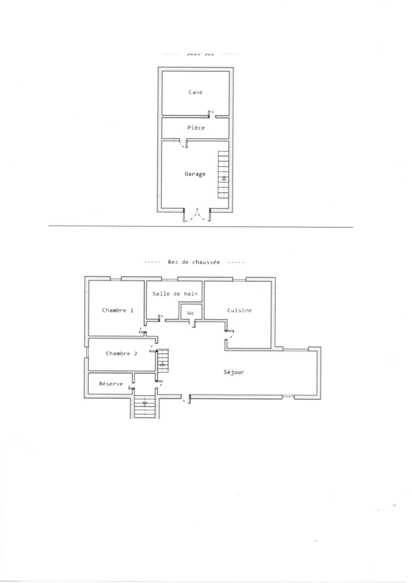
Pascal vous propose (07 88 69 00 07): Originale maison d'architecte d'inspiration méridionale sur plusieurs niveaux. Vous entrez directement dans la pièce à vivre très lumineuse car double exposition. Cheminée et plafond cathédrale. Sur le même niveau: cuisine séparée, chambre avec accès direct au jardin, salle de bain et wc séparé. Par quelques marches, vous accédez à la deuxiéme chambre. Accès à une pièce de rangement, qui avec une fenêtre supplémentaire, donnerait une troisième chambre. Garage, buanderie et cave. Jardin paysagé en coteau ou 'restanque'.

LES PRESTATIONS: MAISON FONCTIONNELLE EN POSITION DOMINANTE. TOUT A L'EGOUT. PANNEAUX PHOTOVOLTAIQUES SOUS DECENNALE. DEUX BELLES TERRASSES . COMMODITES ET ECOLES A PROXIMITE IMMEDIATE. BEAU VILLAGE MEDIEVAL.
Annonce immobilière rédigée sous la responsabilité éditoriale d'un agent commercial indépendant.Annonce rédigée sous la responsabilité éditoriale de Pascal COMBET-VALLOIS - RSAC no452 154 156 CAHORS Les informations sur les risques auxquels ce bien est exposé sont disponibles sur le site Géorisques : www.georisques.gouv.fr

Etat des risques et pollutions

Les informations sur les risques auxquels ce bien est exposé sont disponibles sur le site Géorisques : www.georisques.gouv.fr.

Caractéristiques du bien

Composition du bien

  • Type d'habitation : Maison
  • Nombre de chambres : 2
  • Nombre de salles de bain : 1
  • Cuisine : Type de cuisine Non communique

Aménagement du bien

  • Cave : Non
  • Garage / Parking : Oui
    • Surface habitable : 69 m²
    • Parking : Oui

    Localisation du bien

    PUY L EVEQUE (46700) , LOT (46) - OCCITANIE

    Ce bien n'est pas géolocalisé, pour connaitre sa géolocalisation, merci de contacter l'agence.

    Consommation énergétique

    • E (275 kWh/m² an)
      B (9 kgCO2/m².an)
      Plus d'info
      275
      9
      9
    • DPE réalisé après le 1er juillet 2021.
    • Entre 1470 € TTC / an et 2030 € TTC / an
      01/01/2024

    Nos professionnels vous accompagnent

    Contactez notre agence !

    Chemin de la Vieille Côte. 31140 LAUNAGUET

    Appeler l’agence Tél : 0788690007

    * Champs obligatoires

    Nous vous informons de l’existence de la liste d’opposition au démarchage téléphonique « BLOCTEL » sur laquelle vous pouvez vous inscrire (https://www.bloctel.gouv.fr).

    En complétant le formulaire «CONTACTEZ NOTRE AGENCE », je reconnais expressément que je consens au traitement de mes données personnelles et que je dispose du droit de retirer mon consentement à tout moment en m'adressant à support@fnaim.fr.
    En savoir plus sur la gestion de vos données et droits : consulter nos mentions légales, « article 5/ Données à caractère personnel ».

    En envoyant ce message, vous acceptez les conditions d'utilisation du site. Plus d'infos