Fnaim.fr
Menu

Réf. 3709LRPB

Achat Appartement 4 pièces 105m² ST JUST ST RAMBERT 42170

395 000 Honoraires charge vendeur

3 chambres

Description du bien

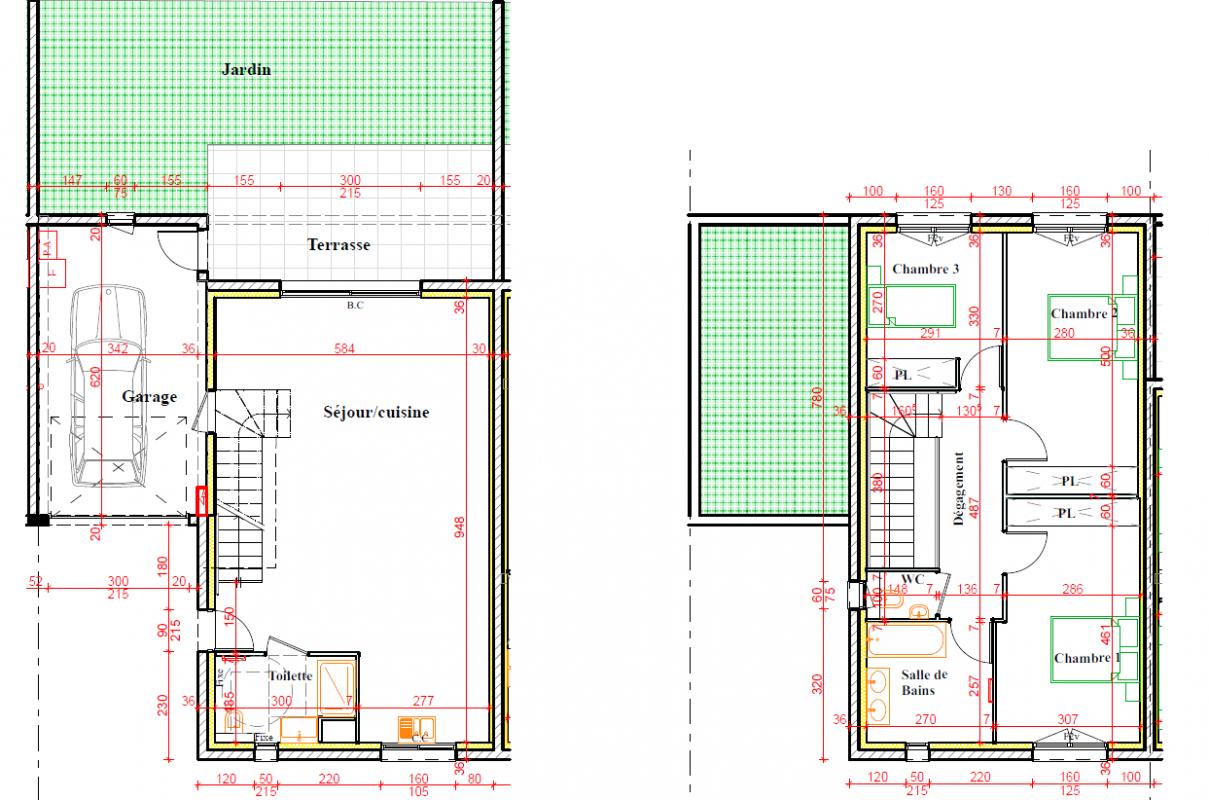
SAINT JUST SAINT RAMBERT, mieux qu'un appartement en copropriété (pas de charges). Du NEUF en VEFA !
Devenez propriétaire d'une maison individuelle en duplex 105m² habitables comprenant en rez-de-chaussée : Séjour/cuisine 45m² avec baie vitrée sur terrasse 18m² exposée Ouest, Salle d'eau/WC.
A l'étage : 3 chambres avec rangements (9.6, 15.44 et 15.68), salle de bains et WC séparé. Garage attenant. Construction moderne avec isolation performante, chauffage par pompe à chaleur réversible, plancher chauffant au rez-de-chaussée.
BUDGET 395 000 EUROS honoraires agence inclus.
A 800m de la place du marché, secteur calme, en retrait de la route.
NON SOUMIS A DPE
Pour plus d'informations : Laurent PHILIBERT : 06.01.15.22.55.
Pour visiter et vous accompagner dans votre projet, contactez Laurent PHILIBERT, au 0601152255 ou, par courriel à l.philibert@proprietes-privees.com.
Selon l'article L.561.5 du Code Monétaire et Financier, pour l'organisation de la visite, la présentation d'une pièce d'identité vous sera demandée.
Cette présente annonce a été rédigée sous la responsabilité éditoriale de Laurent PHILIBERT agissant sous le statut d'agent commercial auprès de SAS AGENCE IMMOBILIERE DE ST GENEST MALIFAUX, au capital de 8 000 euros, SIREN 450 309 422 00019, RCS Saint Étienne. Carte professionnelle ?Transactions sur immeubles et fonds de commerce' n° CPI 42022016000010412 délivrée par la CCI de Lyon Métropole Saint Étienne Roanne. L'agence ne doit recevoir ni détenir d'autres fonds que ceux représentatifs de sa rémunération ou de sa commission.
Assurance responsabilité civile professionnelle par ALLIANZ ACTIF PRO n° de police 54768063. Tous nos conseillers sont des agents mandataires indépendants détenteurs d'une attestation de la CCI

Mandat réf : 3709

Laurent PHILIBERT (EI) Agent Commercial - Numéro RSAC : 841171887 - .
Les informations sur les risques auxquels ce bien est exposé sont disponibles sur le site Géorisques : www. georisques. gouv. fr

Etat des risques et pollutions

Les informations sur les risques auxquels ce bien est exposé sont disponibles sur le site Géorisques : www.georisques.gouv.fr.

Caractéristiques du bien

Composition du bien

  • Type d'habitation : Appartement
  • Cuisine : Simple
  • Nombre de pièce(s) : 4
  • Nombre de chambre(s) : 3

Aménagement du bien

Extérieur

  • Terrasse : Non
  • Balcon : Non

Partie Commune

  • Ascenseur : Non
  • Surface habitable : 105 m²

Localisation du bien

ST JUST ST RAMBERT (42170) , LOIRE (42) - AUVERGNE-RHÔNE-ALPES

Ce bien n'est pas géolocalisé, pour connaitre sa géolocalisation, merci de contacter l'agence.

Consommation énergétique

DPE non soumis
mention indiquée sous la responsabilité de l’agence immobilière

Nos professionnels vous accompagnent

Contactez notre agence !

44 Allée des Cinq Continents. ZAC Le Chêne Ferré 44120 VERTOU

Appeler l’agence Tél : 06 01 15 22 55

* Champs obligatoires

Nous vous informons de l’existence de la liste d’opposition au démarchage téléphonique « BLOCTEL » sur laquelle vous pouvez vous inscrire (https://www.bloctel.gouv.fr).

En complétant le formulaire «CONTACTEZ NOTRE AGENCE », je reconnais expressément que je consens au traitement de mes données personnelles et que je dispose du droit de retirer mon consentement à tout moment en m'adressant à support@fnaim.fr.
En savoir plus sur la gestion de vos données et droits : consulter nos mentions légales, « article 5/ Données à caractère personnel ».

En envoyant ce message, vous acceptez les conditions d'utilisation du site. Plus d'infos