Fnaim.fr
Menu

Acheter

Réf. VM21171-DURET

Achat Maison 5 pièces 88m² CLISSON 44190

334 000 Honoraires charge acquéreur inclus

3 chambres Jardin Balcon Parking / Garage

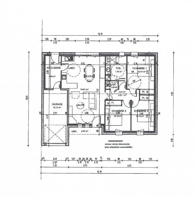
Description du bien

CLISSON ? MAISON RÉCENTE DE PLAIN-PIED EN IMPASSE ? EXCLUSIVITÉ DURET -

EXCLUSIVITÉ ? Située dans une impasse au calme, au sein d'un lotissement sur Clisson, cette maison construite en 2017 offre des prestations de qualité et un agencement fonctionnel.

D'une surface bien pensée, elle se compose d'une belle pièce de vie traversante comprenant une salle à manger, une cuisine ouverte et un salon lumineux. Un dégagement dessert trois chambres, une salle d'eau et un WC indépendant.
La maison est adaptée aux normes PMR, et dispose également d'une buanderie, d'un garage, et d'un jardin agréable pour profiter des extérieurs.

Un bien rare, alliant confort moderne, accessibilité et tranquillité, à deux pas des commodités de Clisson.

COBE

Classe énergie C, Classe climat C Montant estimé des dépenses annuelles d'énergie pour un usage standard : entre 790.00 ? et 1140.00 ? sur les années 2021, 2022 et 2023 (abonnements compris). Les informations sur les risques auxquels ce bien est exposé sont disponibles sur le site Géorisques : georisques.gouv.fr.

AC ADC 4401 2022 000 003 199

Etat des risques et pollutions

Les informations sur les risques auxquels ce bien est exposé sont disponibles sur le site Géorisques : www.georisques.gouv.fr.

Caractéristiques du bien

Composition du bien

  • Type d'habitation : Maison
  • Nombre de chambres : 3
  • Cuisine : Equipée

Aménagement du bien

  • Cave : Non
  • Garage / Parking : Oui
    • Surface habitable : 88 m²
    • Parking : Oui

    Localisation du bien

    CLISSON (44190) , LOIRE-ATLANTIQUE (44) - PAYS-DE-LA-LOIRE

    Ce bien n'est pas géolocalisé, pour connaitre sa géolocalisation, merci de contacter l'agence.

    Consommation énergétique

    • C (85 kWh/m² an)
      C (15 kgCO2/m².an)
      Plus d'info
      85
      15
      15
    • DPE réalisé après le 1er juillet 2021.
    • Entre 790 € TTC / an et 1140 € TTC / an
      01/01/2021

    Nos professionnels vous accompagnent

    Contactez notre agence !

    3 RUE SAINT JACQUES 44190 CLISSON

    Appeler l’agence Tél : 0240366464

    * Champs obligatoires

    Nous vous informons de l’existence de la liste d’opposition au démarchage téléphonique « BLOCTEL » sur laquelle vous pouvez vous inscrire (https://www.bloctel.gouv.fr).

    En complétant le formulaire «CONTACTEZ NOTRE AGENCE », je reconnais expressément que je consens au traitement de mes données personnelles et que je dispose du droit de retirer mon consentement à tout moment en m'adressant à support@fnaim.fr.
    En savoir plus sur la gestion de vos données et droits : consulter nos mentions légales, « article 5/ Données à caractère personnel ».

    En envoyant ce message, vous acceptez les conditions d'utilisation du site. Plus d'infos