Fnaim.fr
Menu

Réf. 10-12192-1036

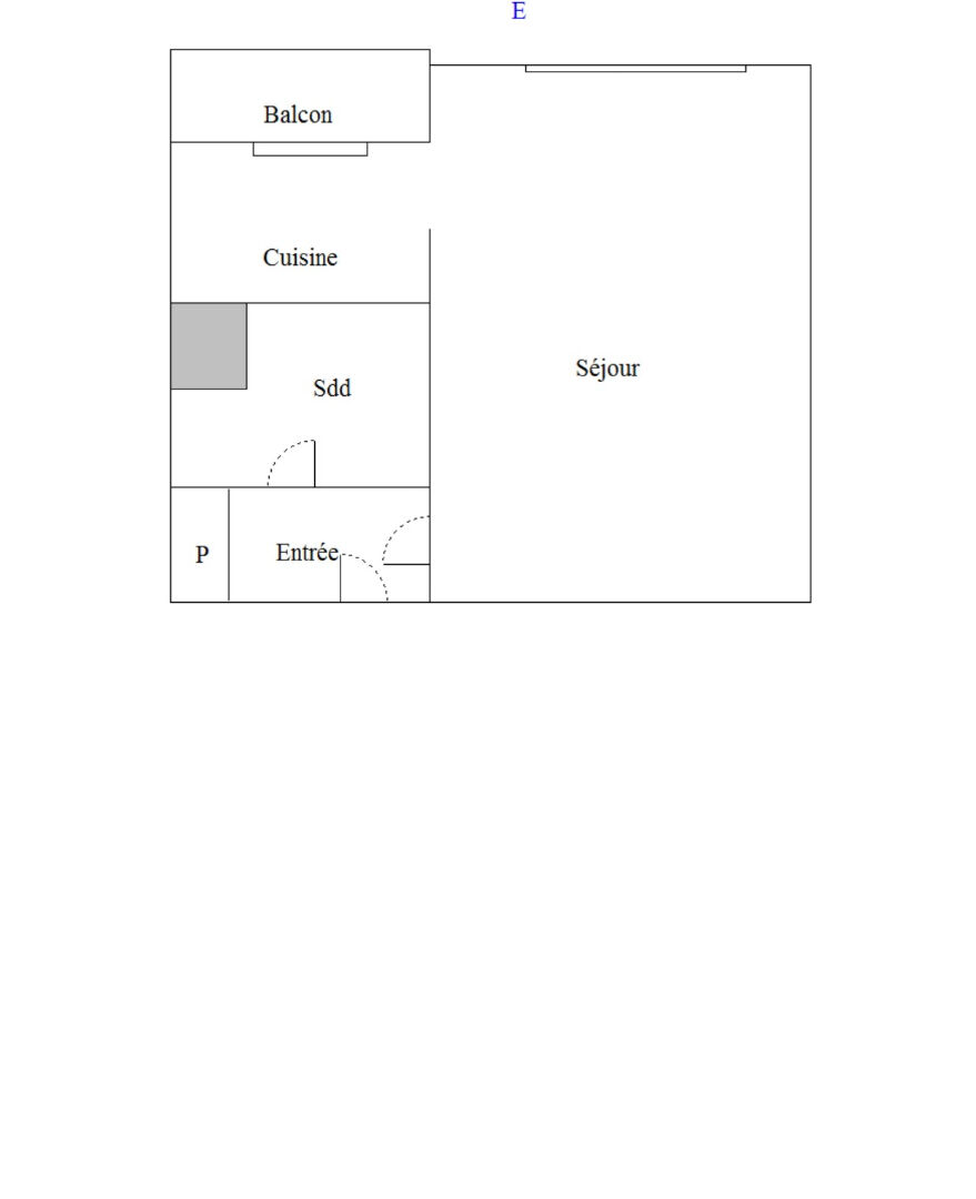
Achat Appartement 1 pièce 28m²

179 900 Honoraires charge vendeur

Ascenseur

Description du bien


Appartement vue mer à vendre à Cabourg - Accès direct plage

Un emplacement privilégié à Cabourg à proximité de la Promenade Marcel Proust à Cabourg, dans un environnement calme et recherché, cet appartement bénéficie d'un emplacement exceptionnel en bord de mer. Ce bien offre un cadre de vie idéal entre plage, nature et animation.

À seulement quelques pas de la résidence, vous accédez directement à la plage, sans route à traverser, un atout rare et très recherché. Vous profitez également de la proximité de lieux emblématiques tels que la promenade Marcel Proust, le Grand Hôtel et le centre-ville avec ses commerces, restaurants et marchés.

Ce secteur est particulièrement apprécié pour sa tranquillité tout en restant proche des activités : thalassothérapie, golf, casino et balades en bord de mer.

Les atouts de cet appartement
Vue mer panoramique exceptionnelle
Accès direct à la plage
Grand balcon Vue Mer
Appartement entièrement rénové
Vendu meublé
Emplacement recherché
Idéal investissement ou résidence secondaire

Charges annuelles : 966 euros.
Classe énergie E Classe climat C
Montant estimé des dépenses annuelles d'énergie pour un usage standard : entre 920 euros et 1280 euros par an - prix moyens des énergies indexés au 1° janvier 2021 (abonnement compris)
Les informations sur les risques auxquels ce bien est exposé sont disponibles sur le site Géorisques : www. georisques. gouv.fr

Etat des risques et pollutions

Les informations sur les risques auxquels ce bien est exposé sont disponibles sur le site Géorisques : www.georisques.gouv.fr.

Caractéristiques du bien

Composition du bien

  • Type d'habitation : Appartement
  • Cuisine : Type de cuisine Non communique
  • Nombre de pièce(s) : 1

Aménagement du bien

Extérieur

  • Terrasse : Non
  • Balcon : Non

Partie Commune

  • Ascenseur : Oui
  • Surface habitable : 28 m²

Informations sur la copropriété

  • Bien soumis au statut de la copropriété
  • Nombre de lots : 317
  • Quote part charges courantes : 966 €/an
  • Procédure en cours : Non

Localisation du bien

Ce bien n'est pas géolocalisé, pour connaitre sa géolocalisation, merci de contacter l'agence.

Consommation énergétique

  • E (329 kWh/m² an)
    C (12 kgCO2/m².an)
    Plus d'info
    329
    12
    12
  • DPE réalisé après le 1er juillet 2021.
  • Entre 920 € TTC / an et 1280 € TTC / an
    Non communiqué

Nos professionnels vous accompagnent

Contactez notre agence !

57 AVENUE DE LA MER 14390 CABOURG

Appeler l’agence Tél : 0231916868

* Champs obligatoires

Nous vous informons de l’existence de la liste d’opposition au démarchage téléphonique « BLOCTEL » sur laquelle vous pouvez vous inscrire (https://www.bloctel.gouv.fr).

En complétant le formulaire «CONTACTEZ NOTRE AGENCE », je reconnais expressément que je consens au traitement de mes données personnelles et que je dispose du droit de retirer mon consentement à tout moment en m'adressant à support@fnaim.fr.
En savoir plus sur la gestion de vos données et droits : consulter nos mentions légales, « article 5/ Données à caractère personnel ».

En envoyant ce message, vous acceptez les conditions d'utilisation du site. Plus d'infos