Fnaim.fr
Menu

Exclusivité
Réf. 86207603

Achat Appartement 4 pièces 69m² SASSENAGE 38360

155 000 Honoraires charge vendeur

2 chambres Ascenseur

Description du bien

? En Exclusivité – Appartement lumineux avec vue dégagée

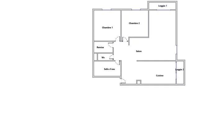
Situé au 6? étage avec ascenseur d’une copropriété familiale, sécurisée et parfaitement entretenue, cet appartement Type 4 de 69,85 m² (Loi Carrez) saura vous séduire par sa luminosité, sa vue dégagée et la qualité de sa rénovation récente.

? Les atouts du bien :

• Isolation intérieure réalisée, améliorant le confort thermique et énergétique du logement
• Climatisation réversible, idéale pour un confort optimal été comme hiver
• Menuiseries double vitrage avec volets roulants électriques
• Balcon exposé Sud-Est, offrant une belle luminosité et un espace extérieur agréable
• Double séjour spacieux de 32 m², permettant facilement l’aménagement d’une troisième chambre
• Cave privative
• Local à vélos collectif dans la copropriété
• Garage disponible en option

? Distribution :

L’appartement se compose de :

• Une entrée avec placard intégré
• Un double séjour lumineux de 32 m², ouvrant sur le balcon exposé Sud-Est, idéal pour un espace détente ou un coin bureau
• Une cuisine indépendante équipée, avec loggia / buanderie
• Deux chambres avec placards (possibilité de créer une troisième chambre)
• Une...

Etat des risques et pollutions

Les informations sur les risques auxquels ce bien est exposé sont disponibles sur le site Géorisques : www.georisques.gouv.fr.

Caractéristiques du bien

Composition du bien

  • Type d'habitation : Appartement
  • Cuisine : Type de cuisine Non communique
  • Nombre de pièce(s) : 4
  • Nombre de chambre(s) : 2

Aménagement du bien

Extérieur

  • Terrasse : Non
  • Balcon : Non

Partie Commune

  • Ascenseur : Oui
  • Surface habitable : 69 m²

Informations sur la copropriété

  • Bien soumis au statut de la copropriété
  • Nombre de lots : 240
  • Procédure en cours : Non

Localisation du bien

SASSENAGE (38360) , ISERE (38) - AUVERGNE-RHÔNE-ALPES

Consommation énergétique

  • C (158 kWh/m² an)
    C (26 kgCO2/m².an)
    Plus d'info
    158
    26
    26
  • DPE réalisé après le 1er juillet 2021.
  • Entre 920 € TTC / an et 1330 € TTC / an
    Non communiqué

Nos professionnels vous accompagnent

Contactez notre agence !

113 C avenue de la République 38130 ECHIROLLES

Appeler l’agence Tél : 06 23 21 25 01

* Champs obligatoires

Nous vous informons de l’existence de la liste d’opposition au démarchage téléphonique « BLOCTEL » sur laquelle vous pouvez vous inscrire (https://www.bloctel.gouv.fr).

En complétant le formulaire «CONTACTEZ NOTRE AGENCE », je reconnais expressément que je consens au traitement de mes données personnelles et que je dispose du droit de retirer mon consentement à tout moment en m'adressant à support@fnaim.fr.
En savoir plus sur la gestion de vos données et droits : consulter nos mentions légales, « article 5/ Données à caractère personnel ».

En envoyant ce message, vous acceptez les conditions d'utilisation du site. Plus d'infos