Fnaim.fr
Menu

Acheter

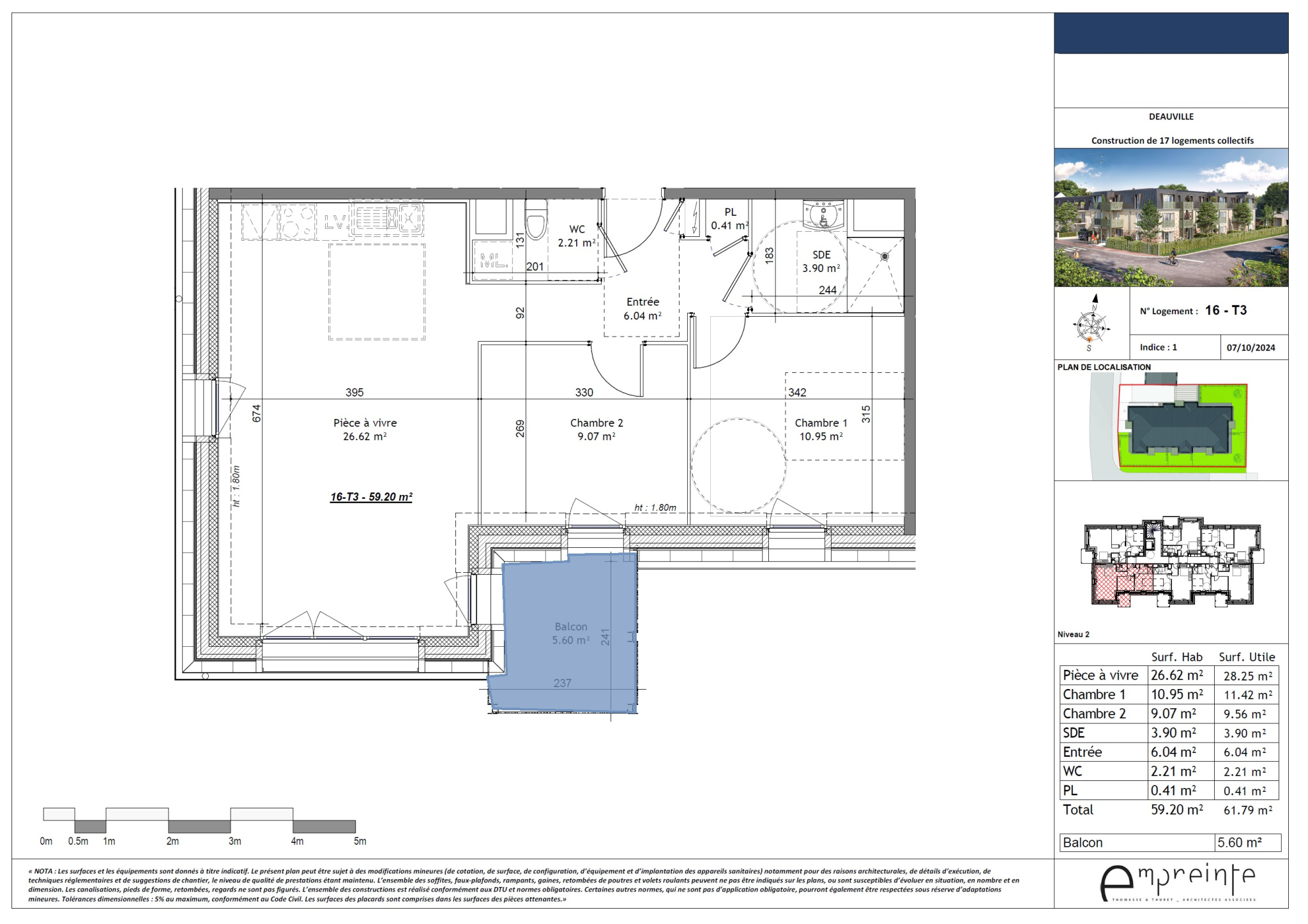
Achat Appartement 3 pièces 62m² DEAUVILLE 14800

339 300 Honoraires charge vendeur

2 chambres Balcon Ascenseur Parking / Garage

Description du bien

Nuances immobilières vous présente sur les hauteurs de Deauville sur le secteur église Saint Laurent, à proximité immédiate du Golf , une petite résidence cossue avec toit à la mansart.
Ici, nous vous présentons  un appartement au dernier étage avec ascenseur et parfaitement exposé.
L'appartement disposera d'une pièce de vie de 26m2 ouverte sur l'extérieur, puis 2 chambres dont une avec accès sur le balcon profond, salle d'eau avec douche à l'italienne, et wc indépendant.
Cette résidence propose de belles prestations (volets roulants électriques,revetement de sol en carrellage 45*45 pour la pièce de vie principale,parquet dans les chambres, menuiseries avec volets roulants électriques, bac à douche de grande taille (80*110cm) , salle d'eau aménagée ,vidéophone controlant les accès).
En complément, un stationnement au sous sol et une cave compris dans le prix.
Habitable début 2027.
Les informations sur les risques auxquels ce bien est exposé sont disponibles sur le site Géorisques : www.georisques.gouv.fr'.

Etat des risques et pollutions

Les informations sur les risques auxquels ce bien est exposé sont disponibles sur le site Géorisques : www.georisques.gouv.fr.

Caractéristiques du bien

Composition du bien

  • Type d'habitation : Appartement
  • Cuisine : Américaine
  • Nombre de pièce(s) : 3
  • Nombre de chambre(s) : 2

Aménagement du bien

Extérieur

  • Terrasse : Non
  • Balcon : Oui

Partie Commune

  • Ascenseur : Oui
  • Surface habitable : 62 m²
  • Parking : Oui

Localisation du bien

DEAUVILLE (14800) , CALVADOS (14) - NORMANDIE

Ce bien n'est pas géolocalisé, pour connaitre sa géolocalisation, merci de contacter l'agence.

Consommation énergétique

  • C (110 kWh/m² an)
    C (12 kgCO2/m².an)
    Plus d'info
    110
    12
  • DPE réalisé avant le 1er juillet 2021.
  • 600€ TTC / an
    01/01/2023

Nos professionnels vous accompagnent

Contactez notre agence !

10 rue de l'Oratoire 14000 CAEN

Appeler l’agence Tél : 0231084040

* Champs obligatoires

Nous vous informons de l’existence de la liste d’opposition au démarchage téléphonique « BLOCTEL » sur laquelle vous pouvez vous inscrire (https://www.bloctel.gouv.fr).

En complétant le formulaire «CONTACTEZ NOTRE AGENCE », je reconnais expressément que je consens au traitement de mes données personnelles et que je dispose du droit de retirer mon consentement à tout moment en m'adressant à support@fnaim.fr.
En savoir plus sur la gestion de vos données et droits : consulter nos mentions légales, « article 5/ Données à caractère personnel ».

En envoyant ce message, vous acceptez les conditions d'utilisation du site. Plus d'infos