Achat Maison 4 pièces 70m² THONON LES BAINS 74200
340 000 € Honoraires charge vendeur
3 chambres Jardin
                        
            
                                 LES ANNONCES
                            
        
        
                
            Acheter
                            
        
                
            
                                LES ANNONCES
                            
        
        
                
            Acheter
        
    
3 chambres Jardin
Située au calme de l'ensemble immobilier Les pavillons du château , en bordure de zone inconstructible de la commune de Maugny, à 10 mn de THONON,
Villa mitoyenne d'un seul côté d'environ 70 m², avec un jardin de 140 m², deux stationnements extérieurs et un grand cellier extérieur.
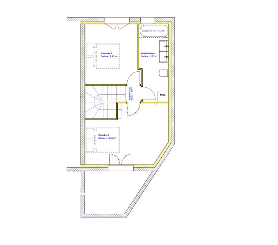
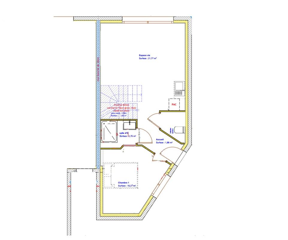
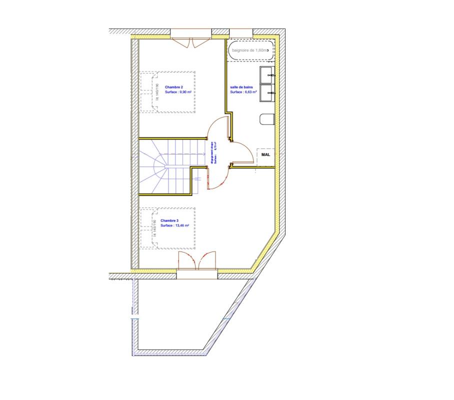
Elle est composée d'un hall d'entrée, une pièce de vie avec espace cuisine ouverte, le tout donnant sur le jardin exposé SUD OUEST avec une magnifique vue dégagée sur les montagnes. Une première chambre, une salle de douche et un WC séparé.
A l'étage, deux nouvelles chambres dont une avec grande terrasse et une salle de bain avec WC.
Dommage ouvrage , norme RT 2020.
Commodités d'Allinges à 3 mn en voiture.
Villa 5
DPE : Non concerné par le DPE
Prix de vente 340.000  euros Frais d'agence inclus, honoraires à la charge du vendeur.
Pour visiter et vous accompagner dans votre projet, contactez Ingrid VEDEL, au 0644120744 ou, par courriel à i.vedel@proprietes-privees.com.
Selon l'article L.561.5 du Code Monétaire et Financier, pour l'organisation de la visite, la présentation d'une pièce d'identité vous sera demandée.
Cette présente annonce a été rédigée sous la responsabilité éditoriale de Ingrid VEDEL agissant sous le statut d'agent commercial immatriculé au RSAC 985032598 auprès de SAS PROPRIETES PRIVEES, au capital de 44 920 euros, ZAC LE CHÊNE FERRÉ - 44 ALLÉE DES CINQ CONTINENTS 44120 VERTOU; SIRET 487 624 777 00040, RCS Nantes. Carte Professionnelle Transactions sur immeubles et fonds de commerce (T) et Gestion immobilière (G) n°CPI 4401 2016 000 010 388 délivrée par la CCI Nantes - Saint Nazaire. Compte séquestre n°30932508467 BPA SAINT-SEBASTIEN-SUR-LOIRE (44230). Garantie GALIAN-SMABTP - 89 rue de la Boétie, 75008 Paris - n°28137 J pour 2 000 000 euros pour T et 120 000 euros pour G. Assurance responsabilité civile professionnelle par GALIAN-SMABTP n° de police 28137.J
Mandat réf : 413011- Le professionnel garantit et sécurise votre projet immobilier.
Les informations sur les risques auxquels ce bien est exposé sont disponibles sur le site Géorisques : www. georisques. gouv. fr
 Ingrid VEDEL (EI) Agent Commercial - Numéro RSAC : 985032598 - .
                            DPE non soumis
                            mention indiquée sous la responsabilité de l’agence immobilière