Fnaim.fr
Menu

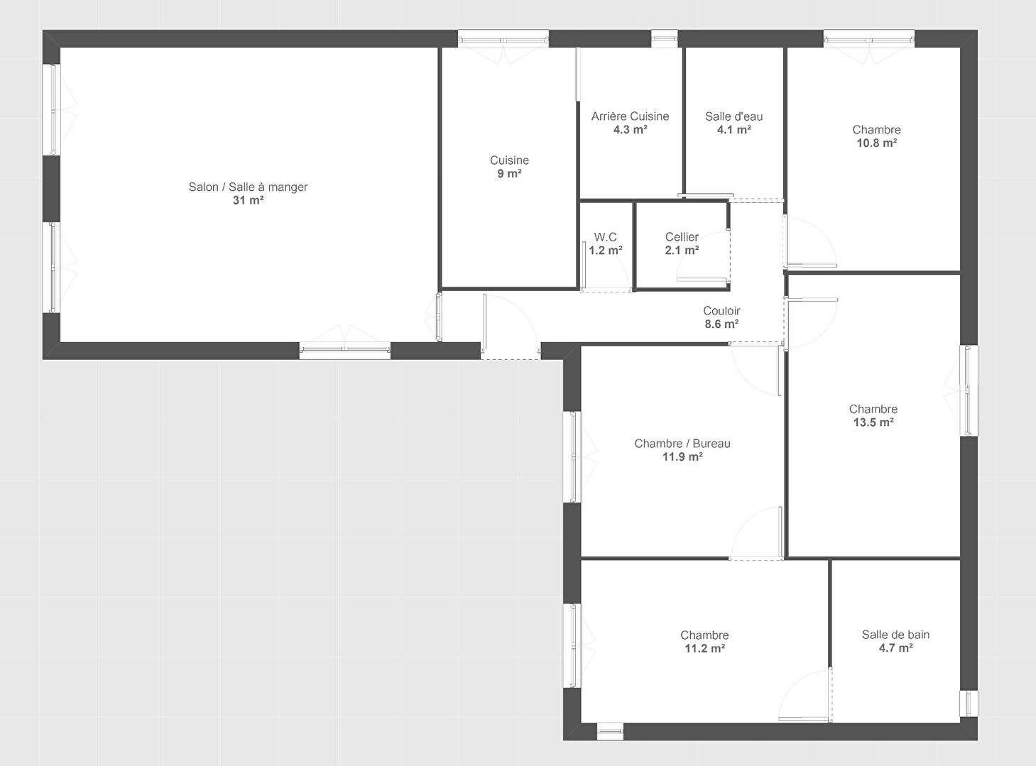
Achat Maison 5 pièces 114m²

439 000 Honoraires charge vendeur

4 chambres Jardin

Description du bien


DOMPIERRE SUR-MER - CHAGNOLET
Plain-pied rénové - 114 m² - Non mitoyen - 3 chambres + bureau - DPE C

À seulement 5 minutes de l'entrée de La Rochelle, découvrez cette maison de plain-pied entièrement rénovée, située dans un secteur résidentiel très calme, proche des écoles, des commerces et des transports.
Un emplacement idéal pour une vie familiale confortable.

Très agréable Maison de plain-pied de 114 m2 sur parcelle de 776 m2 comprenant entrée, salon/ salle a manger avec cheminée, cuisine équipée avec cellier, 3 chambres dont une suite parentale avec salle de bains/WC et un vaste Bureau attenant a la suite, WC, Salle d'eau indépendante , dressing, sur parcelle arborée.

Maison non mitoyenne.
Travaux récents : Toiture , isolation - cuisine équipée et aménagée - électricité - fenêtres et portes fenêtres - Cheminée... DPE C
annexe : Atelier / dépendance
Puits
Possibilité d'agrandissement

Point technique :
- Installation électrique récente et totalement conforme.
- Chaudière gaz condensation Viessmann (2016) performante.
- Insert bois récent (2018) en complément du chauffage.
- Maison saine, aucun indice de termites relevé.
- Bonne isolation toiture (30 cm) et double vitrage généralisé.



Etat des risques et pollutions

Les informations sur les risques auxquels ce bien est exposé sont disponibles sur le site Géorisques : www.georisques.gouv.fr.

Caractéristiques du bien

Composition du bien

  • Type d'habitation : Maison
  • Nombre de chambres : 4
  • Cuisine : Type de cuisine Non communique

Aménagement du bien

  • Cave : Non
  • Garage / Parking : Non
    • Surface habitable : 114 m²

    Localisation du bien

    Ce bien n'est pas géolocalisé, pour connaitre sa géolocalisation, merci de contacter l'agence.

    Consommation énergétique

    • C (163 kWh/m² an)
      C (25 kgCO2/m².an)
      Plus d'info
      163
      25
      25
    • DPE réalisé après le 1er juillet 2021.
    • Entre 1533 € TTC / an et 2075 € TTC / an
      Non communiqué

    Nos professionnels vous accompagnent

    Contactez notre agence !

    73 rue de l'Aunis 17220 STE SOULLE

    Appeler l’agence Tél : 0516405020

    * Champs obligatoires

    Nous vous informons de l’existence de la liste d’opposition au démarchage téléphonique « BLOCTEL » sur laquelle vous pouvez vous inscrire (https://www.bloctel.gouv.fr).

    En complétant le formulaire «CONTACTEZ NOTRE AGENCE », je reconnais expressément que je consens au traitement de mes données personnelles et que je dispose du droit de retirer mon consentement à tout moment en m'adressant à support@fnaim.fr.
    En savoir plus sur la gestion de vos données et droits : consulter nos mentions légales, « article 5/ Données à caractère personnel ».

    En envoyant ce message, vous acceptez les conditions d'utilisation du site. Plus d'infos