Fnaim.fr
Menu

Acheter

Réf. UF-A39035JAC92

Achat Appartement 4 pièces 93m² ISSY LES MOULINEAUX 92130

844 000 Honoraires charge vendeur

3 chambres

Description du bien

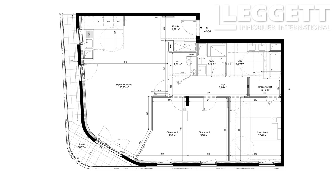
A39035JAC92 - La résidence Orion s'élève dans le quartier Léon Blum à Issy les Moulineaux, à seulement 6 km de Paris. Composée de 110 logements sur 16 étages, elle offre des vues exceptionnelles sur la Tour Eiffel depuis certains appartements. Du studio au 5 pièces duplex, chaque logement dispose d'un extérieur (balcon, loggia ou terrasse). Un potager partagé et une terrasse panoramique sont aménagés sur le toit. Transports à proximité immédiate : RER C, future ligne 15 (Grand Paris Express), tram T2, métro 12, bus. Orion répond aux normes RE2020 seuil 2022, et est certifiée NF Habitat HQE. Livraison prévue 2e trimestre 2028. Idéal pour habiter ou investir dans un quartier recherché.

Les informations sur les risques auxquels ce bien est exposé sont disponibles sur le site Géorisques : https://www.georisques.gouv.fr

Etat des risques et pollutions

Les informations sur les risques auxquels ce bien est exposé sont disponibles sur le site Géorisques : www.georisques.gouv.fr.

Caractéristiques du bien

Composition du bien

  • Type d'habitation : Appartement
  • Cuisine : Simple
  • Nombre de pièce(s) : 4
  • Nombre de chambre(s) : 3
  • Salles de bain : 2

Aménagement du bien

Extérieur

  • Terrasse : Non
  • Balcon : Non

Partie Commune

  • Ascenseur : Non
  • Surface habitable : 93 m²

Localisation du bien

ISSY LES MOULINEAUX (92130) , HAUTS-DE-SEINE (92) - ILE-DE-FRANCE

Ce bien n'est pas géolocalisé, pour connaitre sa géolocalisation, merci de contacter l'agence.

Consommation énergétique

DPE non soumis
mention indiquée sous la responsabilité de l’agence immobilière

Nos professionnels vous accompagnent

Contactez notre agence !

42 RUE DE RIBERAC 24340 LA ROCHEBEAUCOURT ET ARGENTINE

Appeler l’agence Tél : 05 53 56 62 54

* Champs obligatoires

Nous vous informons de l’existence de la liste d’opposition au démarchage téléphonique « BLOCTEL » sur laquelle vous pouvez vous inscrire (https://www.bloctel.gouv.fr).

En complétant le formulaire «CONTACTEZ NOTRE AGENCE », je reconnais expressément que je consens au traitement de mes données personnelles et que je dispose du droit de retirer mon consentement à tout moment en m'adressant à support@fnaim.fr.
En savoir plus sur la gestion de vos données et droits : consulter nos mentions légales, « article 5/ Données à caractère personnel ».

En envoyant ce message, vous acceptez les conditions d'utilisation du site. Plus d'infos