Fnaim.fr
Menu

Réf. PO2014D

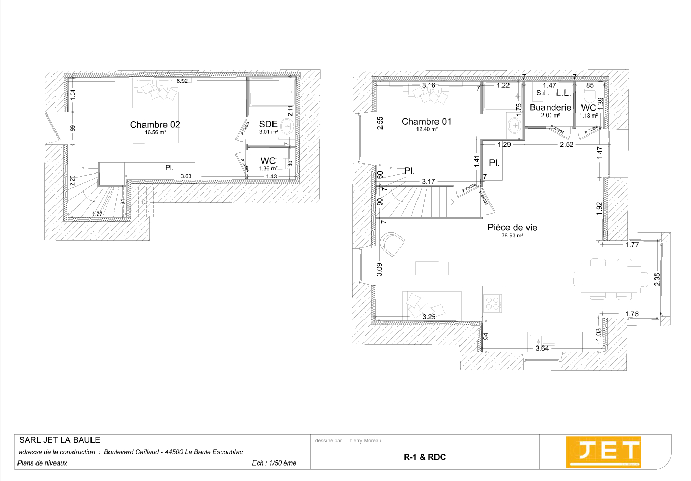
Achat Maison 4 pièces 80m²

680 000 Honoraires charge vendeur

2 chambres Jardin Parking / Garage

Description du bien


Proximité immédiate des commerces et de la mer pour cette charmante maison entièrement rénovée en 2025.
Elle comprend une vie de plain pied avec une magnifique pièce de vie de 39 m2 avec une triple exposition EST, SUD et OUEST, chambre avec salle d'eau privative, coin buanderie, WC indépendant.
En rez-de-jardin une suite parentale de 21 m2 avec salle d'eau et WC donnant sur cour anglaise.
Possibilité de créer une troisième chambre.
Prestations haut de gamme, jardin clos et paysagé, stationnement sur la parcelle.

Les informations sur les risques auxquels ce bien est exposé sont disponibles sur le site Géorisques : www.georisques.gouv.fr

Etat des risques et pollutions

Les informations sur les risques auxquels ce bien est exposé sont disponibles sur le site Géorisques : www.georisques.gouv.fr.

Caractéristiques du bien

Composition du bien

  • Type d'habitation : Maison
  • Nombre de chambres : 2
  • Cuisine : Type de cuisine Non communique

Aménagement du bien

  • Cave : Non
  • Garage / Parking : Oui
    • Surface habitable : 80 m²
    • Parking : Oui

    Localisation du bien

    Ce bien n'est pas géolocalisé, pour connaitre sa géolocalisation, merci de contacter l'agence.

    Consommation énergétique

    • A (57 kWh/m² an)
      A (1 kgCO2/m².an)
      Plus d'info
      57
      1
      1
    • DPE réalisé après le 1er juillet 2021.
    • Entre 440 € TTC / an et 630 € TTC / an
      Non communiqué

    Nos professionnels vous accompagnent

    Contactez notre agence !

    28 AVENUE DU GENERAL DE GAULLE 44380 PORNICHET

    Appeler l’agence Tél : 0240617726

    * Champs obligatoires

    Nous vous informons de l’existence de la liste d’opposition au démarchage téléphonique « BLOCTEL » sur laquelle vous pouvez vous inscrire (https://www.bloctel.gouv.fr).

    En complétant le formulaire «CONTACTEZ NOTRE AGENCE », je reconnais expressément que je consens au traitement de mes données personnelles et que je dispose du droit de retirer mon consentement à tout moment en m'adressant à support@fnaim.fr.
    En savoir plus sur la gestion de vos données et droits : consulter nos mentions légales, « article 5/ Données à caractère personnel ».

    En envoyant ce message, vous acceptez les conditions d'utilisation du site. Plus d'infos