Fnaim.fr
Menu

Visite virtuelle
Exclusivité
Réf. DOM20850

Achat Appartement 4 pièces 105m² OULLINS 69600

239 000 Honoraires charge vendeur

3 chambres

Description du bien

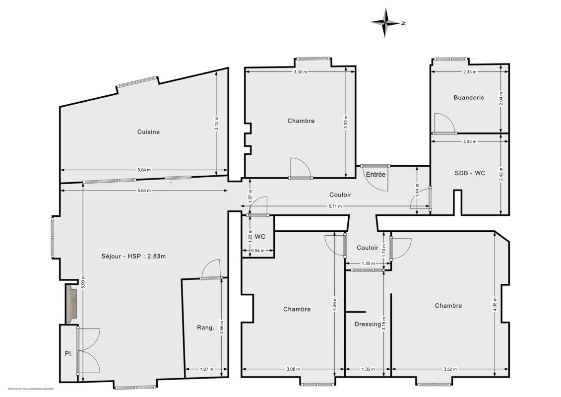
Liberkeys - Crédit Mutuel Arkéa vous propose, en exclusivité, cet appartement familial de 105,94m² au sol (82,58 m² Carrez), idéalement situé au coeur de Pierre-Bénite, rue Henri Barbusse, au 2e et dernier étage d'une petite copropriété ancienne de 4 appartements.

À proximité immédiate du centre de Pierre-Bénite et de l'hôpital Lyon Sud, des lignes de bus (C7, 15, 18) et à quelques minutes à pied ou en bus de la nouvelle station de métro Hôpitaux Sud (Saint-Genis-Laval), cet emplacement facilite vos déplacements vers Lyon et ses environs tout en offrant un cadre de vie calme et pratique.

L'agencement séduira les familles à la recherche d'espace et de fonctionnalité. Traversant et baigné de lumière, l'appartement offre un grand séjour lumineux avec un grand espace de rangement attenant, une cuisine indépendante équipée (ouvrable sur le salon), trois chambres confortables dont une avec dressing aménagé, une buanderie, une salle de bains avec baignoire et WC et des toilettes séparées. En parfait état, il allie cachet de l'ancien et confort moderne.

Vous apprécierez la luminosité en triple exposition Est-Ouest-Sud, et le cadre de vie résidentiel à deux pas de toutes les commodités. Marchés, commerces, restaurants, infrastructures sportives, établissements scolaires réputés et transports sont accessibles à pied, rendant le secteur particulièrement prisé par les familles.

L'appartement dispose de double vitrage récent, du chauffage individuel au gaz, et d'un bon classement énergétique pour un bâtiment ancien. La fibre internet est installée dans l'appartement.

Les charges mensuelles sont de 140 €, comprenant l'eau froide, l'assurance et les honoraires du syndic de la copropriété. La taxe foncière s'élève à 615 € par an.
Montant estimé des dépenses annuelles d'énergie pour un usage standard : entre 1050 € et 1470 € par an. Prix moyens des énergies indexés sur l'année 2021 (abonnements compris).

Ce bien représente une belle opportunité pour une famille souhaitant s'installer durablement dans un secteur bien desservi et vivant, ou pour un investisseur en quête d'un actif locatif attractif à proximité immédiate de Lyon.

Ce bien vous plaît ?
Visitez-le virtuellement en 3D sur le site de Liberkeys ou contactez directement votre conseiller.
Augustin LAPLANE, agent commercial immatriculé au RSAC de Lyon sous le numéro 803 263 433.
Référence annonce : DOM20850.
Date de réalisation du diagnostic : 04/02/2022.
Les honoraires sont à la charge du vendeur.
Les informations sur les risques auxquels ce bien est exposé sont disponibles sur le site Géorisques : https://www.georisques.gouv.fr.

Etat des risques et pollutions

Les informations sur les risques auxquels ce bien est exposé sont disponibles sur le site Géorisques : www.georisques.gouv.fr.

Caractéristiques du bien

Composition du bien

  • Type d'habitation : Appartement
  • Cuisine : 19
  • Nombre de pièce(s) : 4
  • Nombre de chambre(s) : 3
  • Salles de bain : 1

Aménagement du bien

Extérieur

  • Terrasse : Non
  • Balcon : Non

Partie Commune

  • Ascenseur : Non
  • Surface habitable : 105 m²

Informations sur la copropriété

  • Bien soumis au statut de la copropriété
  • Nombre de lots : 4
  • Quote part charges courantes : 1680 €/an
  • Procédure en cours : Non

Localisation du bien

OULLINS (69600) , RHONE (69) - AUVERGNE-RHÔNE-ALPES

Consommation énergétique

  • D (182 kWh/m² an)
    D (39 kgCO2/m².an)
    Plus d'info
    182
    39
    39
  • DPE réalisé après le 1er juillet 2021.
  • Entre 1050 € TTC / an et 1470 € TTC / an
    Non communiqué

Nos professionnels vous accompagnent

Contactez notre agence !

20 RUE DE MONTHOLON 75009 PARIS 09

Appeler l’agence Tél : 06 75 15 30 88

* Champs obligatoires

Nous vous informons de l’existence de la liste d’opposition au démarchage téléphonique « BLOCTEL » sur laquelle vous pouvez vous inscrire (https://www.bloctel.gouv.fr).

En complétant le formulaire «CONTACTEZ NOTRE AGENCE », je reconnais expressément que je consens au traitement de mes données personnelles et que je dispose du droit de retirer mon consentement à tout moment en m'adressant à support@fnaim.fr.
En savoir plus sur la gestion de vos données et droits : consulter nos mentions légales, « article 5/ Données à caractère personnel ».

En envoyant ce message, vous acceptez les conditions d'utilisation du site. Plus d'infos