Fnaim.fr
Menu

Réf. 6384-MUTERLOGER69570

Achat Local commercial 78m² MARSEILLE 2ème

178 000 Honoraires charge vendeur

Description du bien

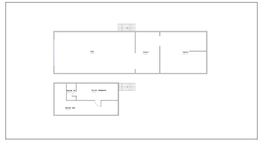
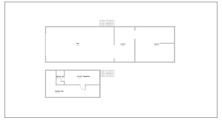
SECTEUR VIEUX PORT/MAIRIE! Spécial INVESTISSEURS. Découvrez en exclusivité ce local commercial de 78 m² (dont 22 m² de réserve en sous sol), avec vitrine et petite terrasse sur une des rues les plus touristiques du quartier. Bail en cours jusqu'en 2028. Locataire en place depuis 2023, proposant une restauration rapide de qualité sur place et à emporter. Etablissement de bonne réputation, fréquenté par une clientèle d'habitués ainsi que de très nombreux touristes. Au RDC, salle côté rue, sanitaires et cuisine. Au sous sol, grand espace de stockage. Climatisation réversible. Déco soignée. Bénéficiant d'un emplacement de 1er ordre, le local a fait l'objet d'une rénovation complète en 2017. Prix de vente 178 000? (Honoraires agence inclus).Infos et visites au 06 03 54 66 33. .

Honoraires à la charge du vendeur. Dans une copropriété de 5 lots. Quote-part moyenne du budget prévisionnel 1 067 ?/an. Aucune procédure n'est en cours. DPE vierge. Les informations sur les risques auxquels ce bien est exposé sont disponibles sur le site Géorisques : georisques.gouv.fr.

Votre conseiller Mobilité Logement : Caroline DUJARDIN
Agent commercial (Entreprise individuelle)

Etat des risques et pollutions

Les informations sur les risques auxquels ce bien est exposé sont disponibles sur le site Géorisques : www.georisques.gouv.fr.

Caractéristiques du bien

Composition du bien

  • Surface totale : 78 m²

Informations sur la copropriété

  • Bien soumis au statut de la copropriété
  • Nombre de lots : 5
  • Quote part charges courantes : 1067 €/an
  • Procédure en cours : Non

Consommation énergétique

DPE vierge

Nos professionnels vous accompagnent

Contactez notre agence !

8 CHEMIN DU JUBIN 69570 DARDILLY

Appeler l’agence Tél : 0603546633

* Champs obligatoires

Nous vous informons de l’existence de la liste d’opposition au démarchage téléphonique « BLOCTEL » sur laquelle vous pouvez vous inscrire (https://www.bloctel.gouv.fr).

En complétant le formulaire «CONTACTEZ NOTRE AGENCE », je reconnais expressément que je consens au traitement de mes données personnelles et que je dispose du droit de retirer mon consentement à tout moment en m'adressant à support@fnaim.fr.
En savoir plus sur la gestion de vos données et droits : consulter nos mentions légales, « article 5/ Données à caractère personnel ».

En envoyant ce message, vous acceptez les conditions d'utilisation du site. Plus d'infos