Fnaim.fr
Menu

Acheter

Réf. VM47844-COFIMIMMOBILIER

Achat Maison 6 pièces 199m² BRUGES CAPBIS MIFAGET 64800

424 000 Honoraires charge vendeur

4 chambres Jardin Parking / Garage

Description du bien

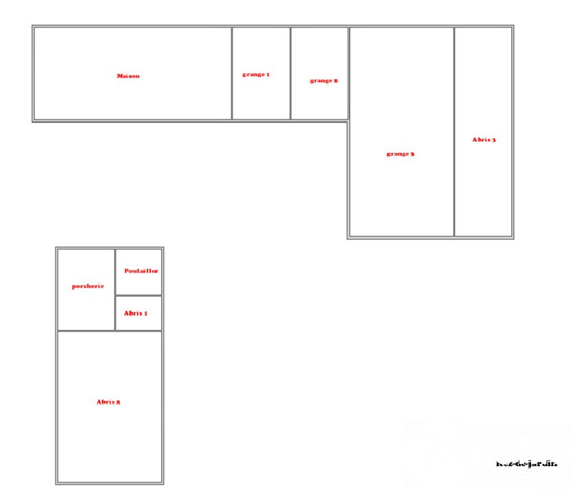
Ferme avec maison de Maître - 4 chambres - 200m² - terrain clos

Authenticité et confort d'une ferme rénovée avec goût.

Cette magnifique propriété, construite au 19ème siècle et rénovée en 2015, offre une surface habitable répartie sur deux niveaux ; idéale pour une grande famille et pour recevoir des amis. D'autres projets sont réalisables.

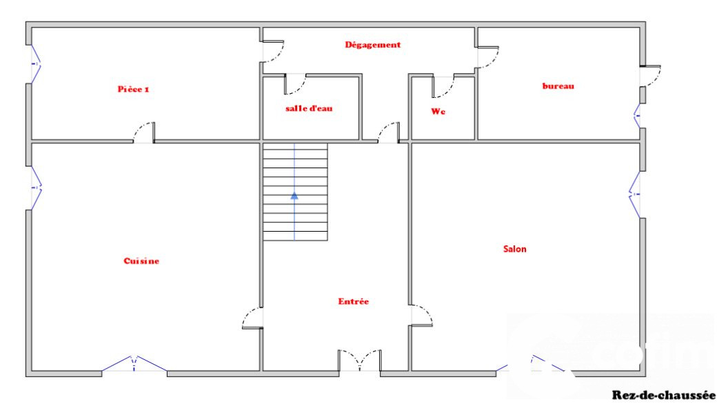
À l'entrée, vous serez immédiatement séduit par le vaste séjour et une cuisine ; lieux de vie conviviaux.

La maison compte quatre chambres spacieuses, deux salles d'eau, un bureau et des espaces de rangements au premier niveau
Possibilité d'aménager le grenier sur environ 80m² au deuxième niveau.

L'extérieur permet le jardinage, d'accueillir des animaux et pour les enfants de jouer en plein air sur un terrain clos et arboré.

La propriété est située à proximité de toutes les commodités nécessaires pour une vie pratique et agréable.
Continuons ensemble la visite en exclusivité !
Avec COFIM, vous êtes déjà chez vous !

Honoraires charge vendeur

Agent commercial COFIM - Yannick GUILLON (EI) - Tèl. : 06 28 58 56 06 - RSAC PAU 794804518
Les informations sur les risques auxquels ce bien est exposé sont disponibles sur le site Géorisques : www.georisques.gouv.fr

Honoraires à la charge du vendeur. Classe énergie D, Classe climat B Montant moyen estimé des dépenses annuelles d'énergie pour un usage standard, établi à partir des prix de l'énergie de l'année 2021 : entre 1654.00 et 2239.00 ?. Les informations sur les risques auxquels ce bien est exposé sont disponibles sur le site Géorisques : georisques.gouv.fr.

Votre conseiller COFIM PAU EST : Yannick GUILLON
Agent commercial (Entreprise individuelle)
RSAC 794 804 518 .
Chez Cofim, vous êtes déjà chez Vous !

Etat des risques et pollutions

Les informations sur les risques auxquels ce bien est exposé sont disponibles sur le site Géorisques : www.georisques.gouv.fr.

Caractéristiques du bien

Composition du bien

  • Type d'habitation : Maison
  • Nombre de chambres : 4
  • Cuisine : 337

Aménagement du bien

  • Cave : Non
  • Garage / Parking : Oui
    • Surface habitable : 199 m²
    • Parking : Oui

    Localisation du bien

    BRUGES CAPBIS MIFAGET (64800) , PYRENEES-ATLANTIQUES (64) - NOUVELLE-AQUITAINE

    Ce bien n'est pas géolocalisé, pour connaitre sa géolocalisation, merci de contacter l'agence.

    Consommation énergétique

    • D (242 kWh/m² an)
      B (7 kgCO2/m².an)
      Plus d'info
      242
      7
      7
    • DPE réalisé après le 1er juillet 2021.
    • Entre 1654 € TTC / an et 2239 € TTC / an
      01/01/2021

    Nos professionnels vous accompagnent

    Contactez notre agence !

    14 avenue du Général Leclerc 64000 PAU

    Appeler l’agence Tél : 0628585606

    * Champs obligatoires

    Nous vous informons de l’existence de la liste d’opposition au démarchage téléphonique « BLOCTEL » sur laquelle vous pouvez vous inscrire (https://www.bloctel.gouv.fr).

    En complétant le formulaire «CONTACTEZ NOTRE AGENCE », je reconnais expressément que je consens au traitement de mes données personnelles et que je dispose du droit de retirer mon consentement à tout moment en m'adressant à support@fnaim.fr.
    En savoir plus sur la gestion de vos données et droits : consulter nos mentions légales, « article 5/ Données à caractère personnel ».

    En envoyant ce message, vous acceptez les conditions d'utilisation du site. Plus d'infos