Fnaim.fr
Menu

Visite virtuelle
Exclusivité
Réf. DOM19787

Achat Appartement 3 pièces 71m² SARTROUVILLE 78500

175 000 Honoraires charge vendeur

2 chambres Ascenseur Parking / Garage

Description du bien

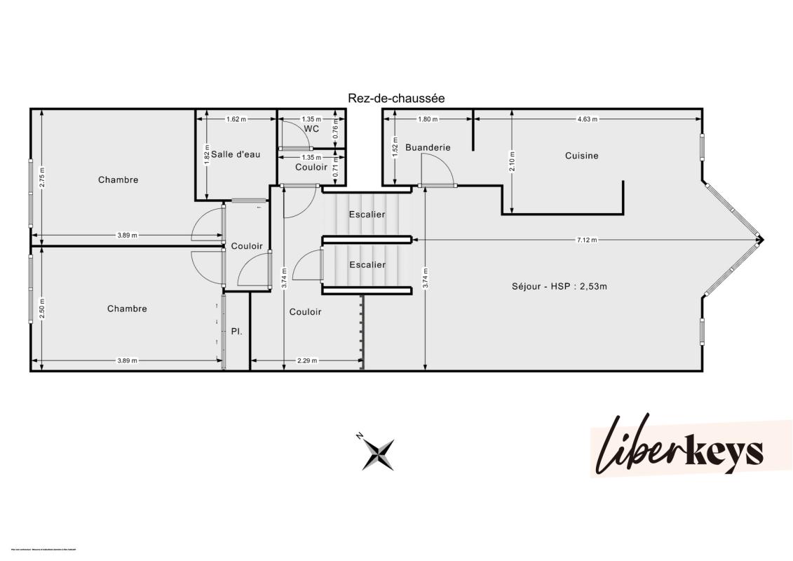
Liberkeys vous propose cet appartement de 71m², situé au 2ème étage sur 6 d'une résidence verdoyante et sécurisée avec ascenseur.

***En exclusivité chez Liberkeys***

Sur le bien :
Appartement de 3 pièces traversant et lumineux.
Le bien est composé d'une entrée avec placard, d'un séjour de plus de 20m², orienté SUD- EST, d'une cuisine séparée non équipée avec une buanderie, d'un couloir desservant un coin bureau, un WC séparé, une salle de bain avec douche à l'italienne et 2 chambres.
Cet appartement se démarque par son léger coté atypique avec niveau.
Fibré, lumineux, nombreux rangements.
Le bien est complété par une cave et un parking en sous sol.

Les plus :
- lumineux et calme
- double vitrage
- résidence verdoyante et sécurisée
- bon DPE
- proche toutes commodités

Charges : 260€ par mois comprenant le chauffage, l'eau chaude et l'entretien des parties communes de la résidence.
Taxe foncière : 1885€ par an Chauffage au gaz collectif
Double vitrage.

Sur l'immeuble : Construit dans les années 1970. Plusieurs bâtiments avec parc.
Résidence sécurisée avec de nettes améliorations depuis sa construction.
Quartier en pleine transformation. Les espaces communs comprennent deux locaux sécurisés pour les vélos.

Sur la localisation :
A 2 pas des écoles et tous commerces
5 min à pied du centre commercial Carrefour Sartrouville
A 10 min de la Foret de Saint-Germain-en Laye et du parc de Maisons-Laffitte
10 min en voiture de la gare RER A de Sartrouville et 20 min en bus, desservant la gare de Paris Saint-Lazare en 25 min seulement 10 min en voiture du Tramway T2 à Bezons, desservant la gare de la Grande Arche de la Défense en 12 min

Accès à l'A86 et l'A15 en 5 minutes

***** Ce bien vous plaît ? Visitez-le virtuellement en 3D sur le site Liberkeys puis appelez l'agent Liberkeys pour échanger sur ce bien. Liberkeys, votre agence immobilière en mieux. Humaine, transparente et réactive pour les vendeurs et acheteurs.

Etat des risques et pollutions

Les informations sur les risques auxquels ce bien est exposé sont disponibles sur le site Géorisques : www.georisques.gouv.fr.

Caractéristiques du bien

Composition du bien

  • Type d'habitation : Appartement
  • Cuisine : Simple
  • Nombre de pièce(s) : 3
  • Nombre de chambre(s) : 2
  • Salles de bain : 1

Aménagement du bien

Extérieur

  • Terrasse : Non
  • Balcon : Non

Partie Commune

  • Ascenseur : Oui
  • Surface habitable : 71 m²
  • Parking : Oui

Localisation du bien

SARTROUVILLE (78500) , YVELINES (78) - ILE-DE-FRANCE

Consommation énergétique

  • C (125 kWh/m² an)
    C (25 kgCO2/m².an)
    Plus d'info
    125
    25
    25
  • DPE réalisé après le 1er juillet 2021.
  • Entre 470 € TTC / an et 700 € TTC / an
    Non communiqué

Nos professionnels vous accompagnent

Contactez notre agence !

20 RUE DE MONTHOLON 75009 PARIS 09

Appeler l’agence Tél : 06 71 01 63 50

* Champs obligatoires

Nous vous informons de l’existence de la liste d’opposition au démarchage téléphonique « BLOCTEL » sur laquelle vous pouvez vous inscrire (https://www.bloctel.gouv.fr).

En complétant le formulaire «CONTACTEZ NOTRE AGENCE », je reconnais expressément que je consens au traitement de mes données personnelles et que je dispose du droit de retirer mon consentement à tout moment en m'adressant à support@fnaim.fr.
En savoir plus sur la gestion de vos données et droits : consulter nos mentions légales, « article 5/ Données à caractère personnel ».

En envoyant ce message, vous acceptez les conditions d'utilisation du site. Plus d'infos