Fnaim.fr
Menu

Exclusivité
Réf. A3

Achat Appartement 3 pièces 60m² ST JEOIRE 74490

151 750 Honoraires charge vendeur

Parking / Garage

Description du bien

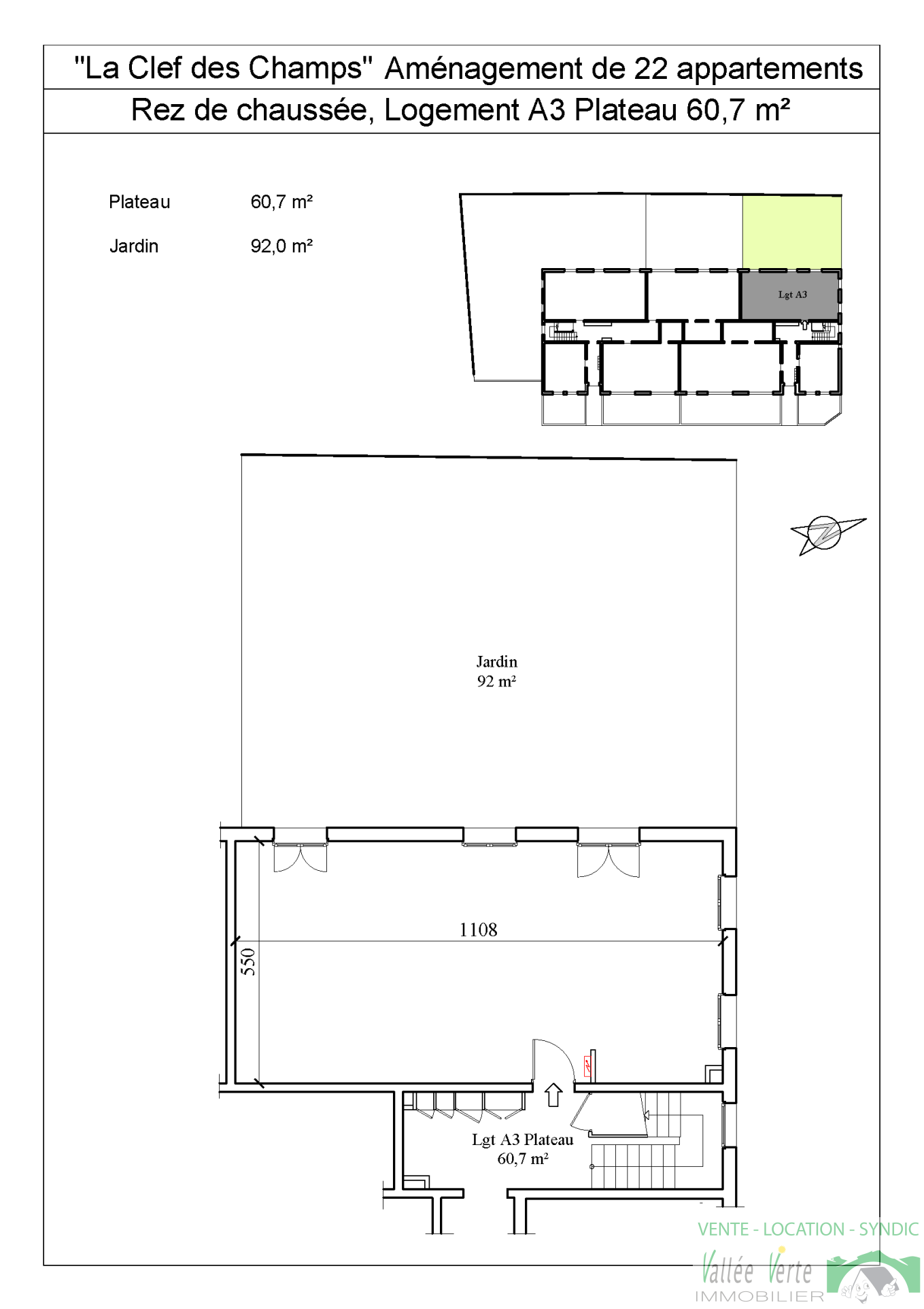
Dans un ensemble immobilier de 22 logements/plateaux sur les hauteurs de Saint-Jeoire, Plateau type T3 au rez de chaussée d'une surface de 60.70 m2 + Jardin de 92 m2 et une place de parking.
Rentabilité locative de 4.89 % soit 850 EUR / mois hors charges.
Informations Risque et Pollution : www.georisques.gouv.fr

Etat des risques et pollutions

Les informations sur les risques auxquels ce bien est exposé sont disponibles sur le site Géorisques : www.georisques.gouv.fr.

Caractéristiques du bien

Composition du bien

  • Type d'habitation : Appartement
  • Cuisine : Type de cuisine Non communique
  • Nombre de pièce(s) : 3

Aménagement du bien

Extérieur

  • Terrasse : Non
  • Balcon : Non

Partie Commune

  • Ascenseur : Non
  • Surface habitable : 60 m²
  • Parking : Oui

Localisation du bien

ST JEOIRE (74490) , HAUTE-SAVOIE (74) - AUVERGNE-RHÔNE-ALPES

Ce bien n'est pas géolocalisé, pour connaitre sa géolocalisation, merci de contacter l'agence.

Consommation énergétique

DPE non soumis
mention indiquée sous la responsabilité de l’agence immobilière

Nos professionnels vous accompagnent

Contactez notre agence !

LE PESSEY 972, route Valla Verda 74420 HABERE LULLIN

Appeler l’agence Tél : 0677401543

* Champs obligatoires

Nous vous informons de l’existence de la liste d’opposition au démarchage téléphonique « BLOCTEL » sur laquelle vous pouvez vous inscrire (https://www.bloctel.gouv.fr).

En complétant le formulaire «CONTACTEZ NOTRE AGENCE », je reconnais expressément que je consens au traitement de mes données personnelles et que je dispose du droit de retirer mon consentement à tout moment en m'adressant à support@fnaim.fr.
En savoir plus sur la gestion de vos données et droits : consulter nos mentions légales, « article 5/ Données à caractère personnel ».

En envoyant ce message, vous acceptez les conditions d'utilisation du site. Plus d'infos