Fnaim.fr
Menu

Acheter

Exclusivité
Réf. 404982NRIO

Achat Maison 5 pièces 110m² ST ETIENNE 42100

216 000 Honoraires charge vendeur

4 chambres Balcon

Description du bien

En Exclusivité
Maison familiale à vendre (Balcon-Garage-Terrain)

Saint Étienne, secteur Tardy-Colline des Pères

Découvrez cette charmante maison située dans le quartier paisible de Tardy-Colline des Pères, à Saint Étienne.

Ce secteur est apprécié pour son ambiance tranquille, ses espaces verts et sa proximité avec les commodités locales telles que des écoles, des commerces de proximité et des transports en commun. Profitez d'un cadre de vie agréable tout en étant à quelques minutes du centre-ville.

Caractéristiques de la maison :

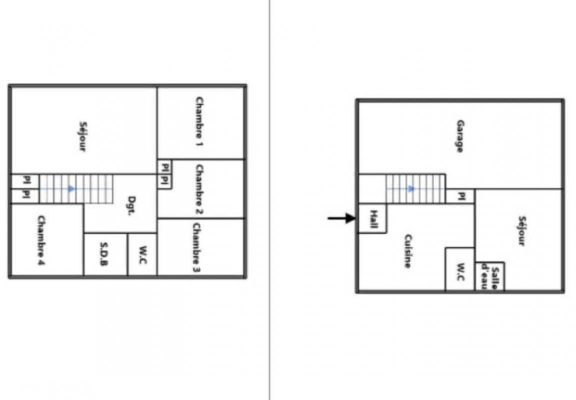
Cette spacieuse maison se compose de plusieurs niveaux, offrant un grand potentiel pour toute la famille :

- Au Rez-de-chaussée :
- Un Grand garage pratique et accessible.
- Un séjour lumineux, idéal pour des moments conviviaux en famille.
- Une cuisine fonctionnelle, parfaite pour préparer de délicieux repas avec salle a manger.
- Une salle de bain équipée et un WC séparé pour plus de commodité.

- A l'Étage :
- Quatre chambres spacieuses, pouvant accueillir toute la famille ou servir de bureaux.
- Un second WC pour le confort des occupants.
- Un séjour supplémentaire, offrant un espace intime pour se détendre ou recevoir.
+ Comble

La maison s'étend sur un terrain de 610 m², offrant de nombreuses possibilités d'aménagement extérieurs, que ce soit pour créer un jardin, un espace de jeu pour les enfants un coin barbecue est déjà présent ainsi qu'un cabanon en bois.

Ne manquez pas cette opportunité rare d'acquérir une maison fonctionnelle et bien située dans un secteur prisé de Saint Étienne. Contactez-nous pour une visite dès aujourd'hui !

Prix : 216 000 euros honoraires charge vendeur

DPE :D
GES : D

Montant estimé des dépenses annuelles d'énergie pour un usage standard entre 1090 et 1520 euros indexées aux années 2021.

Taxe Foncière 1468 euros
Chauffage individuel Gaz.

Pour visiter et vous accompagner dans votre projet, contactez Nathan RIOS, au 0769140180 ou, par courriel à n.rios@proprietes-privees.com.

Selon l'article L.561.5 du Code Monétaire et Financier, pour l'organisation de la visite, la présentation d'une pièce d'identité vous sera demandée.
Cette présente annonce a été rédigée sous la responsabilité éditoriale de Nathan RIOS agissant sous le statut d'agent commercial immatriculé au RSAC SAINT ETIENNE 932226848 auprès de SAS PROPRIETES PRIVEES, au capital de 44 920 euros, ZAC LE CHÊNE FERRÉ - 44 ALLÉE DES CINQ CONTINENTS 44120 VERTOU; SIRET 487 624 777 00040, RCS Nantes. Carte Professionnelle Transactions sur immeubles et fonds de commerce (T) et Gestion immobilière (G) n°CPI 4401 2016 000 010 388 délivrée par la CCI Nantes - Saint Nazaire. Compte séquestre n°30932508467 BPA SAINT-SEBASTIEN-SUR-LOIRE (44230). Garantie GALIAN-SMABTP - 89 rue de la Boétie, 75008 Paris - n°28137 J pour 2 000 000 euros pour T et 120 000 euros pour G. Assurance responsabilité civile professionnelle par GALIAN-SMABTP n° de police 28137.J

Mandat réf : 404982 - Le professionnel garantit et sécurise votre projet immobilier.

Nathan RIOS (EI) Agent Commercial - Numéro RSAC : SAINT ETIENNE 932226848 - .

Etat des risques et pollutions

Les informations sur les risques auxquels ce bien est exposé sont disponibles sur le site Géorisques : www.georisques.gouv.fr.

Caractéristiques du bien

Composition du bien

  • Type d'habitation : Maison
  • Nombre de chambres : 4
  • Nombre de salles de bain : 1
  • Cuisine : Simple

Aménagement du bien

  • Cave : Non
  • Garage / Parking : Non
    • Surface habitable : 110 m²

    Localisation du bien

    ST ETIENNE (42100) , LOIRE (42) - AUVERGNE-RHÔNE-ALPES

    Consommation énergétique

    • D (144 kWh/m² an)
      D (30 kgCO2/m².an)
      Plus d'info
      144
      30
      30
    • DPE réalisé après le 1er juillet 2021.
    • Entre 1090 € TTC / an et 1520 € TTC / an
      Non communiqué

    Nos professionnels vous accompagnent

    Contactez notre agence !

    44 Allée des Cinq Continents ZAC Le Chêne Ferré 44120 VERTOU

    Appeler l’agence Tél : 07 69 14 01 80

    * Champs obligatoires

    Nous vous informons de l’existence de la liste d’opposition au démarchage téléphonique « BLOCTEL » sur laquelle vous pouvez vous inscrire (https://www.bloctel.gouv.fr).

    En complétant le formulaire «CONTACTEZ NOTRE AGENCE », je reconnais expressément que je consens au traitement de mes données personnelles et que je dispose du droit de retirer mon consentement à tout moment en m'adressant à support@fnaim.fr.
    En savoir plus sur la gestion de vos données et droits : consulter nos mentions légales, « article 5/ Données à caractère personnel ».

    En envoyant ce message, vous acceptez les conditions d'utilisation du site. Plus d'infos