Fnaim.fr
Menu

Acheter

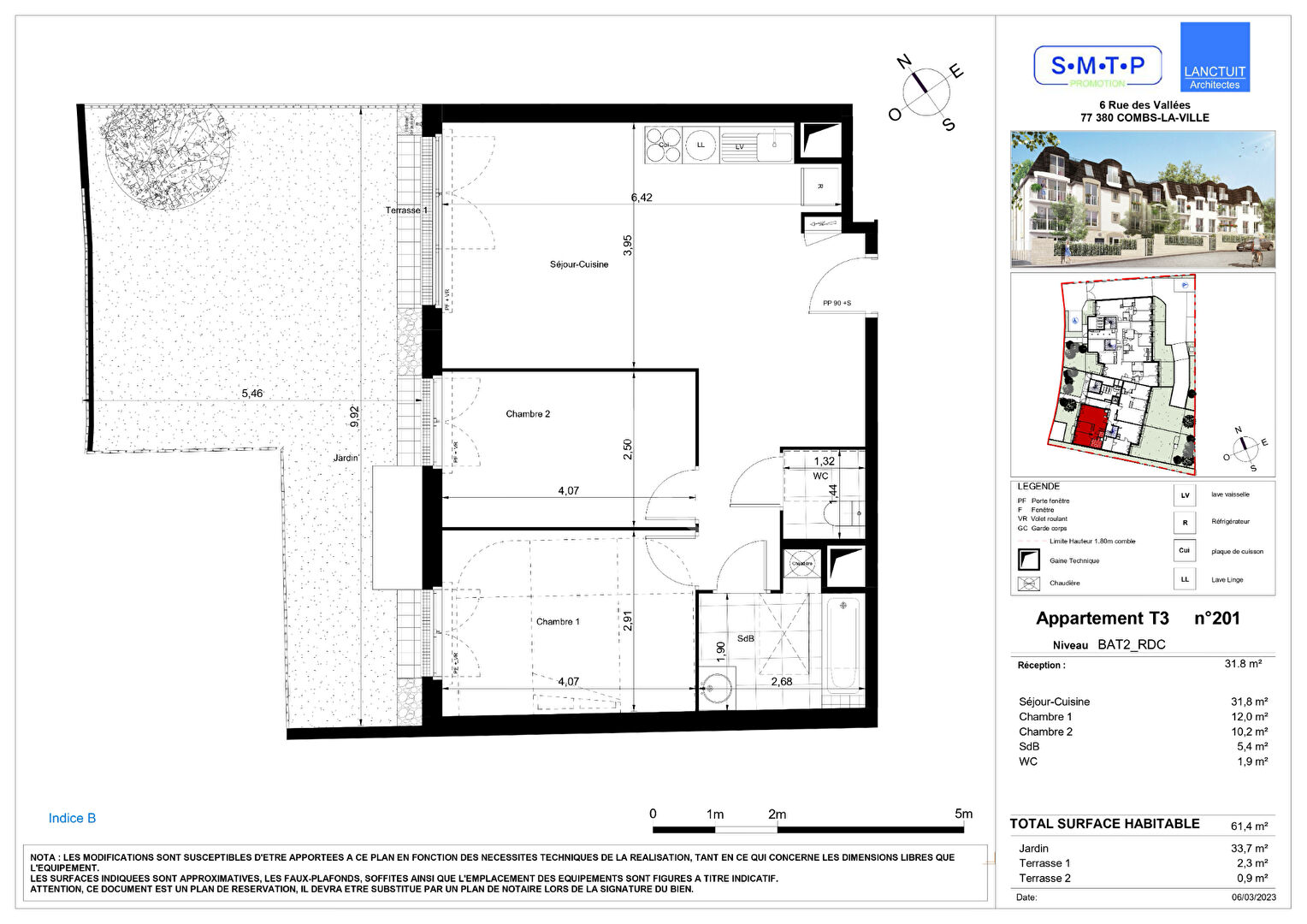
Achat Appartement 3 pièces 61m²

264 000 Honoraires charge vendeur

2 chambres Ascenseur Parking / Garage

Description du bien


Cet appartement se trouve au sein d'une résidence de dernier standing, récente et sécurisée, offrant tout le confort moderne avec ascenseur, visiophone, interphone et digicode.

D'une surface de 61,4 m², il se compose d'une entrée donnant sur un séjour-cuisine, de deux chambres de 10 et12 m², d'une salle de bains et de toilettes séparées. Le chauffage est individuel, alimenté au gaz.

À l'extérieur, vous bénéficierez d'un jardin privatif de 33.7 m², parfait pour vos moments de détente. Les fenêtres en PVC double vitrage, les volets roulants et la fibre optique garantissent confort et modernité.

Ce bien est vendu avec une place de parking en sous-sol.

Vous apprécierez la proximité immédiate des commerces, des écoles et des transports en commun (arrêt de bus à 2 minutes). Cinéma, conservatoire, piscine, tennis, restaurants et marché sont également accessibles à pied.

Les frais d'agence sont à la charge du vendeur. Ce bien fait partie d'une copropriété de 86 lots, sans procédure en cours.

Pour plus d'informations ou organiser une visite, contactez votre agence L'Adresse - Benoteau Immobilier.
Informations sur les risques disponibles sur : www.georisques.gouv.fr

Etat des risques et pollutions

Les informations sur les risques auxquels ce bien est exposé sont disponibles sur le site Géorisques : www.georisques.gouv.fr.

Caractéristiques du bien

Composition du bien

  • Type d'habitation : Appartement
  • Cuisine : Type de cuisine Non communique m²
  • Nombre de pièce(s) : 3
  • Nombre de chambre(s) : 2
  • Salles de bain : 1

Aménagement du bien

Extérieur

  • Terrasse : Non
  • Balcon : Non

Partie Commune

  • Ascenseur : Oui
  • Surface habitable : 61 m²
  • Parking : Oui

Informations sur la copropriété

  • Bien soumis au statut de la copropriété
  • Nombre de lots : 86
  • Procédure en cours : Non

Localisation du bien

Ce bien n'est pas géolocalisé, pour connaitre sa géolocalisation, merci de contacter l'agence.

Consommation énergétique

  • C (86 kWh/m² an)
    C (17 kgCO2/m².an)
    Plus d'info
    86
    17
    17
  • DPE réalisé après le 1er juillet 2021.
  • Entre 480 € TTC / an et 730 € TTC / an
    Non communiqué

Nos professionnels vous accompagnent

Contactez notre agence !

37 AVENUE DE QUINCY 77380 COMBS LA VILLE

Appeler l’agence Tél : 0160607229

* Champs obligatoires

Nous vous informons de l’existence de la liste d’opposition au démarchage téléphonique « BLOCTEL » sur laquelle vous pouvez vous inscrire (https://www.bloctel.gouv.fr).

En complétant le formulaire «CONTACTEZ NOTRE AGENCE », je reconnais expressément que je consens au traitement de mes données personnelles et que je dispose du droit de retirer mon consentement à tout moment en m'adressant à support@fnaim.fr.
En savoir plus sur la gestion de vos données et droits : consulter nos mentions légales, « article 5/ Données à caractère personnel ».

En envoyant ce message, vous acceptez les conditions d'utilisation du site. Plus d'infos