Fnaim.fr
Menu

Acheter

Exclusivité
Réf. 32

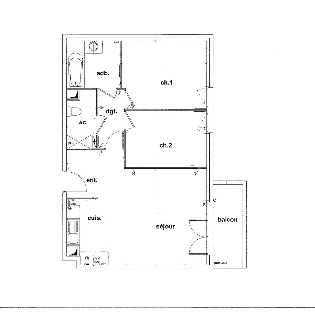
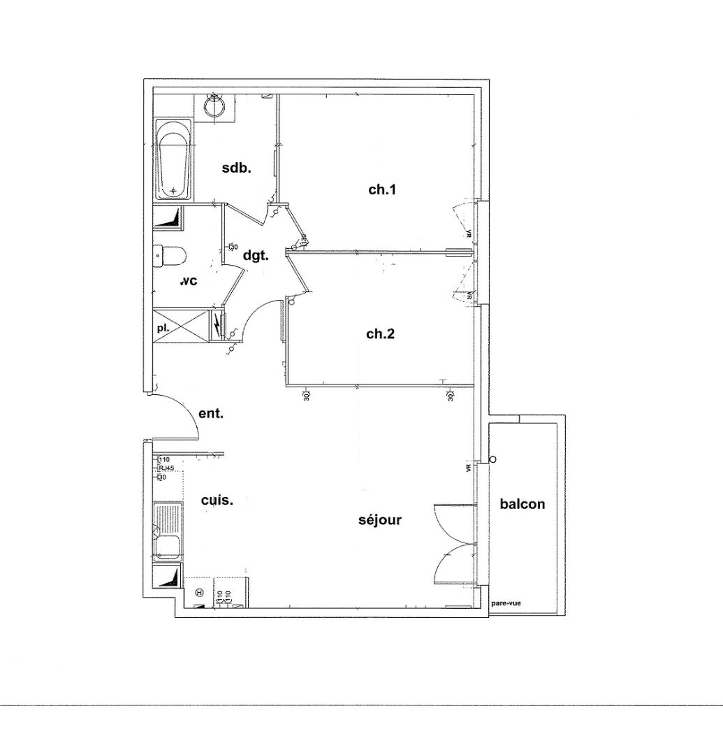
Achat Appartement 3 pièces 61m²

244 500 Honoraires charge acquéreur inclus : 4% TTC (235005 € hors honoraires)

2 chambres Ascenseur Parking / Garage

Description du bien


VERNEUIL- Dans résidence 2014 à 9 minutes à pied du centre-ville, 3 Pièces de 61,75m² avec parking double en sous-sol. Cet appartement lumineux vous offre un balcon généreux pour profiter de l'extérieur, deux belles chambres et un séjour avec coin-cuisine aménagé. L'accès à cette résidence est sécurisé (digicode + interphone). Le chauffage et l'eau sont collectifs avec des compteurs individuels pour les régularisations annuelles.

Etat des risques et pollutions

Les informations sur les risques auxquels ce bien est exposé sont disponibles sur le site Géorisques : www.georisques.gouv.fr.

Caractéristiques du bien

Composition du bien

  • Type d'habitation : Appartement
  • Cuisine : Type de cuisine Non communique
  • Nombre de pièce(s) : 3
  • Nombre de chambre(s) : 2
  • Salles de bain : 1

Aménagement du bien

Extérieur

  • Terrasse : Non
  • Balcon : Non

Partie Commune

  • Ascenseur : Oui
  • Surface habitable : 61 m²
  • Parking : Oui

Informations sur la copropriété

  • Bien soumis au statut de la copropriété
  • Nombre de lots : 177
  • Quote part charges courantes : 2339 €/an
  • Procédure en cours : Non

Localisation du bien

Ce bien n'est pas géolocalisé, pour connaitre sa géolocalisation, merci de contacter l'agence.

Consommation énergétique

  • C (68 kWh/m² an)
    C (12 kgCO2/m².an)
    Plus d'info
    68
    12
    12
  • DPE réalisé après le 1er juillet 2021.
  • Entre 330 € TTC / an et 490 € TTC / an
    Non communiqué

Nos professionnels vous accompagnent

Contactez notre agence !

1 RUE CLAIRETTE 78480 VERNEUIL SUR SEINE

Appeler l’agence Tél : 0139281017

* Champs obligatoires

Nous vous informons de l’existence de la liste d’opposition au démarchage téléphonique « BLOCTEL » sur laquelle vous pouvez vous inscrire (https://www.bloctel.gouv.fr).

En complétant le formulaire «CONTACTEZ NOTRE AGENCE », je reconnais expressément que je consens au traitement de mes données personnelles et que je dispose du droit de retirer mon consentement à tout moment en m'adressant à support@fnaim.fr.
En savoir plus sur la gestion de vos données et droits : consulter nos mentions légales, « article 5/ Données à caractère personnel ».

En envoyant ce message, vous acceptez les conditions d'utilisation du site. Plus d'infos