Fnaim.fr
Menu

Visite virtuelle
Exclusivité
Réf. 18630

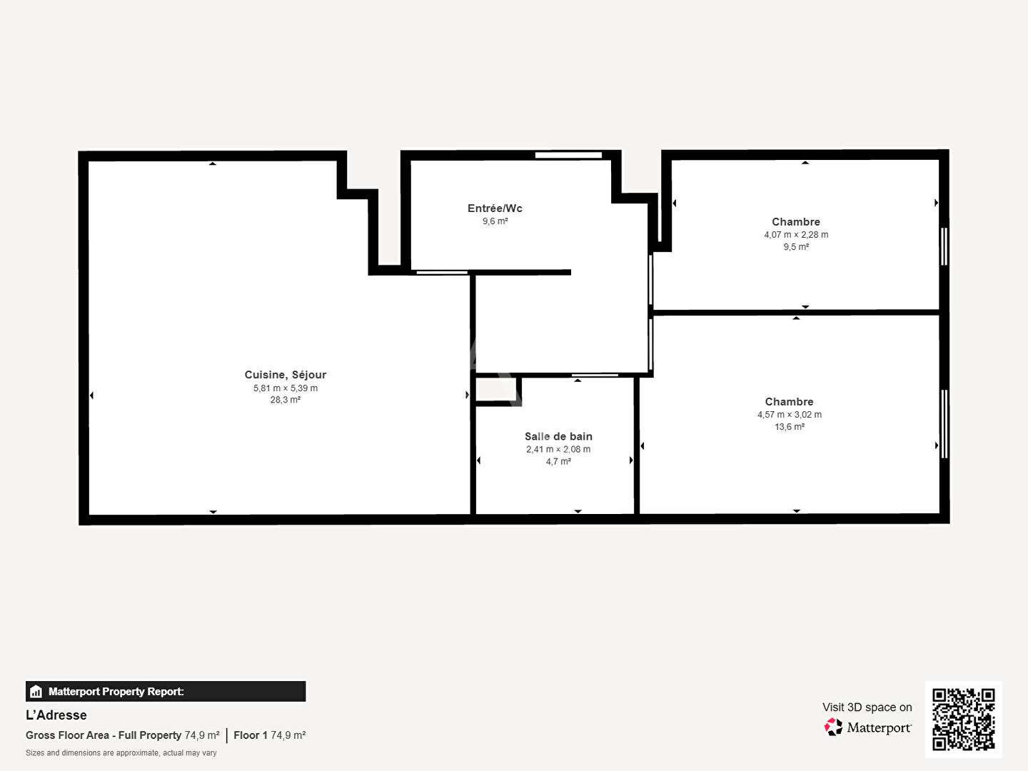
Achat Appartement 3 pièces 67m²

249 000 Honoraires charge vendeur

2 chambres Ascenseur Parking / Garage

Description du bien


l'Adresse CHILLY-MAZARIN vous propose à la vente un bel appartement situé au quatrième et dernier étage dans une résidence récente verdoyante et sécurisée, proche gare (rer C), tram 12 express et des différentes commodités (commerces, écoles, transports) offrant une entrée avec placards desservant un séjour avec une cuisine ouverte aménagée et équipée, deux chambres avec placards, une salle de bains ainsi qu'un wc indépendant.

Au sous-sol, un emplacement de stationnement double agrémente cet appartement.

Rare à la vente, contactez nous rapidement pour plus d'informations !

Romain PILATO (EI) Agent Commercial - Numéro RSAC : - .

Etat des risques et pollutions

Les informations sur les risques auxquels ce bien est exposé sont disponibles sur le site Géorisques : www.georisques.gouv.fr.

Caractéristiques du bien

Composition du bien

  • Type d'habitation : Appartement
  • Cuisine : Type de cuisine Non communique
  • Nombre de pièce(s) : 3
  • Nombre de chambre(s) : 2
  • Salles de bain : 1

Aménagement du bien

Extérieur

  • Terrasse : Non
  • Balcon : Non

Partie Commune

  • Ascenseur : Oui
  • Surface habitable : 67 m²
  • Parking : Oui

Informations sur la copropriété

  • Bien soumis au statut de la copropriété
  • Nombre de lots : 136
  • Quote part charges courantes : 2318 €/an
  • Procédure en cours : Non

Localisation du bien

Ce bien n'est pas géolocalisé, pour connaitre sa géolocalisation, merci de contacter l'agence.

Consommation énergétique

  • C (85 kWh/m² an)
    C (15 kgCO2/m².an)
    Plus d'info
    85
    15
    15
  • DPE réalisé après le 1er juillet 2021.
  • Entre 360 € TTC / an et 560 € TTC / an
    Non communiqué

Nos professionnels vous accompagnent

Contactez notre agence !

30 AVENUE PIERRE BROSSOLETTE 91380 CHILLY MAZARIN

Appeler l’agence Tél : 0169090985

* Champs obligatoires

Nous vous informons de l’existence de la liste d’opposition au démarchage téléphonique « BLOCTEL » sur laquelle vous pouvez vous inscrire (https://www.bloctel.gouv.fr).

En complétant le formulaire «CONTACTEZ NOTRE AGENCE », je reconnais expressément que je consens au traitement de mes données personnelles et que je dispose du droit de retirer mon consentement à tout moment en m'adressant à support@fnaim.fr.
En savoir plus sur la gestion de vos données et droits : consulter nos mentions légales, « article 5/ Données à caractère personnel ».

En envoyant ce message, vous acceptez les conditions d'utilisation du site. Plus d'infos