Fnaim.fr
Menu

Acheter - Carte

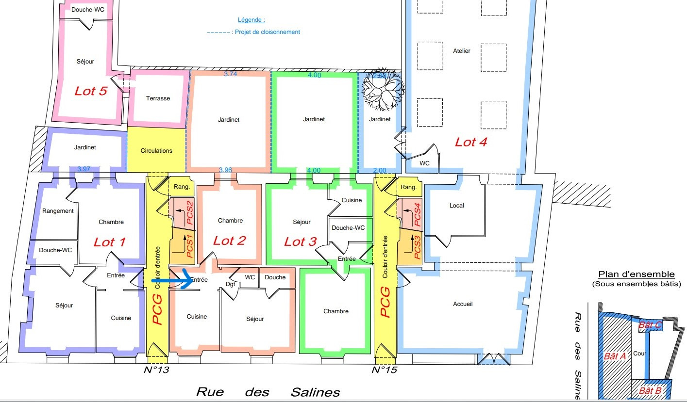
Achat Appartement 2 pièces 33m² REIMS 51100

98 100 Honoraires charge vendeur

1 chambre

Description du bien

THIER IMMOBILIER vous propose un T2 avec jardinet privatif  sur l'axe Cathédrale-Basilique St Remi.  Situé au rez de chaussée d'une petite copropriété des années 20,il se compose d'une entrée ouvrant sur pièce de vie, puis une cuisine aménagée, un espace nuit avec chambre, salle de douches et un wc indépendant. Appartement avec petit jardin à jouissance privative exclusive. Des travaux de modernisation sont à prévoir..Double vitrage. Chauffage collectif. DPE: E Charges collectives 120 EUR /mois incluant chauffage, eau, entretien immeuble, assurance ...)  Les informations concernant l'état des risques est consultable sur le site www.georisques.gouv.fr  Pas de procédure en cours Nombre de lots dans la copropriété :22  Prix 98 100 EUR  Ses plus : Appartement bien distribué / Traversant / Jardin privatif / Quartier en pleine mutation / Proche sciences po

Etat des risques et pollutions

Les informations sur les risques auxquels ce bien est exposé sont disponibles sur le site Géorisques : www.georisques.gouv.fr.

Caractéristiques du bien

Composition du bien

  • Type d'habitation : Appartement
  • Cuisine : Type de cuisine Non communique
  • Nombre de pièce(s) : 2
  • Nombre de chambre(s) : 1
  • Salles de bain : 1

Aménagement du bien

Extérieur

  • Terrasse : Non
  • Balcon : Non

Partie Commune

  • Ascenseur : Non
  • Surface habitable : 33 m²

Localisation du bien

REIMS (51100) , MARNE (51) - GRAND-EST

Ce bien n'est pas géolocalisé, pour connaitre sa géolocalisation, merci de contacter l'agence.

Consommation énergétique

  • E (296 kWh/m² an)
    E (64 kgCO2/m².an)
    Plus d'info
    296
    64
    64
  • DPE réalisé après le 1er juillet 2021.
  • Entre 530 € TTC / an et 770 € TTC / an
    01/01/2021

Nos professionnels vous accompagnent

Contactez notre agence !

14 rue Payen 51100 REIMS

Appeler l’agence Tél : 06 28 43 01 23

* Champs obligatoires

Nous vous informons de l’existence de la liste d’opposition au démarchage téléphonique « BLOCTEL » sur laquelle vous pouvez vous inscrire (https://www.bloctel.gouv.fr).

En complétant le formulaire «CONTACTEZ NOTRE AGENCE », je reconnais expressément que je consens au traitement de mes données personnelles et que je dispose du droit de retirer mon consentement à tout moment en m'adressant à support@fnaim.fr.
En savoir plus sur la gestion de vos données et droits : consulter nos mentions légales, « article 5/ Données à caractère personnel ».

En envoyant ce message, vous acceptez les conditions d'utilisation du site. Plus d'infos