Fnaim.fr
Menu

Visite virtuelle
Exclusivité
Réf. 374101FLCQ

Achat Maison 7 pièces 200m² TAURIERS 07110

164 900 Honoraires charge vendeur

6 chambres Jardin Parking / Garage

Description du bien

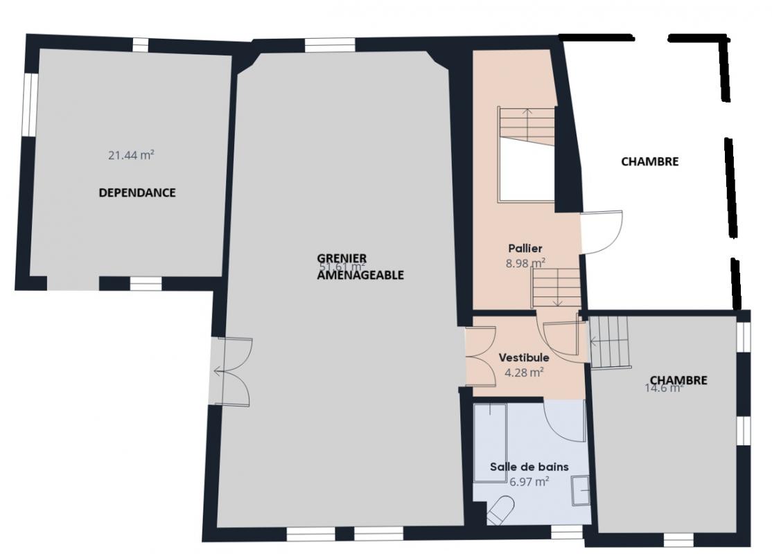
Secteur Joyeuse (07260).Grande maison en pierre de caractère d'environ 200 M² , sur site exceptionnel proche rivière. 6 chambres, séjour 50M² avec cheminée, cuisine donnant sur terrasse, balcon, beaucoup de cachet, dépendances 80m² , caves, sur un terrain arboré de 865m2 proche de LARGENTIERE à pieds, avec tous commerces et services.Prévoir mis aux normes fosse septique .
Prix de vente 170 000 euros Honoraires TTC charge vendeur
Les informations sur les risques auxquels ce bien est exposé sont disponibles sur le site Géorisques : www.georisques.gouv.fr
DPE CLASSE G 445 ET F99 Consommation mini 5022 et maxi 6830 EUROS à la date du 01/01/2021
Pour visiter et vous accompagner dans votre projet, contactez Franck LECLERCQ, au 0634993466 ou par courriel à f.leclercq@proprietes-privees.com
Selon l'article L.561.5 du Code Monétaire et Financier, pour l'organisation de la visite, la présentation d'une pièce d'identité vous sera demandée.
Cette vente est garantie 12 mois.
Cette présente annonce a été rédigée sous la responsabilité éditoriale de Franck LECLERCQ agissant sous le statut d'agent commercial immatriculé au RSAC 328198791 auprès de la SAS PROPRIETES PRIVEES, au capital de 40 000 euros, ZAC LE CHÊNE FERRÉ - 44 ALLÉE DES CINQ CONTINENTS 44120 VERTOU; SIRET 487 624 777 00040, RCS Nantes. Carte professionnelle Transactions sur immeubles et fonds de commerce (T) et Gestion immobilière (G) n° CPI 4401 2016 000 010 388 délivrée par la CCI Nantes - Saint Nazaire. Compte séquestre n°30932508467 BPA SAINT-SEBASTIEN-SUR-LOIRE (44230) ; Garantie GALIAN - 89 rue de la Boétie, 75008 Paris - n°28137 J pour 2 000 000 euros pour T et 120 000 euros pour G. Assurance responsabilité civile professionnelle par MMA Entreprise n° de police 120.137.405
Mandat réf : 374101Le professionnel garantit et sécurise votre projet immobilier.

Franck LECLERCQ (EI) Agent Commercial - Numéro RSAC : 328198791 - .

Etat des risques et pollutions

Les informations sur les risques auxquels ce bien est exposé sont disponibles sur le site Géorisques : www.georisques.gouv.fr.

Caractéristiques du bien

Composition du bien

  • Type d'habitation : Maison
  • Nombre de chambres : 6
  • Nombre de salles de bain : 2
  • Cuisine : 337

Aménagement du bien

  • Cave : Non
  • Garage / Parking : Oui
    • Surface habitable : 200 m²
    • Parking : Oui

    Localisation du bien

    TAURIERS (07110) , ARDECHE (07) - AUVERGNE-RHÔNE-ALPES

    Consommation énergétique

    • G (445 kWh/m² an)
      F (99 kgCO2/m².an)
      Plus d'info
      445
      99
      99
    • DPE réalisé après le 1er juillet 2021.
    • Entre 5022 € TTC / an et 6830 € TTC / an
      Non communiqué
    • Logement à consommation énergétique excessive : classe G

    Nos professionnels vous accompagnent

    Contactez notre agence !

    44 Allée des Cinq Continents ZAC Le Chêne Ferré 44120 VERTOU

    Appeler l’agence Tél : 06 34 99 34 66

    * Champs obligatoires

    Nous vous informons de l’existence de la liste d’opposition au démarchage téléphonique « BLOCTEL » sur laquelle vous pouvez vous inscrire (https://www.bloctel.gouv.fr).

    En complétant le formulaire «CONTACTEZ NOTRE AGENCE », je reconnais expressément que je consens au traitement de mes données personnelles et que je dispose du droit de retirer mon consentement à tout moment en m'adressant à support@fnaim.fr.
    En savoir plus sur la gestion de vos données et droits : consulter nos mentions légales, « article 5/ Données à caractère personnel ».

    En envoyant ce message, vous acceptez les conditions d'utilisation du site. Plus d'infos