Fnaim.fr
Menu

Acheter

Achat Maison 6 pièces 146m² L AIGLE 61300

296 000 Honoraires charge acquéreur inclus : 5.3% TTC (280994 € hors honoraires)

3 chambres Jardin Parking / Garage

Description du bien

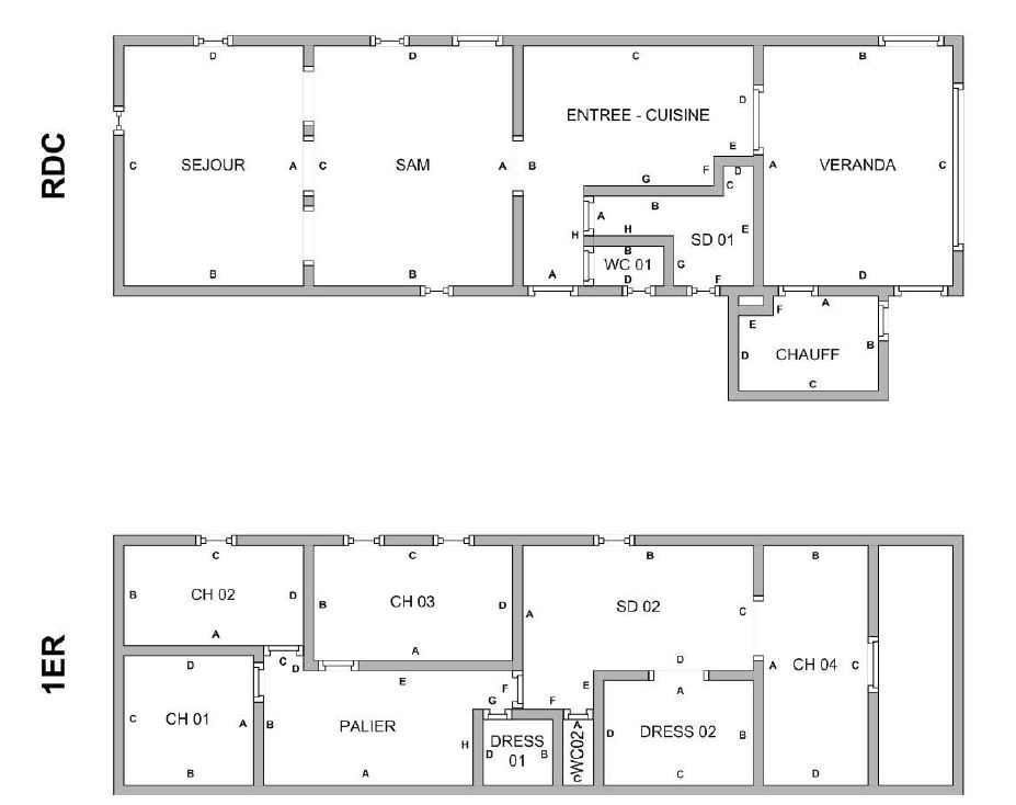
L'Etoile immobilier, vous propose de découvrir cette confortable maison restaurée, située à seulement 7 kms de L'AIGLE, ville avec tous commerces, gare SNCF et écoles.
Au rez-de-chaussée : entrée ouverte sur cuisine aménagée et équipée (plaque, hotte, four, lave-vaisselle, réfrigérateur), salle d'eau, WC, salle à manger lumineuse avec vue sur la mare et pièce de séjour de 47 m2 avec cheminée ; à l'étage : palier desservant un bureau, deux chambres, un dressing, un WC et une chambre avec salle d'eau et dressing privatif.
Chauffage par pompe à chaleur AIR/EAU. Chauffe-eau thermodynamique. Assainissement par microstation.
Nombreuses dépendances : chenil, double garage, bûcher, chalet, préau, cave, garage pour camping-car et voiture avec mezzanine.
Le tout sur 4687 m2 de terrain arboré, agrémenté d'une mare.

Etat des risques et pollutions

Les informations sur les risques auxquels ce bien est exposé sont disponibles sur le site Géorisques : www.georisques.gouv.fr.

Caractéristiques du bien

Composition du bien

  • Type d'habitation : Maison
  • Nombre de chambres : 3
  • Cuisine : 19

Aménagement du bien

  • Cave : Non
  • Garage / Parking : Oui
    • Surface habitable : 146 m²
    • Parking : Oui

    Localisation du bien

    L AIGLE (61300) , ORNE (61) - NORMANDIE

    Ce bien n'est pas géolocalisé, pour connaitre sa géolocalisation, merci de contacter l'agence.

    Consommation énergétique

    • C (153 kWh/m² an)
      A (4 kgCO2/m².an)
      Plus d'info
      153
      4
      4
    • DPE réalisé après le 1er juillet 2021.
    • Entre 1020 € TTC / an et 1440 € TTC / an
      01/01/2021

    Nos professionnels vous accompagnent

    Contactez notre agence !

    26, Place du Général de Gaulle 61400 MORTAGNE AU PERCHE

    Appeler l’agence Tél : 02.33.25.01.01

    * Champs obligatoires

    Nous vous informons de l’existence de la liste d’opposition au démarchage téléphonique « BLOCTEL » sur laquelle vous pouvez vous inscrire (https://www.bloctel.gouv.fr).

    En complétant le formulaire «CONTACTEZ NOTRE AGENCE », je reconnais expressément que je consens au traitement de mes données personnelles et que je dispose du droit de retirer mon consentement à tout moment en m'adressant à support@fnaim.fr.
    En savoir plus sur la gestion de vos données et droits : consulter nos mentions légales, « article 5/ Données à caractère personnel ».

    En envoyant ce message, vous acceptez les conditions d'utilisation du site. Plus d'infos