Fnaim.fr
Menu

Réf. 341453918

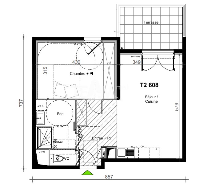
Achat Appartement 2 pièces 48m² SETE 34200

206 000 Honoraires charge vendeur

1 chambre Ascenseur Parking / Garage

Description du bien

Appartement Neuf de 48.90m2 Résidence BELLEVUE Saint Clair à Sète
1 Belle chambres de 13,55m2, séjour cuisine avec terrasse de 8.25m2 exposé EST+ 1 places de parking dans le nouveau Quartier Rive Sud.
Placé sous le signe de l'innovation, ce nouveau quartier servira de laboratoire pour le développement et l'usage de nouvelles énergies renouvelables. Sa proximité avec la mer permettra notamment de chauffer ces futurs logements par thalasso thermie.
Nombreux avantages sur le plan écologique, économique et des performances
DISPONIBLE IMMEDIATEMENT

Etat des risques et pollutions

Les informations sur les risques auxquels ce bien est exposé sont disponibles sur le site Géorisques : www.georisques.gouv.fr.

Caractéristiques du bien

Composition du bien

  • Type d'habitation : Appartement
  • Cuisine : Américaine
  • Nombre de pièce(s) : 2
  • Nombre de chambre(s) : 1

Aménagement du bien

Extérieur

  • Terrasse : Non
  • Balcon : Non

Partie Commune

  • Ascenseur : Oui
  • Surface habitable : 48 m²
  • Parking : Oui

Informations sur la copropriété

  • Bien soumis au statut de la copropriété
  • Nombre de lots : 10
  • Procédure en cours : Non

Localisation du bien

SETE (34200) , HERAULT (34) - OCCITANIE

Ce bien n'est pas géolocalisé, pour connaitre sa géolocalisation, merci de contacter l'agence.

Consommation énergétique

DPE non soumis
mention indiquée sous la responsabilité de l’agence immobilière

Nos professionnels vous accompagnent

Contactez notre agence !

MARINE DE ST CLAIR , CHEMIN DES QUILLES BP 10303 34200 SETE

Appeler l’agence Tél : 04 67 53 53 40

* Champs obligatoires

Nous vous informons de l’existence de la liste d’opposition au démarchage téléphonique « BLOCTEL » sur laquelle vous pouvez vous inscrire (https://www.bloctel.gouv.fr).

En complétant le formulaire «CONTACTEZ NOTRE AGENCE », je reconnais expressément que je consens au traitement de mes données personnelles et que je dispose du droit de retirer mon consentement à tout moment en m'adressant à support@fnaim.fr.
En savoir plus sur la gestion de vos données et droits : consulter nos mentions légales, « article 5/ Données à caractère personnel ».

En envoyant ce message, vous acceptez les conditions d'utilisation du site. Plus d'infos