Fnaim.fr
Menu

Réf. 559.FGJ

Achat Appartement 2 pièces 38m² COURSEULLES SUR MER 14470

145 000 Honoraires charge vendeur

1 chambre Balcon Ascenseur

Description du bien

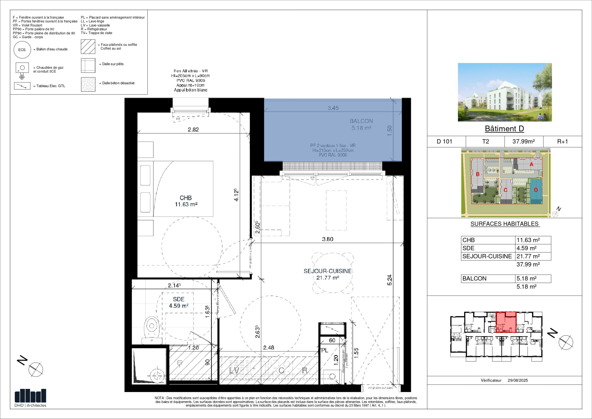
Nuances immobilières vous propose au Nord Ouest de Caen, à COURSEULLES SUR MER, au sein d'un environnement résidentiel composé de 4 résidences de 3 étages, un appartement avec balcon.
Ici, nous vous présentons un 2Pièces de 38m2 au premier étage bénéficiant d'une terrasse de 5m2 exposé Nord & Est.
Cet appartement se compose d'une entrée avec placard, d'un espace séjour salon de 21m2 ouvrant sur l'extérieur, un coin cuisine, une salle d'eau avec wc, et une chambre de plus de 11m2.
Dernières normes phoniques et thermiques. Commerces, marché, boulangerie, à 9 minutes en vélo.
Habitable pour 2027.
'Les informations sur les risques auxquels ce bien est exposé sont disponibles sur le site Géorisques : www.georisques.gouv.fr'.

Etat des risques et pollutions

Les informations sur les risques auxquels ce bien est exposé sont disponibles sur le site Géorisques : www.georisques.gouv.fr.

Caractéristiques du bien

Composition du bien

  • Type d'habitation : Appartement
  • Nombre de pièce(s) : 2
  • Nombre de chambre(s) : 1

Aménagement du bien

Extérieur

  • Terrasse : Non
  • Balcon : Oui

Partie Commune

  • Ascenseur : Oui
  • Surface habitable : 38 m²

Localisation du bien

COURSEULLES SUR MER (14470) , CALVADOS (14) - NORMANDIE

Ce bien n'est pas géolocalisé, pour connaitre sa géolocalisation, merci de contacter l'agence.

Consommation énergétique

DPE non soumis
mention indiquée sous la responsabilité de l’agence immobilière

Nos professionnels vous accompagnent

Contactez notre agence !

10 rue de l'Oratoire 14000 CAEN

Appeler l’agence Tél : 0231084040

* Champs obligatoires

Nous vous informons de l’existence de la liste d’opposition au démarchage téléphonique « BLOCTEL » sur laquelle vous pouvez vous inscrire (https://www.bloctel.gouv.fr).

En complétant le formulaire «CONTACTEZ NOTRE AGENCE », je reconnais expressément que je consens au traitement de mes données personnelles et que je dispose du droit de retirer mon consentement à tout moment en m'adressant à support@fnaim.fr.
En savoir plus sur la gestion de vos données et droits : consulter nos mentions légales, « article 5/ Données à caractère personnel ».

En envoyant ce message, vous acceptez les conditions d'utilisation du site. Plus d'infos