Fnaim.fr
Menu

Achat Appartement 3 pièces 55m² NIMES 30900

149 000 Honoraires charge vendeur

2 chambres Parking / Garage

Description du bien

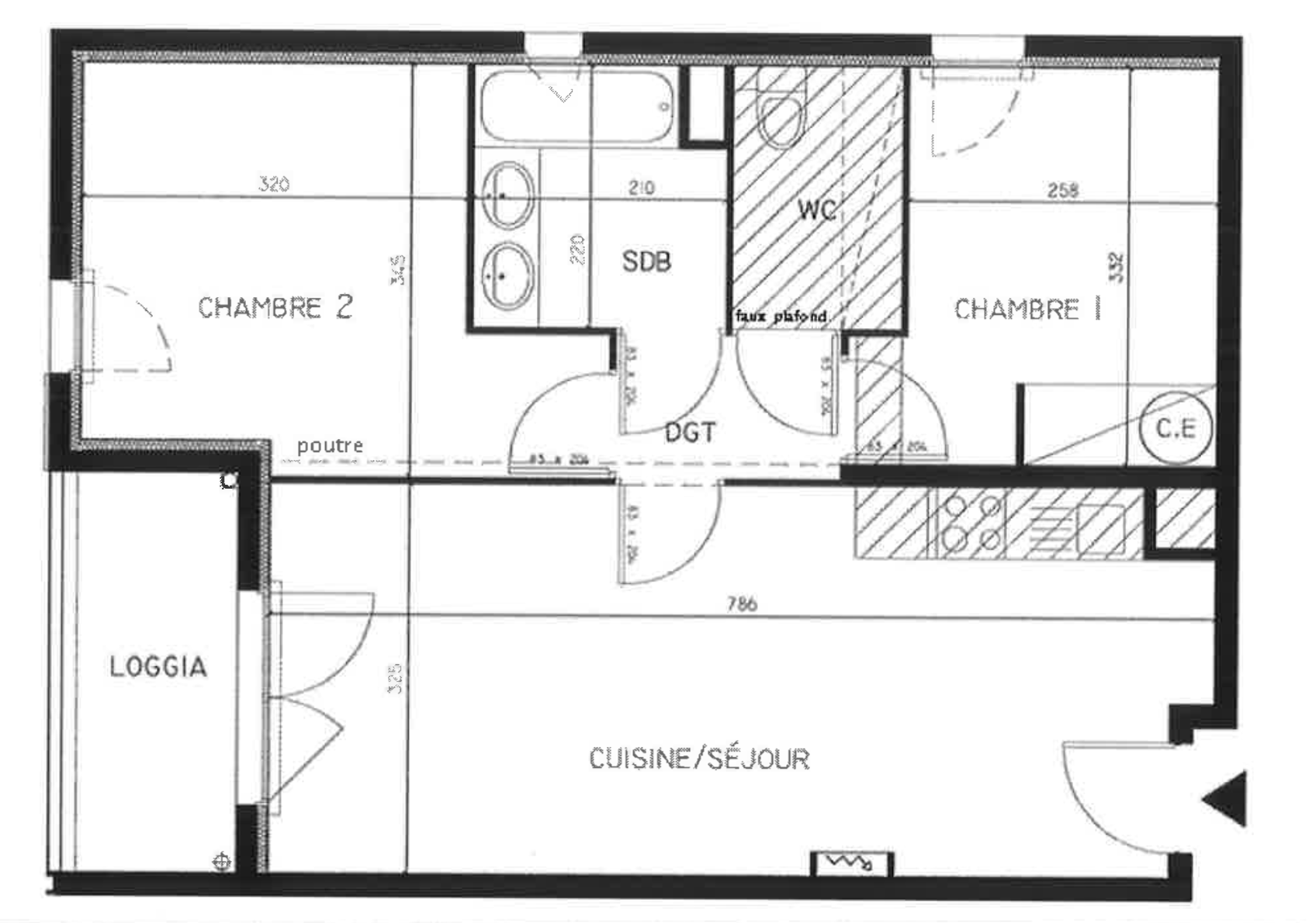
NIMES BAS JEAN JAURES

Découvrez cet appartement de type T3 d'une surface habitable d'environ 55m2 dans une résidence récente avec ascenseur, proche de toutes les commodités avec parking privé et cellier en sous-sol, offrant confort et sécurité pour votre véhicule.

Il comprend une cuisine ouverte sur le séjour, deux chambres dont une avec placard, une salle de bains, wc et dégagement,

L'appartement bénéficie également d'une loggia d'environ 5 m2, idéale pour profiter d'un espace extérieur.

Copro 36 Appt / 72 lots, Procédures en cours : néant, Charges 1647EUR/an, Honoraires charge vendeur - Les informations sur les risques auxquels ce bien est exposé sont disponibles sur le site Géorisques : www.géorisques.gouv.fr

Etat des risques et pollutions

Les informations sur les risques auxquels ce bien est exposé sont disponibles sur le site Géorisques : www.georisques.gouv.fr.

Caractéristiques du bien

Composition du bien

  • Type d'habitation : Appartement
  • Cuisine : 402
  • Nombre de pièce(s) : 3
  • Nombre de chambre(s) : 2

Aménagement du bien

Extérieur

  • Terrasse : Non
  • Balcon : Non

Partie Commune

  • Ascenseur : Non
  • Surface habitable : 55 m²
  • Parking : Oui

Localisation du bien

NIMES (30900) , GARD (30) - OCCITANIE

Ce bien n'est pas géolocalisé, pour connaitre sa géolocalisation, merci de contacter l'agence.

Consommation énergétique

  • C (133 kWh/m² an)
    A (4 kgCO2/m².an)
    Plus d'info
    133
    4
    4
  • DPE réalisé après le 1er juillet 2021.
  • Entre 490 € TTC / an et 710 € TTC / an
    01/01/2021

Nos professionnels vous accompagnent

Contactez notre agence !

16 RUE DE VERDUN 30000 NIMES

Appeler l’agence Tél : 0466366186

* Champs obligatoires

Nous vous informons de l’existence de la liste d’opposition au démarchage téléphonique « BLOCTEL » sur laquelle vous pouvez vous inscrire (https://www.bloctel.gouv.fr).

En complétant le formulaire «CONTACTEZ NOTRE AGENCE », je reconnais expressément que je consens au traitement de mes données personnelles et que je dispose du droit de retirer mon consentement à tout moment en m'adressant à support@fnaim.fr.
En savoir plus sur la gestion de vos données et droits : consulter nos mentions légales, « article 5/ Données à caractère personnel ».

En envoyant ce message, vous acceptez les conditions d'utilisation du site. Plus d'infos