Fnaim.fr
Menu

Achat Maison 4 pièces 87m² BANDOL 83150

480 000 Honoraires charge acquéreur inclus : 2.6% TTC (467712 € hors honoraires)

1 chambre

Description du bien

Rare à la vente, en plein coeur du centre-ville de Bandol, cette maison de ville offre une double opportunité d'investissement : un revenu locatif immédiat et un fort potentiel de valorisation.
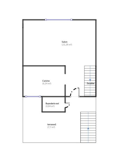
Cette propriété se compose de deux niveaux :
Rez-de-chaussée : local commercial de 30 m2 Actuellement loué 780 EUR/mois, avec un bail commercial 9 ans en cours (échéance 2028). Il comprend une surface principale, une réserve et des sanitaires.Un revenu locatif sécurisé et pérenne grâce à un emplacement stratégique, à deux pas du port et des commerces.
Étage : appartement T2 en duplex de 52,44 m2 Accessible par une entrée indépendante, il propose un séjour lumineux avec cuisine ouverte, une chambre confortable, une salle de bain avec baignoire, ainsi qu'une agréable terrasse et une charmante cour intérieure. Cet appartement peut être utilisé en résidence principale, location annuelle ou location saisonnière, offrant une rentabilité modulable selon vos objectifs.
Les atouts de cette maison de ville :


Emplacement recherché au coeur de Bandol


Commerce loué offrant revenus immédiats


Logement indépendant à l'étage avec espace extérieur


Investissement patrimonial complet et sécurisé


Surface totale : 87 m2


Une maison de ville rare, réunissant emplacement premium, rentabilité et flexibilité d'usage.
Idéal investisseur ou projet personnel avec revenus locatifs garantis.

Etat des risques et pollutions

Les informations sur les risques auxquels ce bien est exposé sont disponibles sur le site Géorisques : www.georisques.gouv.fr.

Caractéristiques du bien

Composition du bien

  • Type d'habitation : Maison
  • Nombre de chambres : 1
  • Nombre de salles de bain : 1

Aménagement du bien

  • Cave : Non
  • Garage / Parking : Non
    • Surface habitable : 87 m²

    Localisation du bien

    BANDOL (83150) , VAR (83) - PROVENCE-ALPES-COTE-D-AZUR

    Ce bien n'est pas géolocalisé, pour connaitre sa géolocalisation, merci de contacter l'agence.

    Consommation énergétique

    • D (197 kWh/m² an)
      B (6 kgCO2/m².an)
      Plus d'info
      197
      6
      6
    • DPE réalisé après le 1er juillet 2021.
    • Entre 830 € TTC / an et 1190 € TTC / an
      01/01/2022

    Nos professionnels vous accompagnent

    Contactez notre agence !

    6 RUE PIERRE TOESCA 83150 BANDOL

    Appeler l’agence Tél : 04.94.29.52.27

    * Champs obligatoires

    Nous vous informons de l’existence de la liste d’opposition au démarchage téléphonique « BLOCTEL » sur laquelle vous pouvez vous inscrire (https://www.bloctel.gouv.fr).

    En complétant le formulaire «CONTACTEZ NOTRE AGENCE », je reconnais expressément que je consens au traitement de mes données personnelles et que je dispose du droit de retirer mon consentement à tout moment en m'adressant à support@fnaim.fr.
    En savoir plus sur la gestion de vos données et droits : consulter nos mentions légales, « article 5/ Données à caractère personnel ».

    En envoyant ce message, vous acceptez les conditions d'utilisation du site. Plus d'infos