Fnaim.fr
Menu

Exclusivité
Réf. 2873

Achat Appartement 2 pièces 57m² REIMS 51100

130 000 Honoraires charge vendeur

1 chambre

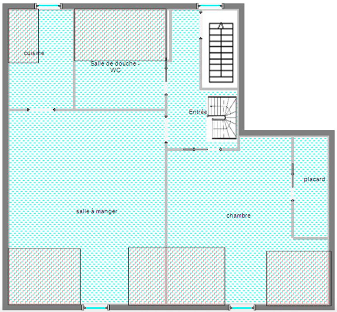
Description du bien


Situé au 3eme et dernier étage, cet appartement lumineux et plein de charme développe une surface de 57 m² au sol (39 m² Carrez) et offre un agencement optimisé.

L'entrée s'ouvre sur un escalier menant à une agréable pièce de vie baignée de lumière, intégrant une cuisine ouverte, aménagée et entièrement équipée.
L'espace nuit se compose d'une chambre confortable, d'une mezzanine pouvant servir de bureau ou d'espace couchage d'appoint, ainsi que d'une salle d'eau et de WC séparés.

Bien vendu loué, générant un revenu locatif de 560 Euro / mois (525 Euro + 35 Euro de charges). Départ du locataire : début août 2026.

Les + du bien :
Dernier étage, calme et luminosité
Belle pièce de vie spacieuse
Cuisine ouverte équipée
Mezzanine apportant un espace supplémentaire

Possibilité d'acquérir une place de parking en supplément au sein de la copropriété.

Surface : 57,10m2 au sol - 39m2 loi carrez
Référence du bien : 2873
Prix du bien : 130 000Euro
Honoraires à la charge du Vendeur
Honoraires TTC : 10 000Euro
Prix net vendeur : 120 000Euro
Charges copropriété 480Euro/an -27 lots de copropriété -Pas de procédure en cours.
Date de réalisation des diagnostics : 10/01/2025
DPE : E
Consommation énergie Primaire : 328/kWh/m2/an
Consommation énergie Final : 142/ kWh/m2/an
GES : B
Émissions de gaz à effet de serre : 10kgCO2/m2.an
Chauffage individuel électrique, huisserie en PVC Double Vitrage.

Les informations sur les risques auxquels ce bien est exposé sont disponibles sur le site Géorisques : www.georisques.gouv.fr
Annonce rédigée par CLEMENT RABET agent commercial immatriculé au RSAC de Reims sous le numéro 910618032 Titulaire de la carte de démarchage immobilier pour le compte de la SAS ATELIER IMMO N° SIREN : 888 682 002

Etat des risques et pollutions

Les informations sur les risques auxquels ce bien est exposé sont disponibles sur le site Géorisques : www.georisques.gouv.fr.

Caractéristiques du bien

Composition du bien

  • Type d'habitation : Appartement
  • Nombre de pièce(s) : 2
  • Nombre de chambre(s) : 1

Aménagement du bien

Extérieur

  • Terrasse : Non
  • Balcon : Non

Partie Commune

  • Ascenseur : Non
  • Surface habitable : 57 m²

Informations sur la copropriété

  • Bien soumis au statut de la copropriété
  • Nombre de lots : 27
  • Quote part charges courantes : 480 €/an
  • Procédure en cours : Non

Localisation du bien

REIMS (51100) , MARNE (51) - GRAND-EST

Consommation énergétique

  • E (328 kWh/m² an)
    B (10 kgCO2/m².an)
    Plus d'info
    328
    10
    10
  • DPE réalisé après le 1er juillet 2021.
  • Entre 1010 € TTC / an et 1390 € TTC / an
    Non communiqué

Nos professionnels vous accompagnent

Contactez notre agence !

6, boulevard de la Paix 51100 REIMS

Appeler l’agence Tél : 0688582133

* Champs obligatoires

Nous vous informons de l’existence de la liste d’opposition au démarchage téléphonique « BLOCTEL » sur laquelle vous pouvez vous inscrire (https://www.bloctel.gouv.fr).

En complétant le formulaire «CONTACTEZ NOTRE AGENCE », je reconnais expressément que je consens au traitement de mes données personnelles et que je dispose du droit de retirer mon consentement à tout moment en m'adressant à support@fnaim.fr.
En savoir plus sur la gestion de vos données et droits : consulter nos mentions légales, « article 5/ Données à caractère personnel ».

En envoyant ce message, vous acceptez les conditions d'utilisation du site. Plus d'infos