Fnaim.fr
Menu

Exclusivité
Réf. 1384

Achat Maison 8 pièces 183m²

1 155 000 Honoraires charge vendeur

6 chambres Jardin Parking / Garage

Description du bien


***MAISONS-LAFFITTE*** exclusivité Immo-Concept.
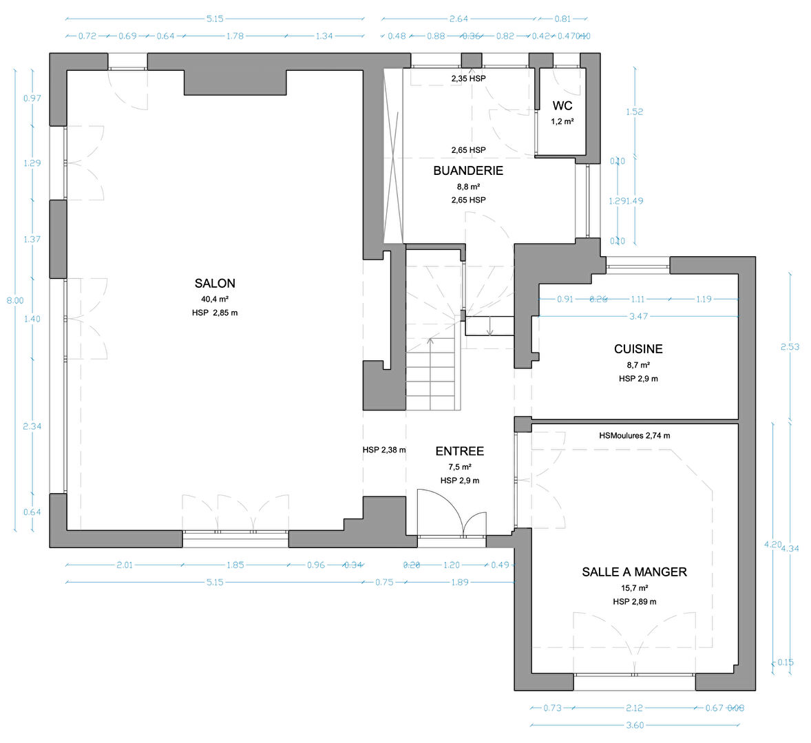
Située au coeur du Parc classé de Maisons-Laffitte, cette maison de caractère, élevée sur sous-sol et édifiée sur un terrain arboré de 702 m², offre un fort potentiel de rénovation pour retrouver tout le charme de son architecture d'origine.
Le rez-de-chaussée s'ouvre sur une entrée desservant un double séjour lumineux donnant sur le jardin; Il comprend également un bureau, une cuisine indépendante, une buanderie ainsi qu'un WC.
Le premier étage accueille quatre chambres aux beaux volumes, deux salles de bains et un WC indépendant.
Le deuxième étage propose deux chambres supplémentaires et un cabinet de toilettes, offrant de belles possibilités d'aménagement.
À l'extérieur, un jardin verdoyant et un garage complètent ce bien.
Des travaux de remise au goût du jour sont à prévoir, laissant libre cours à vos projets afin de révéler tout le potentiel architectural de cette demeure.
Cette propriété indépendante issue d'une division s'inscrit dans un ensemble architectural harmonieux, caractéristique du Parc de Maisons-Laffitte, et bénéficie d'un environnement calme et verdoyant, particulièrement recherché pour sa qualité de vie.

Etat des risques et pollutions

Les informations sur les risques auxquels ce bien est exposé sont disponibles sur le site Géorisques : www.georisques.gouv.fr.

Caractéristiques du bien

Composition du bien

  • Type d'habitation : Maison
  • Nombre de chambres : 6
  • Nombre de salles de bain : 1

Aménagement du bien

  • Cave : Non
  • Garage / Parking : Oui
    • Surface habitable : 183 m²
    • Parking : Oui

    Localisation du bien

    Ce bien n'est pas géolocalisé, pour connaitre sa géolocalisation, merci de contacter l'agence.

    Consommation énergétique

    • G (473 kWh/m² an)
      G (105 kgCO2/m².an)
      Plus d'info
      473
      105
      105
    • DPE réalisé après le 1er juillet 2021.
    • Entre 4940 € TTC / an et 6750 € TTC / an
      Non communiqué
    • Logement à consommation énergétique excessive : classe G

    Nos professionnels vous accompagnent

    Contactez notre agence !

    30 AVENUE DE LONGUEIL 78600 MAISONS LAFFITTE

    Appeler l’agence Tél : 0139621717

    * Champs obligatoires

    Nous vous informons de l’existence de la liste d’opposition au démarchage téléphonique « BLOCTEL » sur laquelle vous pouvez vous inscrire (https://www.bloctel.gouv.fr).

    En complétant le formulaire «CONTACTEZ NOTRE AGENCE », je reconnais expressément que je consens au traitement de mes données personnelles et que je dispose du droit de retirer mon consentement à tout moment en m'adressant à support@fnaim.fr.
    En savoir plus sur la gestion de vos données et droits : consulter nos mentions légales, « article 5/ Données à caractère personnel ».

    En envoyant ce message, vous acceptez les conditions d'utilisation du site. Plus d'infos