Fnaim.fr
Menu

Achat Appartement 2 pièces 58m² ST JEAN DE LOSNE 21170

70 000 Honoraires charge vendeur

1 chambre

Description du bien

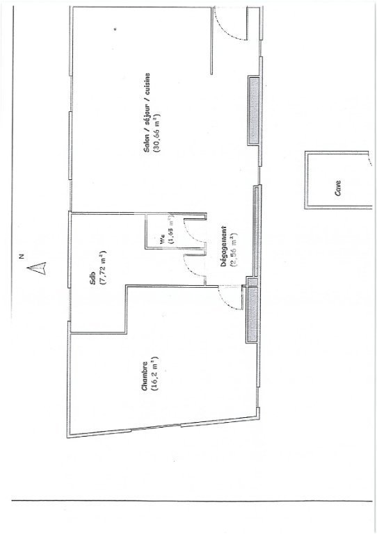
Bel appartement T2 rénové de 58,88 m² loi Carrez, situé à LOSNE, au 2ème étage d'un ensemble en copropriété, L'entrée dessert un séjour lumineux de 32 m² avec cuisine ouverte, pièce de vie traversante qui invite à la détente et aux repas conviviaux. La chambre de 20 m² propose un espace nuit confortable. Un couloir distribue la salle de bains et des WC séparés pour plus de confort au quotidien.
Le bien bénéficie d'un accès pratique par une cour commune entre deux bâtiments, un emplacement de parking privatif et une cave.
Chauffage gaz à condensation (5 ans)charges copropriété 249 € environ par trimestre, taxe foncière 394 €, pas de procédure en cours.
Idéal pour un premier achat ou investissement locatif.
Prix : 70 000 € (honoraires TTC 7 000 € à la charge du vendeur). Mandat simple n°16344. Pour découvrir ce T2, sa cave et son emplacement de parking, contactez Natalie BAUDOT afin d'organiser une visite au 0646.138.538.

Les informations sur les risques auxquels ce bien est exposé sont disponibles sur le site Géorisques : www.georisques.gouv.fr

Etat des risques et pollutions

Les informations sur les risques auxquels ce bien est exposé sont disponibles sur le site Géorisques : www.georisques.gouv.fr.

Caractéristiques du bien

Composition du bien

  • Type d'habitation : Appartement
  • Cuisine : 337
  • Nombre de pièce(s) : 2
  • Nombre de chambre(s) : 1
  • Salles de bain : 1

Aménagement du bien

Extérieur

  • Terrasse : Non
  • Balcon : Non

Partie Commune

  • Ascenseur : Non
  • Surface habitable : 58 m²

Informations sur la copropriété

  • Bien soumis au statut de la copropriété
  • Nombre de lots : 10
  • Quote part charges courantes : 996 €/an
  • Procédure en cours : Non

Localisation du bien

ST JEAN DE LOSNE (21170) , COTE-D'OR (21) - BOURGOGNE-FRANCHE-COMTÉ

Ce bien n'est pas géolocalisé, pour connaitre sa géolocalisation, merci de contacter l'agence.

Consommation énergétique

  • D (174 kWh/m² an)
    D (34 kgCO2/m².an)
    Plus d'info
    174
    34
    34
  • DPE réalisé après le 1er juillet 2021.
  • Entre 1060 € TTC / an et 1490 € TTC / an
    01/01/2023

Nos professionnels vous accompagnent

Contactez notre agence !

1 RUE GRANGE FRANGY 71100 CHALON SUR SAONE

Appeler l’agence Tél : 03 80 77 92 25

* Champs obligatoires

Nous vous informons de l’existence de la liste d’opposition au démarchage téléphonique « BLOCTEL » sur laquelle vous pouvez vous inscrire (https://www.bloctel.gouv.fr).

En complétant le formulaire «CONTACTEZ NOTRE AGENCE », je reconnais expressément que je consens au traitement de mes données personnelles et que je dispose du droit de retirer mon consentement à tout moment en m'adressant à support@fnaim.fr.
En savoir plus sur la gestion de vos données et droits : consulter nos mentions légales, « article 5/ Données à caractère personnel ».

En envoyant ce message, vous acceptez les conditions d'utilisation du site. Plus d'infos