Fnaim.fr
Menu

Réf. 546.JTAV

Achat Maison 4 pièces 85m² DIVES SUR MER 14160

333 000 Honoraires charge vendeur

3 chambres Jardin Parking / Garage

Description du bien

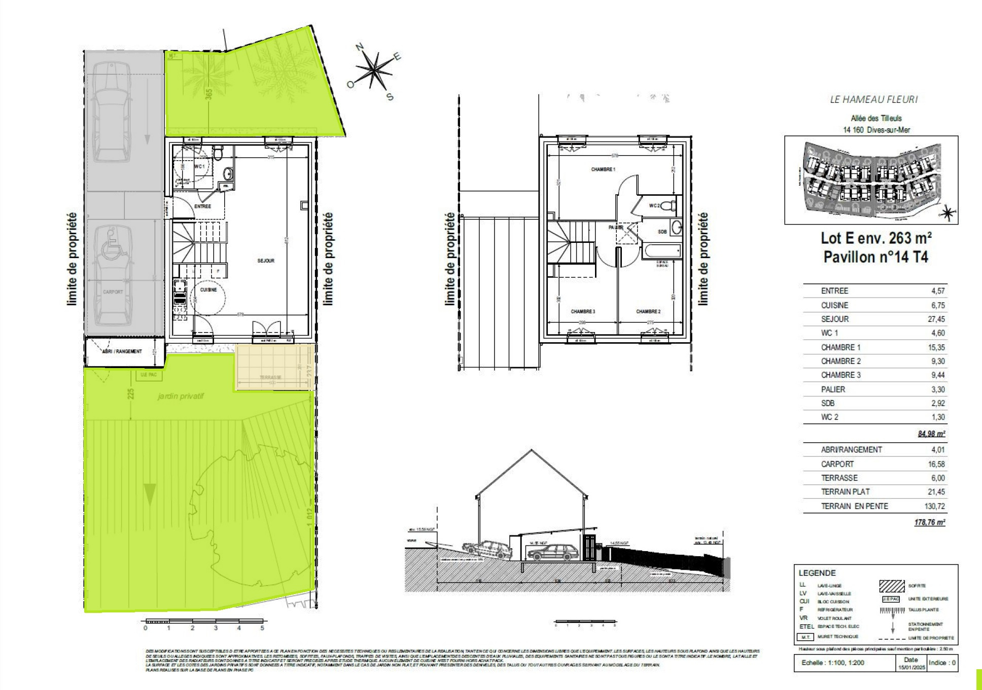
Nuances immobilières vous présente une maison au sein d'un hameau de 22 maisons en petit village situé à Dives sur mer, à 10 minutes à pied du bourg ancien, dit le village Guillaume.
D'une surface habitable de 85m2, elle se compose de 3 chambres dont une de 15m2 à l'étage, une salle de bain et wc indépendant.
Au rez de chaussée, wc et une pièce de vie de plus de 27 m2 ouvrant sur un grand jardin, puis cuisine avec accès au jardin clos.
Belles finitions proposées : (Sols en carrellage 45*45cm en gré pour toutes les pièces du Rdc, volets roulants électriques, choix des faiences pour les pièces d'eau, peinture sur tous les murs).
Carport pour abriter votre auto et parking privé.
Chauffage par pompe à Chaleur individuelle, radiateur sêche servitette pour les pièces d'eau.
Habitable 2027
'Les informations sur les risques auxquels ce bien est exposé sont disponibles sur le site Géorisques : www.georisques.gouv.fr'.

Etat des risques et pollutions

Les informations sur les risques auxquels ce bien est exposé sont disponibles sur le site Géorisques : www.georisques.gouv.fr.

Caractéristiques du bien

Composition du bien

  • Type d'habitation : Maison
  • Nombre de chambres : 3
  • Nombre de salles de bain : 1
  • Cuisine : 402

Aménagement du bien

  • Cave : Non
  • Garage / Parking : Oui
    • Surface habitable : 85 m²
    • Parking : Oui

    Localisation du bien

    DIVES SUR MER (14160) , CALVADOS (14) - NORMANDIE

    Ce bien n'est pas géolocalisé, pour connaitre sa géolocalisation, merci de contacter l'agence.

    Consommation énergétique

    DPE non soumis
    mention indiquée sous la responsabilité de l’agence immobilière

    Nos professionnels vous accompagnent

    Contactez notre agence !

    10 rue de l'Oratoire 14000 CAEN

    Appeler l’agence Tél : 0231084040

    * Champs obligatoires

    Nous vous informons de l’existence de la liste d’opposition au démarchage téléphonique « BLOCTEL » sur laquelle vous pouvez vous inscrire (https://www.bloctel.gouv.fr).

    En complétant le formulaire «CONTACTEZ NOTRE AGENCE », je reconnais expressément que je consens au traitement de mes données personnelles et que je dispose du droit de retirer mon consentement à tout moment en m'adressant à support@fnaim.fr.
    En savoir plus sur la gestion de vos données et droits : consulter nos mentions légales, « article 5/ Données à caractère personnel ».

    En envoyant ce message, vous acceptez les conditions d'utilisation du site. Plus d'infos